
项目名称:福建莆田曾家新中式别墅
项目经理:徐龙帅
图纸编号:1829
建筑面积:538.9㎡
占地面积:193.2㎡
基地面积:380㎡
建筑尺寸:12m×16.1m
建筑结构:框架结构
参考造价:98.5万元(独栋;室内装修费用另计)
项目概况
△总平面示意图(下方为北)
基地情况:
东:邻家住宅
西:村内道路
南:村内道路
北:自家院落
项目简介:
业主在项目前期希望在自家室内增设多功能辅助区;在立面造型上,希望展现融入现代元素的新中式风格。设计师根据项目场地情况,及业主的需求和喜好,将项目确定为3层新中式别墅。
平面布局
户型概况:
3层 / 9室 2厅 6卫 1厨 1储藏 1衣帽/杂物 1娱乐区 1茶室 1书房 4阳台
△一层平面图(下方为北)
一层以待客休闲功能为主,长辈房均置于南侧,入户的玄关与挑空客厅、茶厅相邻,东南侧预留了较大面积的厨房空间,内部增设了次入口,便于业主家平时出入后院。
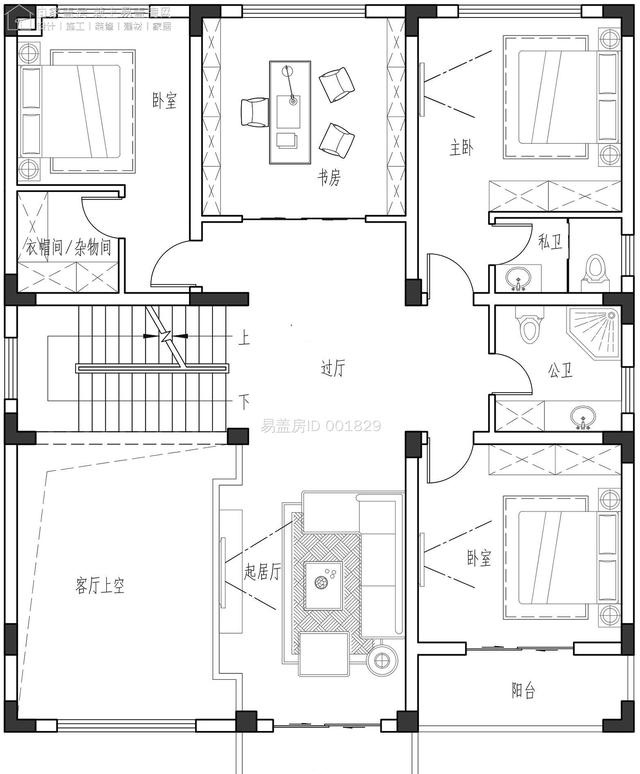
△二层平面图(下方为北)
二层以办公休闲功能为主,共设置3间卧室,其中西北侧的套房搭配阳台使用;北侧中部的起居室向外延伸出阳光房区域,丰富整层多功能的同时,为业主家提供了休闲、观景的场所。
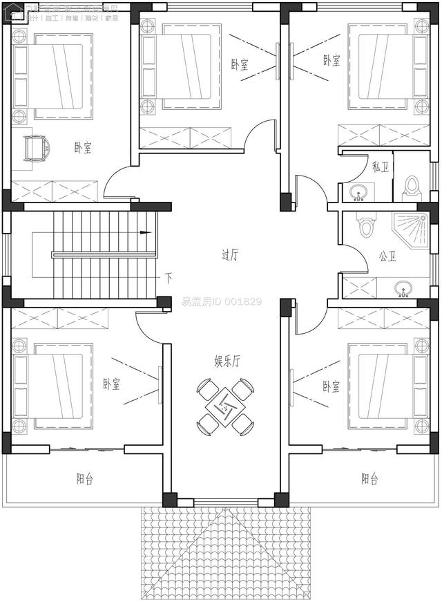
△三层平面图(下方为北)
三层以居住休闲为主,共布置5间卧室,中部增设了娱乐厅,满足了业主家室内休闲娱乐的需求。
造型设计
△北侧效果图
△东北侧效果图
△西北侧效果图
项目为新中式风格,整体以褐色强调中式风韵,融入暖色真石漆营造温馨氛围。北侧大面积的开窗设计,在延续传统建筑风格的同时,将通透进行到底。
△鸟瞰图
△西北侧效果图
△北侧效果图
不同立面开窗的错落感极佳,搭配墙面的多种中式造型,其镂空设计中和了建筑由于简约造型所带来的单调感,增加了整体的趣味性。
△西南侧效果图
△东北侧效果图
△局部效果图
建筑的深色窗框在细节之处,辅以少量GRC构件作为点缀,整体质感张弛有度,装饰效果在繁琐与简约之间恰到好处。
△东立面图
△西立面图
△南立面图
△北立面图
设计师问答
1. 设计周期是多久?
答:36天左右。
2.本项目在设计方面有什么特别之处?
答:本项目基地较大,业主后期考虑增设第二栋,与自家兄弟合住。

















