
项目名称:湖北十堰张家中式别墅
项目经理:熊俊杰
图纸编号:1830
建筑面积:282㎡
占地面积:167.8㎡
基地面积:563㎡
建筑尺寸:18.6m×14.7m
建筑结构:框架结构
参考造价:52.2万元(室内装修费用另计)
项目概况
△总平面示意图
基地情况:
东:村内池塘
西:村内道路
南:邻家住宅
北:邻家住宅
项目简介:
业主在项目前期希望增设辅房功能,在室内空间上增设独立的堂屋;在立面造型上,呈现出简约古朴的效果。设计师根据项目宅基地存在高差的特殊情况,及业主的需求和喜好,将项目形式确定为双层中式风格别墅。
平面布局
户型概况:
2层 / 4室 2厅 3卫 1厨 1堂屋 1土灶 1储物 1茶室 1棋牌 2露台
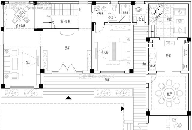
△一层平面图
主房以中部的堂屋为中心,西南侧预留了较大面积的待客空间,逢年过节时有来访者也可以通过堂屋进入;设计师将东侧的辅楼设置了餐厨和茶室功能,中间通过休闲平台串联起来。
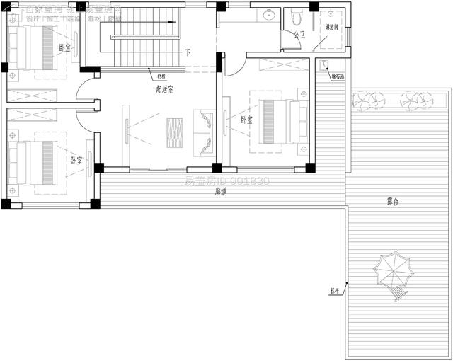
△二层平面图
二层以休闲起居功能为主,整层共布置3间卧室;东侧的多个露台布置,提升室内采光效果的同时,又满足了业主家观景、晾晒的需求。
造型设计
△南侧效果图
△东南侧效果图
建筑整体为中式风格,设计师采用白色真石漆,窗框以及建筑分界线采用深色,让整体色调更加舒适稳重。建筑分界线选择二层中间部分,让造型与传统建筑相比具有变化。
△西南侧效果图
△西侧效果图
设计师在院门后方设置了影壁,入户侧预留了中式元素。庭院的休息平台采用木质建材,给业主及其家人带来多样享受。
△院门效果图
△西北侧效果图
△东北侧效果图
庭院部分的设计注重于整体功能,装饰和景观部分则通过简单的绿植装饰增强院内的自然气息。
△东立面图
△西立面图
△南立面图
△北立面图
设计师问答
1.本项目的设计周期是多久?
答:1个半月左右。
2.本项目的设计过程中你从哪方面考虑入手?
答:本项目重视堂屋的尺寸与比例,其他功能空间配合布局。














