
项目名称:湖南邵阳刘家新中式别墅
项目经理:陈林欣
图纸编号:1835
建筑面积:427.2㎡
占地面积:224.2㎡
基地面积:678㎡
建筑尺寸:22.1m×11.5m
建筑结构:砖混结构
参考造价:87万元(室内装修费用另计)
项目概况
△总平面示意图(左上角为北)
基地情况:
东:村内道路
西:邻家住宅
南:村内护坡
北:村内山体
△场地情况
项目简介:
业主在项目前期希望在自家庭院内增设独立的柴火房区域;在立面造型上,希望设计为融入现代元素的新中式风格。设计师根据项目场地存在高差的特殊情况,及业主的需求和喜好,将项目确定为带架空层的双层新中式别墅。
平面布局
户型概况:
2层 / 9室 2厅 5卫 2厨 1堂屋 1土灶 1储物 1洗衣 1书房 3阳台
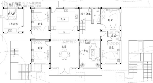
△一层平面图(左上角为北)
一层分为两个部分,设计师将柴火间单独置于北侧作为辅房使用;主房一层共布置4间卧室,其中南侧的长辈套房搭配独卫使用;中部预留了较大面积的堂屋,满足逢年过节的待客需求。
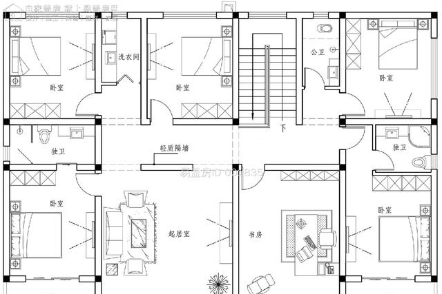
△二层平面图(左上角为北)
二层以办公居住为主,共设置5间卧室,其中西南侧的双主卧套房,均搭配独卫和阳台使用;业主可通过客厅和书房进入旁边的阳台空间,提供了观景、晾晒的场所。
造型设计
△西南侧效果图
△西侧效果图
△南侧效果图
项目为新中式风格,建筑师以西南侧作为主立面,屋檐配合柱体划分立面空间,同时与二层的室外空间形成呼应,使其具有丰富的层次。
△鸟瞰图
△东侧效果图
△北侧效果图
庭院后期可根据业主需求摆放室外桌椅,建筑四周以平台确定室内外分界,帮助提升入户仪式感。
△局部效果图
△局部效果图
△局部效果图
南侧庭院设置了水景和休闲区,风水上佳的格局环境,使居住体验更进一步。立面的大开窗设计增加室内外交流,明亮的室内环境和开阔、无遮挡的视野让日常生活也是种享受。
△东立面图
△西立面图
△南立面图
△北立面图
设计师问答
1. 设计周期是多久?
答:35天左右。
2.本项目在结构上做了哪些优化?
答:业主家场地存在近6米的高差,因此增设了架空层。架空层部分必须用框架结构,考虑到整体造价,建筑主体与架空部分分开施工。

















