天安豪园二期
闵行七宝9号线
推出约110㎡-187㎡2-4房
外环内古美板块纯新盘
购房者重点关注区域
规划方案已出

01
板块及项目信息
闵行七宝,作为上海外环外最受认可的板块之一,一直都是购房者重点关注的区域,但无奈的板块内多年来几无新盘入市。沉积多年的天安豪园推出了自己的二期规划。
天安豪园二期规划公示截图
27-01地块与天安豪园二期示意图
天安豪园可算得上区域内的超级大盘,项目总占地37.8 公顷,总建筑面积47万平方米,总户数约3500户。项目分为一期和二期两个组团,一期由18栋13层小高层及1栋9层的小高层组成,已于2011年交付。
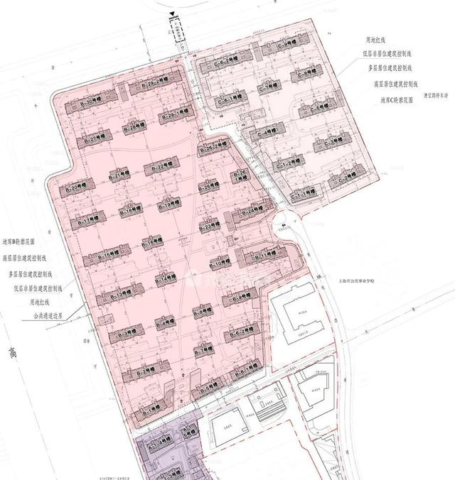
至于项目二期由于动迁等原因迟迟未动,此前也有消息传出开发商想要出售的消息,不过目前终于可以确定天安豪园二期终于要来了。根据天安豪园二期的公布方案来看,将分为A、B、C三个部分,共建设48幢,最高13层的住宅楼,整体容积率为1.94,建筑密度为30%、绿地率35%。
天安豪园二期规划楼栋分布示意图
根据规划总户数为2206户,配备有3446个车位,车位比达到了约1:1.56,从栋距和高度来看,未来的居住条件将会较为舒适。
天安豪园二期相关参数
目前项目已开始动工,处于地面平整阶段。
天安豪园二期工程实景
02
周边配套
天安豪园二期距离9号线星中路站直线不过300米,这个含金量非常高的轨交盘。
项目西侧就是外环高架、闵行文化中心。小区位方面称得上是优秀。
而旭辉七宝项目距离12号线虹莘路站直线也不过500米,也同样是个不俗的轨交盘。
但天安豪园二期北面直线约600米就是闵行万象城以及10号线紫藤路站、1公里就是爱琴海购物公园。
而从家门口的9号线星中路站坐轨交1站就是七宝,周边不管是七宝万科、宝龙城,还是七宝老街、都是闵行数一数二的商业、商业体。
这样的地段和配套、配以项目本身值得期待的品质,这或许是未来七宝地标般的项目。
旭辉七宝项目虽然距离12号线虹莘路站直线不过500米,但在配套和小地段方面,明显要逊色一些。
另外,值得一提的是,天安豪园一期对口的是七宝实验小学、七宝实验中学,都是闵行十分出彩的学校。
而距离旭辉七宝项目800米外的皇都花园对口的是七宝明强小学,闵行小学中的第一梯队。
03
一期户型图
说到项目户型方面,项目一期房型均呈现大开间、短进深的特点,主力房型为133㎡3房,占到一期总量的70%,其余房型为100㎡2房,155㎡3房,170㎡4房。
天安豪园一期户型图
而二期目前得到的消息,将会延续一期大户型的特点,主推约110㎡、136㎡、165㎡、187㎡等房源。
至于价格方面,项目一期二手房成交均价已达7万+/㎡,至于二期未来售价或许只高不低。














