这是一套62平的小户型,只有一个卧室,所以需要进行改造一下。原本的卧室面积是最大的,在阳台进行了改造一番,变成了一个小卧室,即便晚上有客人过夜也方便很多。

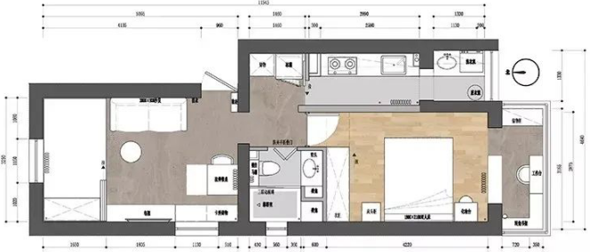
这是户型的平面图,基本的布置就是这样了。
玄关的空间不大,所以想要现场制作一个鞋柜就不太可能了,买一个薄款的鞋柜就可以基本满足日常的所需了。过来一点就是餐厅和客厅,客厅是用红砖墙,效果也很有个性的。
浅灰色的电视背景墙和简单的家具布置,让整个客厅的视觉效果也挺舒适美观。旁边的是原本客厅的阳台,做成了一个备用的卧室,用日式的格栅门做隔断,这样还挺有原木风的感觉。
餐厅一边的餐椅是和电视柜一起的,样子就有点像卡座了,收纳就座都可以。简简单单的,看着也舒服,餐桌边还有一个窗户,视觉效果也很广。
一字型的厨房就是长而已,木色的橱柜搭配上白色的吊柜,让整个厨房看上去也有简洁舒适的效果。
厨房尽头原本是生活阳台,把他们打通之后,空间就显得大了很多,正好把洗衣机放在那个地方,洗衣做饭都可以在这里解决了。
客厅对面就是卧室,蓝灰色的床搭配灰色的背景墙,还显得挺有格调的。简洁的木色和白色的衣柜和化妆台,实用也美观。
卧室旁边还有一个阳台,除了作为平时的晾晒之外,在另外一端还做了书桌柜。一个简单的书房工作区就产生了,这样就算在家里办公也不是什么问题了。
卫生间的面积并不大,但还在用浴帘和挡水条也能做到干湿分离。加上洗漱柜和壁龛之类的收纳设计,这样一来也就不缺储物空间了。









