
项目名称:河北涿州齐家中式三合院
项目经理:袁君伟
图纸编号:1885
建筑面积:264m²
占地面积:160㎡
基地面积:274㎡
建筑尺寸:14.8m×17.5m
建筑结构:砖混结构
参考造价:63.7万元(室内装修费用另计)
项目概况
△场地情况
基地情况:
东:邻家住宅
西:村内道路
南:村内道路
北:村内道路
项目简介:
业主在项目前期对平面布局有大致需求,同时希望在立面造型凸显传统古朴之感,并提供了自家基地尺寸。设计师根据场地情况,及业主的需求和喜好,将项目形式确定为带双层主房的中式三合院。
平面布局
户型概况:
2层 / 4室 2厅 5卫 1厨 1娱乐室 1阳台
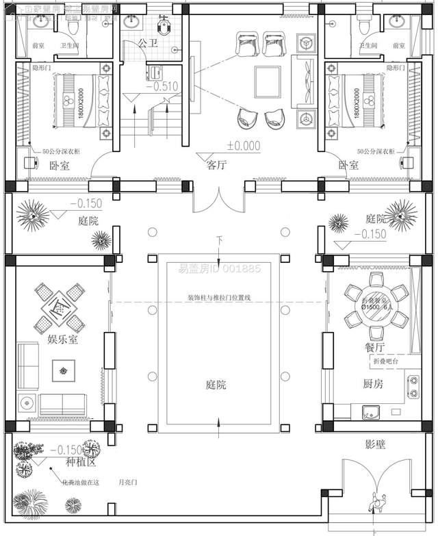
△一层平面图
院落从东西侧进入,整体功能划分明确,主房入户位于南侧,规划出了待客和居住空间;西厢房设置了较大面积的娱乐室空间,东厢房为餐厨空间。
△二层平面图
主房二层东西两侧共设置2间卧室套房,搭配独卫使用,功能齐全;中部的起居室向外延伸出阳台区域,满足业主家日常晾晒、休闲需求。
造型设计
△东南侧效果图
△西南侧效果图
△东南侧效果图
建筑为三合院形式,立面采用白色真石漆搭配深色古建青瓦,设计师通过古建窗花、雀替等中式元素,让整体展现出独有的复古韵味。
△东北侧效果图
△院门效果图
△庭院效果图
顶层的阳台设计既可欣赏乡村美景,又满足业主家日常的活动、晾晒所需。院门选择简单、大方造型的门楼样式,与建筑整体风格十分契合。
△庭院效果图
△局部效果图
△局部效果图
庭院内的绿植景观为建筑整体增加自然气息,后期也可摆放户外家具,作为品茶、待客或者聚会的活动空间。
△东立面图
△西立面图
△南立面图
△北立面图
施工现场
该项目全程由易盖房提供施工管家服务,目前已正式开工。下面为大家贴上一组现场照片。
△主体结构封顶
设计师问答
1.这个项目的设计周期是多久?
答:1个月左右。
2.作为设计师,你觉得本项目在施工的过程中需要注意哪些问题?
答:东墙与邻居间隔30公分,做了偏心条形基础,施工砌筑时需多加注意。
























