
项目名称:河南周口王家欧式别墅
项目经理:梁雨
图纸编号:1912
建筑面积:284.4㎡
占地面积:159㎡
建筑尺寸:16.9m×11.1m
建筑结构:框架结构
参考造价:62.6万元(室内装修费用另计)
项目概况
△总平面示意图
基地情况:
东:邻家住宅
西:邻家住宅
南:村内道路
北:村内道路
平面布局
户型概况:
2层 / 5室 2厅 2卫 1厨 1土灶 1衣储 1洗衣 1阳台 1露台 1阳光房
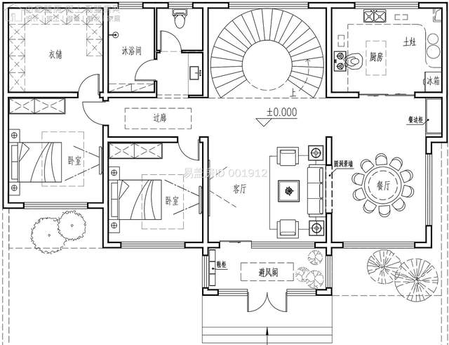
△一层平面图
△二层平面图
造型设计
△东南侧效果图
△西南侧效果图
△鸟瞰图
△西南侧效果图
△东北侧效果图
△人视图
△东立面图
△西立面图
△南立面图
△北立面图
设计师问答
1.设计周期是多久?
答:33天左右。
2.本项目的设计过程中你是从哪方面考虑入手?
答:本次设计保证南侧为主立面,所以在布局以及造型上都做了一些变化,提升了整体的层次感。













