对于赴日留学的学生和家长来说,租房是仅次于学校和私塾的第三件大事儿
那和国内相比较,日本的租房有什么不一样呢?
接下来江户日语出国留学部的老师会专门开设一个系列课堂给大家详细说说日本租房的那些事儿

第一讲,江户酱就先给大家摆一摆日本的户型
日本的公寓格局跟咱们的几室几厅叫法不同,日本的房子通常是简称为1R\2DK\1LDK,这些分别是什么意思呢?
日本租房,R\L\D\K是什么?
数字:通常是有几间卧室;
R:Room,卧室,有洋室和和室;
L:Living Room,客厅;
D:Dining Room,餐厅;
K:Kitchen,厨房
偶尔还会有S,表示的是Service Room,直译为服务空间,通常就是储物间。
▲上图是典型的日式居室,餐厨一起,和客厅仅用墙柱横梁隔开▲
日本租房——1R公寓
在日本大部分的1R公寓中,当您走进屋内会先看到厨房位在玄关的左侧或右侧。在上图范例中,厨房位于玄关左侧,矩形长方形代表厨房区域,内部的弧形矩形代表水槽。
大部分面积较小的1R公寓都是采“整体卫浴”,日文称“ユニットバス”,来自英文的“Unit Bath”,整体卫浴是指浴缸、洗脸台和厕所位在同一间浴室内。
日本租房——1K公寓
在上图的范例中,厨房和客厅/卧室之间以门隔开,因此无需在同一个房间内睡觉和煮饭。然而,1K公寓的厨房不见得比1R公寓的大。
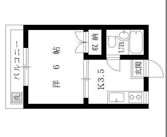
日本租房——1DK公寓
1DK的浴室和厕所可能会分开,或者如果公寓比较小则也可能采整体卫浴。在上图的范例中,浴室和厕所是分开的。
大多数1DK都有一些内置壁橱(衣柜),有些甚至有其他储藏空间,所以如果是东西很多的人租一间1DK会比较合适。此外,部分较小的1R或1K公寓允许住2人,这样的情况1DK也会比较合适。
如果看到一个平面图代表公寓是2DK,这意味着公寓内除了客厅/用餐/厨房区外,还有两个独立的房间。
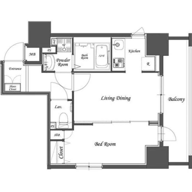
日本租房——1LDK公寓
1LDK是有一间卧室、一个客厅/用餐区以及一个厨房间的公寓。在1LDK公寓中,客厅/用餐区通常比卧室大,并且通常至少有一个内置衣柜。而且,在大多数1LDK中,浴室与厕所分开。如果您在公寓列表中看到2LDK,则表示该物业除了客厅/用餐区和厨房区外,还有两个独立房间。
各房型的利弊和适宜人群
01、1R
典型大小:12-25㎡
优点:价格最便宜,一个人住刚刚好
缺点:
收纳空间少,不适合东西太多;
厨房空间小,爱下厨的人可能不太方便;
有些1R公寓没有洗衣机,或者洗衣机放置在阳台\走廊;
洗漱卫浴没有分开,通常是整体;
02、1K
典型大小:20-25㎡
优点:厨房和卧室分开,因此油烟味不会串到卧室去
缺点:
收纳空间和厨房比1R稍大;
面积小的也是整体卫浴,大一点的可能会有独立洗脸台;
同样面积,租金比1R贵,
03、1DK
典型大小:25-35㎡
优点:一个人居住较为宽敞,两个人也可以接受
缺点:
价格比1R\1K都贵;
比起1R\1K公寓,2人的话入住1DK比较合适;
04、1LDK
典型大小:30-50㎡
优点:最为宽敞舒适,2人居住刚刚好
缺点:
除了贵,没毛病!
以上就是关于「日本租房」的第一讲,下次我们会继续为大家讲讲日本租房的一些术语,比如敷金、礼金这些~
大家喜欢的话记得点赞关注转发三连哟!








