
项目名称:江苏南京孔家欧式别墅
项目经理:易子木
图纸编号:1943
建筑面积:251.2㎡
占地面积:120.5㎡
基地面积:150㎡
建筑尺寸:10m×13.5m
建筑结构:砖混结构
参考造价:41.5万元(室内装修费用另计)
项目概况
△总平面示意图(右侧为北)
基地情况:
东:邻家住宅
西:村内道路
南:村内道路
北:邻家住宅
项目简介:
业主在项目前期对平面布局有大致需求,希望根据基地的形状进行特色设计;在立面造型方面业主喜欢雅致的欧式建筑。设计师根据场地情况,及业主的需求与喜好,将项目形式确定为双层欧式别墅。
平面布局
户型概况:
2层 / 2室 1厅 3卫 1厨 1储藏 1茶室 1露台
△一层平面图(右侧为北)
一层以待客休闲功能为主,东侧空间整体设置为待客休闲区域,其开放式设计使得整个入户空间更加开阔,设计师利用楼梯的拐角设置了储藏区,进一步优化整层的有效使用率。
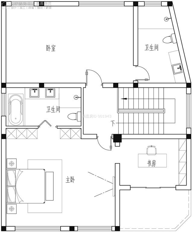
△二层平面图(右侧为北)
二层以居住休闲功能为主,共设置2间卧室套房,其中东侧的卧室套房,搭配书房、独卫和露台使用,让居住者日常使用更加便捷。
造型设计
△东侧效果图
△东南侧效果图
建筑整体为欧式风格,立面采用大量的浅色真石漆和文化石,搭配褐色窗框、浅色立柱和褐红色屋顶,营造出雅致的氛围。
△鸟瞰图
△鸟瞰图
主立面选用大面积开窗及六角窗设计,让室内更加通透的同时,丰富整体的立面效果。院墙通过虚实结合的手法,将庭院外景色引入院内。
△西北侧效果图
庭院四周预留了大面积的绿坪景观区域,留白空间作为人行道及休闲活动空间使用;从二层露台向下看去,整个庭院都能收入眼中,观景角度极好。
△东立面图
△西立面图
△南立面图
△北立面图
设计师问答
1.本项目设计周期是多久?
答:45天。
2.本项目从哪方面考虑降低造价的措施?
答:结构规整,上下对应,在一定程度上可减少造价。












