河西中即将新添两所小学,或将事关云际花园、颐和源璟的学区划分。
近期,根据南京市规划和自然资源局的公示,这两所小学名分别为新城科技园学校和所街小学!其中新城科技园学校的规划建成或将对区域内云际花园(售罄)、颐和源璟(待售)等新盘的学区产生影响。

01
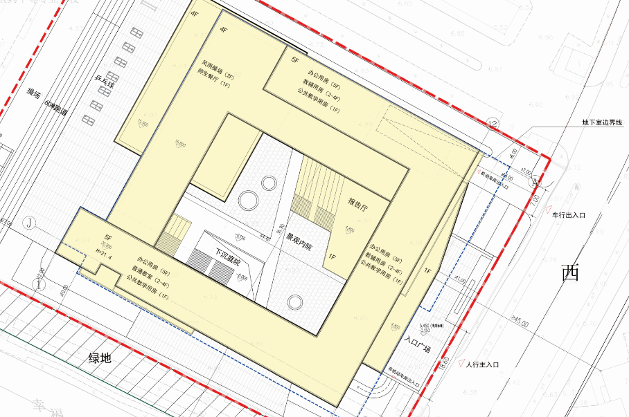
新城科技园学校
新城科技园学校位于建邺区新城科技园内,在西城路以西,楠溪江东街以南,金洲苑小区以东,是一所九年一贯制学校。学校将分为两期开发,附近有老小区康苑新村、钟鼎雅居,新房有云际花园、龙湖时代上城(公寓)。
根据公示,学校建筑高度不高于24米,项目内容包含中小学教学楼、实验楼、餐厅、配套用房、400米跑道、地下停车场等,总建筑面积约31500平方米。
(学校效果图)
这所学校建成后,或将对距离较近且尚未划分学区的新盘云际花园、颐和源璟产生影响。
目前两盘的学区都未确定,但根据2020年建邺区公办中小学施教区划分,凡属于泰山路以东,南河以西,梦都大街以南,河西大街以北区域符合施教区入学条件的儿童,2020年小学入学到建邺实小,中学到新城中学黄山路分校。
(小学)
(中学)
根据这样的划分,云际花园和颐和源璟目前所处的区域由建邺实小和新城中学黄山路分校代招!
(建邺实小施教区)
交付后,对于云际花园而言,成为新城双学区的梦想怕是很难实现了,云际学区届时有可能是新城科技园学校。(实际以当年教育局划分为准)
对于颐和源璟而言,则比较尴尬。颐和源璟距离万科光明城市、中海塞纳丽舍等新城本部双学区房仅仅隔了一条街,这一条街的距离很大程度上会影响买房人的决定。
目前来看,新城小学施教区内生源爆满,超过学校办学容量,未来是否会继续容纳新盘生源还未可知。
因此,冲着新城双学区的购房者需要考虑清楚,颐和源璟未来有可能被划进去,也有可能是新城科技园学校或者其他,这是一手赌博。(实际以当年教育局划分为准)
不过,抛开学区因素,颐和源璟是近期入手河西中新房比较好的机会,目前河西中新房奇缺,颐和源璟预计春节后首开A3和B9两栋楼共240套,户型建筑面积约115㎡、125㎡、143㎡。
价格方面,置业顾问建议按照含包6万/㎡准备。这个价格不算低,但是未来如果被划入新城双学区则倒挂明显,目前区域内二手房挂牌均价在7万/㎡左右。
02
所街小学
根据公示,所街小学位于建邺区湖西街与所街交汇处,东邻湖西街,南侧为河道景观。周边小区有华润悦府、金地名京等,距离世茂天誉也不远。
所街小学将分为两期开发,一期包含教学楼、配套用房、报告厅、餐厅、60米跑道等,面积不大。二期或将会是南京市医药中等专业学校。
(学校效果图)
待所街小学完全建成后,附近的豪宅华润悦府的二手房价将有望迎来一轮涨幅。
华润悦府学区很普通(南湖三小和南湖二中),目前凭借着优越的地段、精细打磨的品质和成熟的配套,在竞争激烈的河西中部占据一席之地。
当下,华润悦府二手房挂牌均价为62230元/㎡,最高成交单价为65576元/㎡。最近的一次成交记录在去年12月,以62140元/㎡的单价成交了一套243平房源,总价1510万。
未来,华润悦府如果引进优质学区,其升值潜力将大大提高。有业主透露,新建成的所街小学可能是新城或者金中实小。
03
河西的学区房价节节攀升
在南京,学区往往是一个小区安身立命的最大本钱,它能让小区无惧时间的流逝,二手房价始终处于坚挺的状态。
以河西南“星八客”、河西北恒盛金陵湾为例,区域二手房价格又迎来了一轮新的涨幅。
河西南正荣润峯最高成交价刷新了。
1月初,正荣润峯以69267元/㎡的价格成交了一套112平房源,总价778万,离7万/㎡的单价一步之遥。
河西北树人学区二手房成交热度攀升,
1月初,恒盛金陵湾以74021元/㎡的价格成交了一套69平房源,总价510万。近30天带看了185次。
再看区域内的其他房源,有中介表示:前段时间钟英一天卖了12套,现在树人破纪录,一直在逆市增长,年前买房,年后涨价。
还有中介表示:树人一周成交了近30套,太生猛。
好的学校对于房价的影响不言而喻,河西中这两所新学校的规划建设,未来对于周边楼盘是利好还是利空,买房人可以拭目以待。
























