友导读
2月21日,《中共中央国务院关于全面推进乡村振兴加快农业农村现代化的意见》正式发布。中央一号文件提出,编制村庄规划要立足现有基础,保留乡村特色风貌,不搞大拆大建。
在“三农”工作重心从脱贫攻坚向全面推进乡村振兴历史性转移的大背景下,友成企业家扶贫基金会携手融创中国控股有限公司,与雷山县人民政府签约,共同打造乡村振兴的“龙塘样本”已见成效。目前,龙塘村已经整村脱贫,从当年的贫困村转变成为示范村,作为中国新农村的样板脱颖而出。

△ 鸟瞰龙塘村全貌 摄影:存在建筑-建筑摄影
对于传统村落,保护是为了能让其更好的发展,发展才能实现对其真正的保护。我们希望在建造体系和建筑材料的更迭背景下,为苗寨民居做一个更新示范,寻求真实生活新需求与风貌协调的平衡。同时也希望借助外力的作用为龙塘挖掘文化、振兴工艺、引入产业、搭建平台,帮助其重新焕发内在活力,使其在外力撤出之后,依然能维持良好可持续的生存状态,完成真正意义上的稳定脱贫。
——设计师孟凡浩
龙塘村位于贵州黔东南雷山县,梯田茶林云雾缭绕,吊脚木楼依崖而落,淳朴的苗人世代居住于此,沿袭着古朴自然的生活方式。然而,被列入中国传统村落名录的龙塘却因产业基础薄弱、人口空心化,而逐步走向衰落。
△ 云雾缭绕下的龙塘 供图:gad · line+ studio
△ 龙塘苗寨梯田 ©gad · line+ studio
2013年11月,“精准扶贫”重要思想被首次提出,成为我国脱贫攻坚的基本方略,在这一思想指引下,我国精准扶贫实践不断深入推进。贵州苗寨“龙塘山房”也是乡村振兴与精准扶贫实践背景下的作品,受融创中国、国务院扶贫办、友成基金会共同委托,设计团队依托在乡村振兴领域的经验积累,深入龙塘,重塑村落。
△ 苗寨生活 ©一条
△ 远望新建建筑 摄影:存在建筑-建筑摄影
项目建筑面积为2400平方米,包括1650平方米的增量建筑置入和750平方米的存量建筑改造,其中增量部分由8幢单体客房及餐厅、悬崖剧场、无边泳池等公区配套组成,配以登山步道建设及局部景观修复,以此带动整个村落的生活生产动线及未来发展的文旅产业流线。
△ 水田与新建建筑 摄影:存在建筑-建筑摄影
1
直面传统乡村生活的新诉求
团队在调研的过程中,发现龙塘村也面临着当今很多传统村落的一个所谓“通病”——自发改造:村民们自发将传统美人靠用铝合金门窗封闭,来抵御严寒的气候。原本底层堆放农具的架空层也被村民用水泥和砖等现代材料扩建为房屋和卫生间等。村书记说道:“村子里通了路,一些基本的现代建筑材料变得容易买到,近几年村民们陆续在改造自家房屋,来看过的专家都说我们是在“搞破坏”。
诚然,这是一种对传统建筑风貌的人为侵袭,但在团队看来,这种村民自主的集体性改建,实则是他们真实生活需求的体现。传统农耕时代产居结合、就地取材的木构吊脚楼,已无法满足新时代下村民们舒适便利的基本生活需要。
△ 设计介入前的村民自改房 ©gad · line+ studio
传统民居与现代生活需求,传统风貌与新型工业材料,传统工艺与新产业的激活,一边是田园牧歌的理想,一边是现实的发展与生活的需要,同时极低的造价预算也是需要克服的设计障碍。这些看似相互矛盾的问题摆在眼前,设计团队参与其中,从建筑师的角度,试图给这个走向没落的传统苗寨一个回应与解答。
△ 新建建筑外观 摄影:存在建筑-建筑摄影
尊重历史,拥抱未来——设计团队在风貌保护区内为村民做民居改造示范,在保护区外选址植入具有当代甚至未来感,却不失吊脚楼师法自然精神内核的精品民宿——存量与增量设计并行。团队试图在提高村民生活品质的同时,理通苗寨的聚落脉络与文化脉络,为藏于深山的贫困村落引入流量,注入活力,激活村落自我造血能力。
△ 观景平台 摄影:存在建筑-建筑摄影
2
“应对与通用”——存量改造
存量改造以村民自发改建时相近的成本,在对传统苗寨吊脚楼深入研究的基础上,对村民的生活方式和个人诉求做出回应。设计团队希望改造完成后,这个既解决问题又维持造价不变的设计能够成为村民改建自家房屋的范本,改变原有私搭乱建对传统风貌产生的破坏。
△ 存量改造策略 ©gad · line+ studio
平衡传统建筑与现代需求间的冲突,并减少现代材料带来的异质感,是设计团队在存量改造时首先考虑的问题。改造设计最大化地保留和利用原有建筑的结构与立面材料,将村民当代生活中需要的现代化厕所、厨房、农具储存等生活功能,作为一个空间体块植入原有建筑的架空层及一侧,同时留出部分架空区域,为村民避雨、遮阴、社交、停车等日常需求提供场所;屋顶空间延续村落风貌,增加坡屋顶,同时也提供了通风遮雨的屋顶晾晒区;最后,设计也希望通过增设太阳能光伏板的方式,为村落带来绿色清洁的能源。
△ 建筑改造前后空间示意 ©gad · line+ studio
△ 改造前后轴测图 ©gad · line+ studio
得益于材料的在地性与对结构、构造的简化,示范改造的最终成本与村民自发改建的成本相近,完成效果也得到村民的认可和自发地模仿,当地的15户村民以此为范本对自家房进行了改造,实现了以点带面的示范性推广,达成一种应对需求下的,从侵蚀风貌到修复风貌的自我复兴。
△ 示范性改造成果 摄影:存在建筑-建筑摄影
△ 示范性存量改造内部空间 摄影:存在建筑-建筑摄影
3
“生长与对话”——增量置入
“龙塘山房”和传统吊脚楼一样,生长于山脊上,在化解地势高差的同时形成高低错落、互不干扰视线的客房聚落。选址与风貌保护区相隔却又相互遥望,仿佛是苗寨的过去与未来遥相呼应。
△ 新建建筑夜景 摄影:存在建筑-建筑摄影
客房的形制由传统的苗族吊脚楼演变而来,设计师将建筑底层架空,脱离山体,在满足通风防潮需要的同时将客房设备隐藏其下,整体建筑体量得以悬浮在山林坡顶,远观若隐若现,近观与山融为一体。每栋客房入口在建筑与山体交合处,利用地形形成巧妙的上下立体关系。
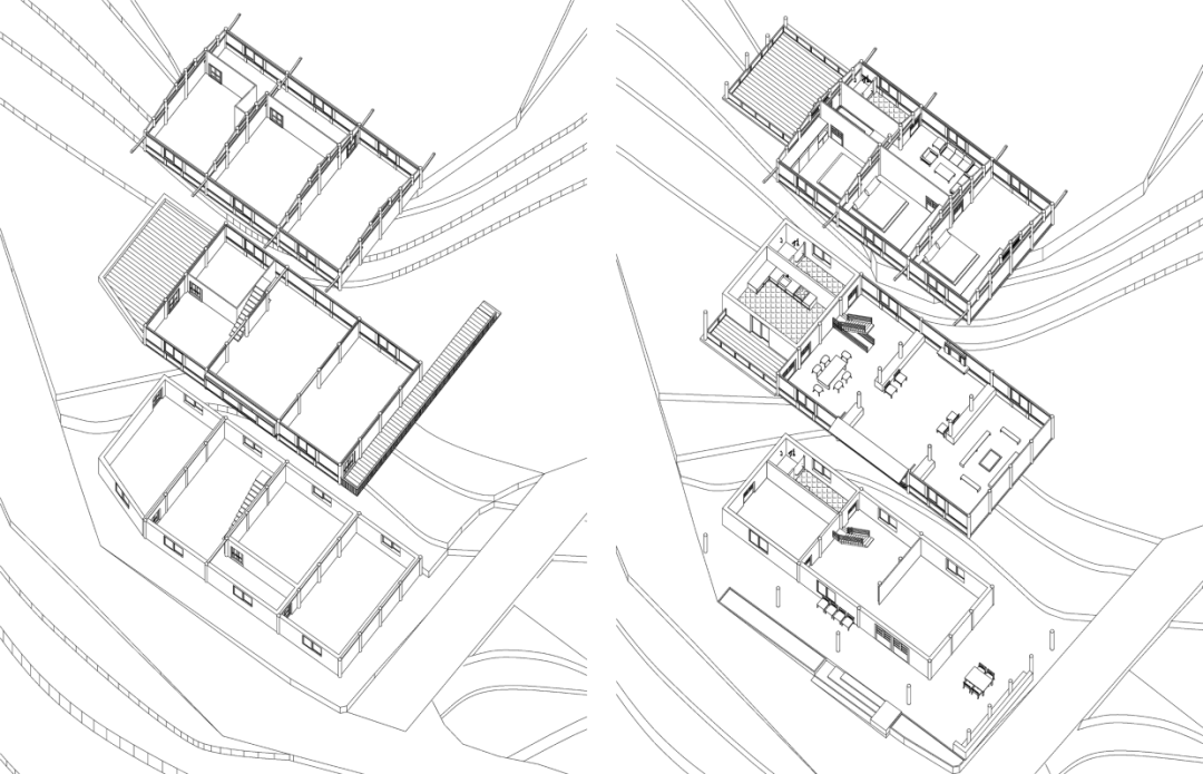
△ “龙塘山房”总平面图 ©gad · line+ studio
△ 客房 摄影:存在建筑-建筑摄影
在客房的建造过程中,轻与重不存在对立,而是互相成就。基于场地施工难度,客房原计划通过钢结构预制生产,以实现一种轻盈的未来感,但在极低的造价条件下,经过与当地施工人员沟通,最终还是调整成虽显沉重,但价格便宜的钢筋混凝土结构。
△ 客房二层平面图 ©gad · line+ studio
△ 云雾中的客房 摄影:存在建筑-建筑摄影
△ 客房内部空间 供图:gad · line+ studio
建筑体量漂浮在近45度的山体斜坡上,将玻璃、金属板等当代材料与毛石、小青瓦、木材等在地材料相混合利用,以脱离基底的建筑体量与融入山林的材料质感,将建筑结构的“重”消解。设计基于在地条件,以现代的建造手法转译出传统吊脚楼依山就势的特点。
△ 新建建筑夜景 摄影:存在建筑-建筑摄影
“龙塘山房”的民宿公区则突破了传统乡土建筑的形式与风格,试图营造精致纯净的现代感与自然山野之间的对话。建筑根据山体的高差自然分成两个“L”形体量,上下连接,相互咬合,上部探向远山,下部内敛于半坡,依据山形山势生成流动的边界,嵌入山体与森林,以抽象的形式对话传统的龙塘苗寨。
△ 民宿公区 摄影:存在建筑-建筑摄影
△ 公区一、二层平面图 ©gad · line+ studio
交错咬合的“L”形体量获得了最大化的景观活动面,分别形成了两个不同高差的室外景观露台。上层屋面可登高望远,一览村落与人文与自然美景,下层屋面也结合使用功能,形成室外景观剧场和无边泳池。
△ 游客在屋顶远眺山景 供图:gad · line+ studio
△ 对话苗寨的无边泳池 摄影:存在建筑-建筑摄影
考虑到山地以及曲面施工的复杂性,建筑主体采用钢结构体系,外部包裹金属铝板,内部与室内界面留出空腔填充轻质保温及防水材料。它们整体在工厂加工完成,并在现场完成吊装,建造简易迅速,运输方便安全。这样的选择,也充分应对了乡村现场施工的精度不足,以及山地施工的复杂条件带来的挑战。
△ 民宿公区 摄影:存在建筑-建筑摄影
△ 公区钢结构框架 供图:gad · line+ studio
△ 公区主体结构 ©gad · line+ studio
4
价值溢出下的精准扶贫
如今,龙塘正重拾乡村活力,实现了从“生活”到“生产”的全面进步。两年多来,业主方结合自身优势产业及资源,通过文旅切入、产业带动、文化激活、教育帮扶等手段,在保护村庄民族文化及传统生活方式的基础上,建立起“扶贫不返贫”的长效发展机制。龙塘乡村实践的阶段性成果,同样引起了社会的广泛关注,借助建筑为媒介所产生的社会影响力,龙塘在投入运营后,更是进一步实现稳定脱贫、持续增收、逐步致富,从当年的贫困村转变成为如今的示范村。
△ 建筑外观 摄影:存在建筑-建筑摄影
建造不是一蹴即就的过程,乡村振兴更是多方合力实践下才能完成的愿景。设计团队以建筑师的角色投身脱贫攻坚的前方战线,应对传统苗寨村落在发展失位中产生的现实问题,“以存量示范,以增量带动”,在地理与经济的限定条件中解决直观需求,为乡村“造血”,使其在现代新型生活方式的转型中自我更新,有序发展。
△ 项目夜景 摄影:存在建筑-建筑摄影
完整项目信息
项目名称:贵州龙塘精准扶贫设计实践
项目地点:贵州省雷山县龙塘村
规划建筑设计:gad · line+ studio
主持建筑师/项目主创:孟凡浩
设计团队:梁曦、朱明松、张罕奇、涂单、石尚流、代圣轩(建筑);金鑫、章镇东、李崇昊(室内);李上阳、金剑波、陈晓蓉、张文杰(景观)
建筑面积:2400平方米(新建1650平方米,改造750平方米)
设计时间:2018年8月—2019年8月
建造时间:2019年8月—2020年10月
结构机电设计:浙江绿城建筑设计有限公司
设计团队:任光勇、李根、唐旭超(结构);吴文坚、李翔(水);崔大梁、钟田力(暖);陆柏庆、曹俊(电气)
业主:融创中国、友成企业家扶贫基金会、龙塘村委合作社
运营:印主题酒店管理公司
摄影:存在建筑-建筑摄影











































