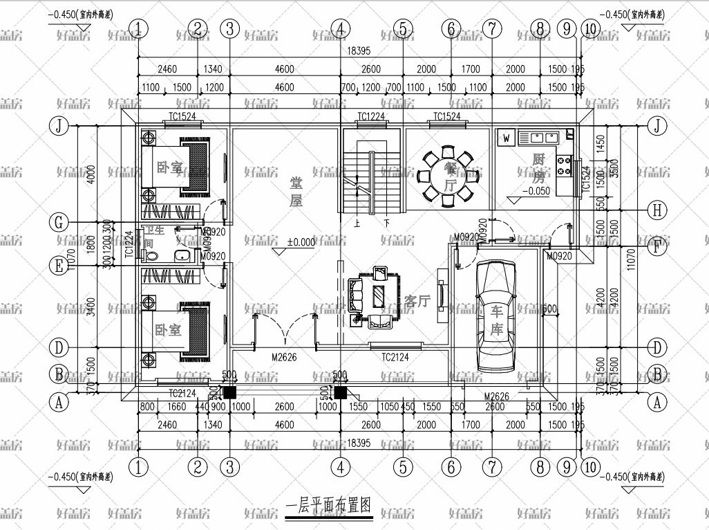
农村自建房屋的费用是多少?本文将教你如何计算。农民在农村建房时,经常会遇到住房成本问题。建造这所房子要花多少钱?农村自建住房的费用是多少?如何计算?看看这篇文章。 农村自建房屋的费用是多少?本文教你如何计算!!
1、农村自建住房成本的计算方法如下
1. 建筑的成本估算也不同于建筑的成本估算。砖混建筑自建房屋造价为1200-3000元/ m2(现在很少人建砖混建筑),框架建筑自建房屋造价为1500-4000元/ m2。以上费用不包括建造前后庭院的费用。
2. 农村自建住房的成本计算应考虑其成本。例如,自建房屋无论是砖混凝土结构还是框架结构,底部框架结构还是剪力墙结构,例如,框架结构可能在1000元/平方米左右,但办公楼将在1300-1500元/平方米左右。
3.农村自建住房的成本也可以采用综合估算法进行估算。主要是及时估计房屋的总体成本水平。只要对建筑物的楼面、结构、形式有个大致的了解,就可以得到一个大致的估计。 比如邻居去年建的房子花了20万元左右,他们要建这么大的房子,但是装修可能会好一点,所以价格可能在23万元左右。 另一种是通过成本指数进行估算。例如,一套自建的两层房屋的价格大约在1500-2000元/平方米。只要你知道大概的建筑面积,你就可以得到一个基本的总价。然而,这种估算虽然是最快的,但是误差也比较大,只能作为初始成本估算。

1. 主要是通过对建筑结构的分解,对各个项目的价格进行估算,最后归纳为整体价格。这个过程也将更加复杂。比如在施工过程中,墙体抹灰的用量和灰分的等级不同,价格和成本也会发生变化。装修测量时,是否需要用石膏板做吊顶或用铝扣材料做吊顶,使用白色乳胶漆等也应考虑作为自建房屋估价。 在农村自建房屋的成本中,我们需要考虑门窗的成本,是否需要地下室,自建房屋的人工成本。
例如,桩基工程的成本、室内水电安装工程,屋面工程,土方工程,大门,烟道和其他成本,地下室的施工,以及劳动力成本建造房子,模板的成本,支撑架,支架和临时设施需要盖房子。 以上是关于农村自建房屋的费用。详细介绍了自建房屋造价中需要考虑的因素。通过对这些方面的评估,我们可以对自建房屋的成本有一个清晰的认识。如果你想知道更多,请留言。


