在我们的传统认知中,医院本身不太会令人关联到“轻松”和“平静”的感觉。精神病院尤其如此,常被赋予古怪或悲惨的刻板印象。
基于这种现状,我们在设计这个精神卫生专科医院时,就希望打破这种固定认知,让精神障碍人群和精神病院融入社会,而非隔绝。

这是一家二级精神卫生专科医院,建筑面积18000平米。
医院设计工作,从打造医院品牌形象开始。
设计前期,我们搜集国内外精神病院品牌,同时模拟精神障碍人群视角,去描绘对精神病院的期待,并且征询了医院员工意见,一致认为:精神病院应该是充满希望的。
所以,最终确定的医院品牌标志,就是这样的:
冰绿色看起来清爽明朗,很有治愈感,绿叶图形则给人活力和生机的感觉。
而且,还由医院品牌标志延伸出一整套视觉识别系统,包括宣传物料、导视系统、医疗事务用品、员工服装、交通工具等。
这样一来,医院品牌形象也“活了起来”,成为一道流动的风景线。
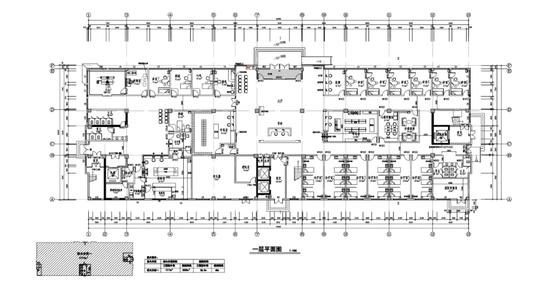
相较于医院品牌形象的“全新创作”,精神卫生专科医院室内设计则属于更具难度的“改造设计”。
建筑之前的使用性质是工厂用房,要改造为精神病医院,就要重新规划平面功能,并进行空间改造。
比如,门、急诊要分开设置,患者之间不会互相影响。
门诊的一楼,要设置导诊台、收费、取药等服务窗口,诊室单元则采取集中分布,这样可以促进医疗协作,缩减患者的活动流线。
除了空间功能的重新规划,还要做好医院空间的安全设计,预防部分患者过激行为带来意外伤害。
这里采取的设计方法是,护士站布设在安全区域的视野开阔处,便于监护:
诊室内增加应急撤离门:
另外,因为疾病的治疗通常是一个长期过程,所以精神病院的设计也不能忽视舒适性和便利性。
就医院大厅来说,建筑结构采取中庭挑空,外墙使用玻璃材料,让室内有了充足的自然光照条件。
治疗室这里也不会给人压力,阳光就是最好的疗愈剂,墙绘看起来也很清新:
还有,餐厅的位置也很好,将窗外的风光都引了进来。
长期以来,精神障碍人群面临的最大挑战,往往不是病症本身,而是自身的病耻感,以及外界对精神病症的污名化。
但实际上,精神障碍并非无尽深渊,精神病医院也不是禁锢之地。以理解和支持为基准,我们希望这个精神病院的设计,能借助临床诊疗和康复环境的双重推动,最终达成帮助精神障碍人群回归社会的目的。
项目信息
项目名称:盐城静和医院
设计内容:品牌形象设计/室内改造
设计面积:18000平米
设计时间:2019年5月
设计团队:上海霍思医疗设计









