
这套147㎡的房子位于四川成都,屋主是一位阳光大男孩,性格特别热情礼貌,平时喜欢约上几个朋友一起来家里玩音乐。屋主希望自己的家简洁舒适,储物功能强大,同时能增加一些形式感,这些也是设计师需要考虑的重点。
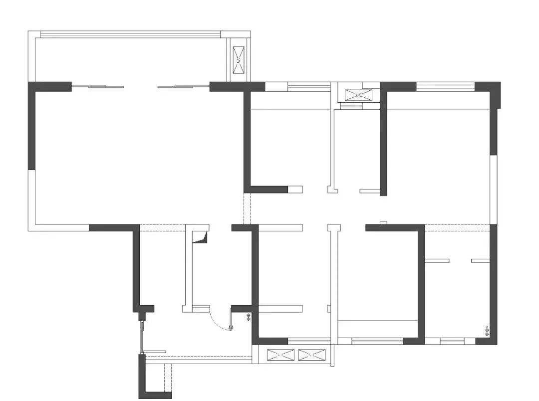
原始结构图
存在缺陷:
1、厨房面积小,进门正对生活阳台,视觉不舒适;
2、主卧衣帽间小,收纳不足 ,屋主衣服比较多,需要增大衣帽间;
3、门厅和客餐厅之间的过道狭长,面积浪费。
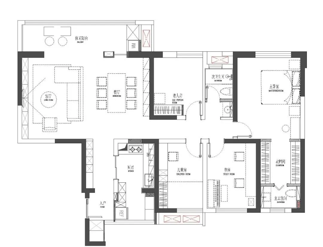
平面布局图
设计策略:
1、生活阳台纳入厨房,增大操作区面积;
2、拆除衣帽间和主卫的隔墙,重新分配面积,满足衣物的收纳;
3、入户、客餐厅、卧室和阳台都规划了足够的储物空间,保证所有物件归纳齐整,还有富余;
4、没有固定风格,以屋主的喜好和生活习惯为主,整体色系沉稳耐看,局部增加跳色点缀,不乏活力。
玄关通往客厅的过道增加鞋柜,屋主喜欢坐着换鞋,鞋柜下面部分采用镂空的形式,放当季常穿的鞋,不用开柜门就能拿到,很方便。
换鞋凳和镂空鞋架结合
客厅有大量的书籍、零食和其他杂物的收纳需求,电视背景墙设计了整面储物柜,保持空间整洁干净。
柜子局部做开放格形式处理,既可以展示书籍、装饰品,也不会让整个空间显得压抑。
电视柜有藏有露
客厅采用无主灯设计,散点式筒灯+射灯,灵活自由,可满足不同场景下的照明需求。
几何茶几
沙发、茶几和小边几均选择低矮的款式,视觉重心下沉,让空间更显开阔通透。
从过道看向电视背景墙
拆除阳台和客餐厅的推拉门,增加边桌和吧台椅,为屋主打造一个可以随心玩音乐的空间。
白色纱帘过滤刺眼阳光
客餐厅在同一开放式空间,阳台未来会安排洗衣机,所以在靠近餐厅一侧加了长虹玻璃隔断,透光不透影,避免产生杂乱的视觉观感。
餐厅选择1.8米的大餐桌,除了平时家里人吃饭,也可以容纳更多人聚餐。
餐边柜+搁板,收纳常用的器皿
餐桌一角
厨房靠近入户区,调整门洞方向,保证立面完整统一。改造后,将生活阳台纳入厨房,增加操作台面积,空间不会局促,还能增加过道的采光,一举多得。
书桌选择宜家的经典搭配,满足两个人的办公需求。墙面做分色处理,下部选择黑色,低调耐脏,上面刷屋主喜欢的脏粉色,增加整个空间的层次感。
百叶帘
右边的角落放了一个懒人沙发,结束了一天的工作,可以躺着看看书,弹弹吉他,放松纾压。
主卧的背景墙面刷了深蓝色乳胶漆,营造宁静深邃的休憩氛围,有利于改善睡眠质量。
双人床选择牛皮层靠背,搭配IKEA的黑色铁艺床头柜和悬垂吊灯,慵懒复古。
悬垂吊灯,不占用床头柜空间
牛皮层靠背
改造后,压缩主卫的面积,扩大衣帽间,布置两排顶天立地衣柜,满足屋主所有衣物的收纳需求,全开放式设计,一目了然,方便穿搭整理。
原木+小白砖
主卫仅保留马桶和干区洗手台,淋浴功能放到次卫。考虑到主卫的防水要求不高,采用面包砖铺贴至半墙,上面留白,兼顾颜值和性价比。
软装清单
























