专案名称:冠筑·青珹府
用地面积:66666.67㎡
总建筑面积:214195.43 ㎡
容积率:2.60
绿地率:35.7%
开发商:共青城联益置业有限公司
设计单位:东咫·中外建华诚丨东亚景观丨M&W装饰
施工单位:东咫·东亚景观丨M&W装饰
专案地址:江西省九江市共青城市
设计建成时间:2019年12月
【区位】专案地处江西省九江市共青城市共安大道上九仙岭森林公园旁
【设计理念】
本案例座落于共安大道上九仙岭森林公园,依群山环绕而建,尽享大自然的慷慨馈赠。推窗远眺,便可鉴赏“九江秀色可揽结,吾将此地巢云松”这如诗般宁静安逸的画卷。

设计依循“百啭千声随意移,山花红紫树高低。”共青山水与飞鸟自然元素的艺术主线,或乘风骋志,或逐水之溯,于山水诗画之间,达至天人合一的哲美臻境。
【售楼部外环境】
崇尚自然之道的朴素自然观,道法自然山水,原天地之美,园林布局平易开朗、轻盈畅朗的特色,提取肇庆自然奇观、山水肌理的片段语言,于水墨山石间再现山水画卷,引用对景,借景等造园手法, 结合现代的工艺,营造现代园林气质的意境。入口水景以此为题眼,表达中国传统文人园林的雅致与书香气息,当有少许风吹起丝丝微波,倒影于水面荡漾,似墨香飘逸,若时空交错。
园内的景观道路系统独具匠心,以散落的石头作为点缀,云卷千风的微缩长轴山水画卷赫然眼前,临近清溪流碧潭、寻探佳趣,领略自然山水。






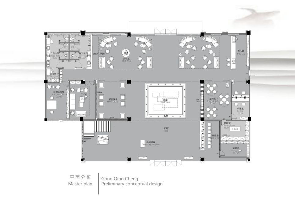
【售楼部内环境】从销售的动线出发,一进门首先映入眼帘的是我们入户挑空区域,左边是通向样板间的景观楼梯,我们的销售人员由临时接待区第一时间接洽到客户,之后由销控台人员将客户引领至沙盘区,由销售人员一一为客户讲解本项目的规划,沙盘的左边是户型模型区域,右边是区位图所在位置,整个讲解路线一气呵成,往后便是洽谈区,洽谈区紧靠沙盘,方便销售人员及时将客户签约洽谈,水吧区正对整个的洽谈区,在区位图后方设立了一个签约区,可针对性的接洽一些有意向签约的客户,签约区与收银区仅一墙之隔,VIP室、经理室和卫生间这些配备的功能区就布置在相对偏一些的地方。
一层空间是销售区域,挑空前厅接待,宽敞而大气,竖向格栅处理勾勒出朦胧感,格栅的背后便是我们的山水泼墨画,“两岸青山相对出,孤帆一片日边来”的卷轴青丹元素将整个共青城的自然韵味囊括在室内的这幅泼墨山水之间。





