
成都龙湖·世纪峰景
豪宅圈有一个广为人知的传说,一个龙湖,造了中国半壁豪宅。
作为“豪宅专家”,龙湖·香樟林、龙湖舜山府、龙湖·颐和原著等一系列顶级豪宅的问世,一度成为城市地标,多年来都很难被超越。
有人问,进入云南多年的龙湖,什么时候才会带来首个城市豪宅作品?
而今,我们等来了锦粼天序——云南龙湖首个城市豪宅产品。
高端改善唯一片区在双塔 双塔顶级豪宅在锦粼天序
购买力在升级、居住水平在提高,当大家都在做城市豪宅的时候,总有一家开发商,能够以它的到来,重塑片区、甚至整个城市的豪宅标准。
比如龙湖。
2020年,昆明楼市最大的爆款,说是“双塔片区”,一定不为过。双塔区域作为昆明中央商务区 中央生活区的城市综合活力发展区,北接繁华中心城区,南接巫家坝未来新兴CBD,双核驱动占位昆明中心。同时双塔作为不可复制的珍稀地段,不仅是因为它占位昆明中心,更有3公里黄金生活圈、政府聚焦、多维交通、5大商圈、全龄化第一梯队教育、丰富的医疗资源等高端配套赋能加持。
而放眼昆明,可以占据如此优越资源的地段无出其右,既满足配套需求,又占据绝对中心,同时享有发展红利,可以说双塔是满足昆明高端改善的唯一片区。
而龙湖携手新希望的双塔项目“天序”系产品——“锦粼天序”的亮相,给这个城市中心炙手可热的片区,更是锦上添花,补上了最大的一块“短板”。
城市豪宅最大的“短板”是什么?是顶级精装。
所有能够称之为“城市豪宅”的产品,在资源的占有上都有独树一帜的优势,而细究产品内部,有没有足以匹配“城市豪宅”称号的顶级精装,或许才是最重要的。
“天序”系产品顶级配置 重新定义城市豪宅居住理念
如同始于颜值、终于才华一般,多数在乎“内里”的高净值人群,对城市豪宅的精装产品,都有自己的标准。而锦粼天序则是为昆明的豪宅带来了满分精装。从审美、功能到品质,锦粼天序都以考究用材和细节打造,将自己和主流市场区分开,实现了昆明楼市上最全能、最顶奢的高端精装。
龙湖用156户昆明高净值家庭调查问卷,182页生活日志记录,选出了适合昆明的顶级精装风格。全球顶尖的设计团队、海派东方掌门人黄全,将以此为准,定制属于昆明真正的海派奢装。
就像我们追过的热播电视剧《欢乐颂》、《我的前半生》中频频感叹的豪宅,这位娱乐圈网红设计大师黄全,将用对标一线塔尖豪宅的理念,为昆明设计一座国际审美的顶级奢装豪宅。
卫浴界的“劳斯莱斯”杜拉维特,卫浴界IF工业大奖最高排名的德国高仪,都是全球顶豪追捧的顶级品牌。
别再说昆明不需要空调,冬日寒风凛冽的那一、两个月,日立的中央空调,百朗的新风系统,全年恒温的配置,让业主在家舒适的度过每分每秒。
常规标配洗碗机已经不稀奇了,全系标配的蒸烤一体机才值得一说。中餐、西餐一应俱全,再没有比一家人围坐餐厅,嬉笑打闹、品尝美食更有烟火气了。
电视背景墙仍旧是如今体现主人艺术品位最好的展示地,于是,锦粼天序采用了一体化定制、超大尺寸的鱼肚白纹理陶瓷薄板,当然,这也是目前豪宅主流使用的产品。
还有,木饰面的餐厅背景墙、主卧三重光源的叠级造型吊顶,光是在背景墙这一项上,锦粼天序都以近乎严苛的标准做到了极致。
除此以外,施耐德电气、瑞士弗兰卡水槽、全系智能马桶、全屋墙纸,这一套顶级精装配置,在昆明市场上,几乎达到了最高标准。
这些还不够?
面盆前的触摸增光设置、吊柜下方嵌入式感应灯带、抽拉式菜盆龙头55项人性化细节设计都不再赘述。
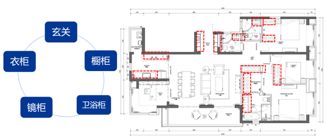
那锦粼天序户均超过50㎡的收纳空间,成为拨动不少人心弦的设计。
我们说,收纳空间的预留一定要满足5年以上的使用需求。
如此,锦粼天序便规划了一整套收纳体系,从玄关、镜柜、橱柜、卫浴柜到主卧衣柜,五大收纳体系流线分明、空间分明,完全能够满足一个3口之家五年,或是更长时间的收纳需求。
不止产品与精装 建筑与景观同样出彩
从建筑到景观,锦粼天序也带来了顶级配置。
龙湖说,要用现代最高标准的建筑,对标世界顶级城市标杆作品。于是,双塔片区有了首个钻感天幕国际豪宅。
锦粼天序效果图
龙湖说,要把建筑放进园林,于是,在昆明核心城区难得的城市大盘中,有了中国的“琉璃光院”;11亩超大围合布局设计,实现了能在中庭放风筝的梦想。
锦粼天序效果图
作为“景观大师”的龙湖,每一次设计呈现必不会令人失望,价值20万的木樨树,冬青、木樨、露薇、秋雾四大主题花园,樱花巷道、银杏树阵、踏水入户…..只是听着,就仿佛实现了纯粹居住的梦想。
锦粼天序效果图
或许,城市精英们需要的是一个觥筹交错后放下焦虑的居所,去选一处最能触达内心的产品,居于城市封面中心,去享受脚踩川流不息给予的成就与荣耀。








