人们对居住房屋的需求也越来越高。它们不再局限于一般的高层住宅。他们大多选择复式、跃层。那这两款别墅的户型和具体设计有什么不一样呢?

跃层
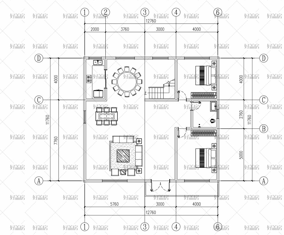
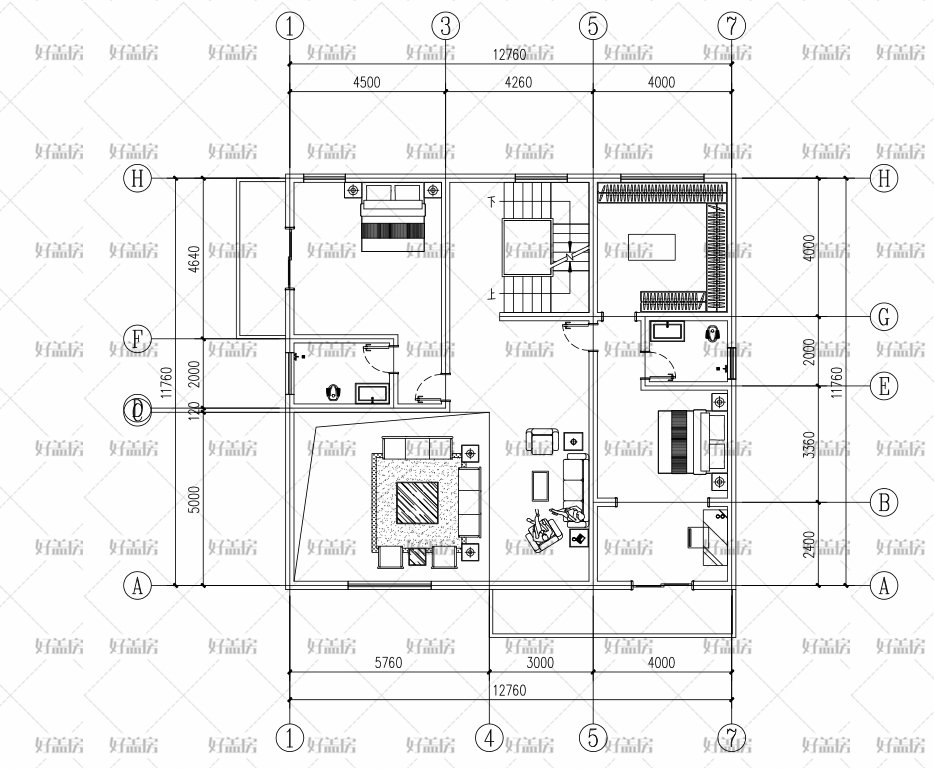
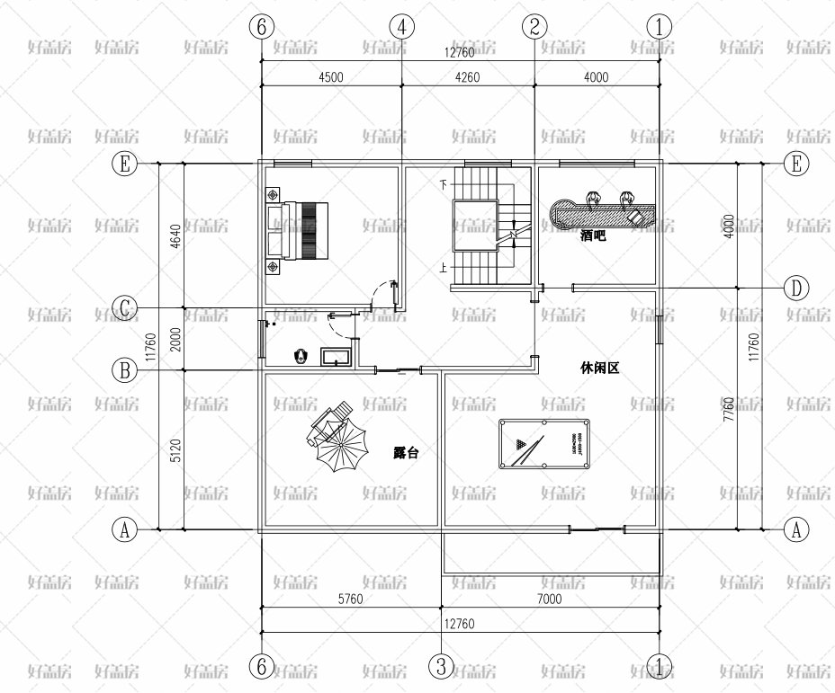
所谓跃层是指住宅所占据的两层。卧室、客厅、客厅、卫生间、厨房等辅助用房可分层布置。上下楼层之间的交通不是由公共楼梯连接,而是由使用者自己的小楼梯连接。复式住宅有两层,内部有楼梯连接上下两层;客厅、厨房、餐厅和卫生间一般布置在一楼。最好有一间卧室,卧室、书房和卫生间都安排在二楼。
从多层到高层再到别墅,从传统的平房到后来的复式再到跃层,人们对居住的需求不再仅仅是“一个睡觉的地方”,而是开始追求更高品质的高端生活。越层公寓之所以逐渐流行,是因为其宽敞舒适的特点符合老百姓的生活品味。
跃层住宅的优点
每户都有较大的采光面积;通风良好,室内生活区和辅助区面积大,布局紧凑,功能明确;相互干扰很小。在高层建筑中,每两层只设置电梯平台,这样可以减少电梯公共平台的面积,提高空间使用效率。
跃层的缺点是室内楼梯需要占用一定的使用面积。同时,由于二楼只有一个出口,一旦发生火灾,人员疏散和消防人员快速进入都不容易。
复式的房子
复式住宅概念上是一层,但层高比普通住宅高(一般为2.7米)。可以将夹层部分拆除,布置卧室或书房,利用楼梯上下。其目的是在有限的空间内增加使用面积,提高房屋的空间利用率。这种做法是为了适应土地和空间极度匮乏的情况。
复式住宅的优点
就复式的经济性而言,首先,复式室内的隔断一般为木结构。如果隔断,那么家具和装饰就可以整合,这不仅是墙面,还可以降低地板、床、柜的综合成本;
二是平面利用率高,通过夹层复合可使住宅建筑使用面积增加一半以上;
最后,上层夹层采用拉窗和墙体多面窗,通风采光好,与同等层高和面积的一般住宅相比,土地利用率可提高40%。因此,复式住房具有省力、省地、节材的优点。
复式住宅的缺点
与其他普通的高层住宅相比,复式的层高过低,厨房只有2米高。如果长期使用,很容易产生痉挛、窒息的不适感。储物间虽大,但层高仅1.2米,难以充分利用;
由于复式住宅的面宽大、深度小,如果采用室内平面组合,有些户型的自然采光较差;由于室内隔断地板采用轻质木隔断,木材成本较高,所以隔音防火功能较差,房间的私密性和安全性也相对较差。
跃层和复式有什么区别
事实上,复式住宅并没有一个完整的两层空间,底层夹层的投影面积只占底层面积的一部分。夹层可以做成房间,也可以做成赛马馆(夹层的吊面不做墙或墙背,平面外缘有栏杆或栏杆)。上面的人可以看到下面,下面的人也可以看到上面,形成一个不完整的空间,俗称“空”),夹层与一层之间有视觉交流和空间流通。
跃层楼的上下两层完全由楼层隔开,只有楼梯相连,所以跃层楼和复式楼的空间是两种不同的类型。简而言之,就是:如果上下两层完全分开,则应称为跃层住宅;如果上下两层在同一空间内,即从下层可以看到上层的场景、栏杆或走廊,则为复式住宅。








