在这套270多平的大平层户型中,整体空间采取现代风格的设计,在实用的收纳空间设计基础,保留宽敞的空间格局,为主人一家带来了一种从容舒适的居住与生活体验。
客厅

▲客厅空间整体灰色调的地面基础,天花简洁的吊顶加入无主灯设计,带来一个现代优雅的大气空间感。
▲电视墙以灰色定制电视柜的设计,壁挂安装电视机,旁边布置落地灯与一张休闲沙发椅,在简洁现代的空间下,带来一种优雅舒适的居住体验。
▲灰色的皮沙发,角落摆上一盆琴叶榕,在优雅舒适的空间下,带来一种清新文艺的端庄气质。
餐厅
▲红木色的大圆餐桌,餐桌台面还带有转盘,为用餐氛围提供了一种别样情趣的体验。
▲餐厅侧边的收纳柜里还加入了开放格架,也是提供了一种别样有趣的用餐与收纳体验。
▲餐厅后方的中岛操作台,台面下方是深灰木色的柜体,为主人提供了一个别样情趣的西厨操作区域。
厨房
▲厨房有面采光较好的窗户,厨房灰色抛光砖的地面,搭配白色带浮雕的橱柜吊柜,深灰色的操作台台面,简洁的空间以优雅的柜体造型,带来一种高级优雅的烹饪体验。
过道
▲过道在客厅与餐厨区之间,走廊尽头的墙面挂上一幅独特的几何抽象线条装饰画,也提升了空间的层次与现代设计气质。
主卧
▲主人房以素色的墙面空间,灰青色的皮艺床头靠背上,搭配灰色床单,窗外出一张橙色休闲椅与小边几组合,也营造出一个惬意而优雅的休息区域。
▲角落的床头柜上布置杂志与花瓶,插上花枝也让空间显得清新舒适而精致。
主卫
▲双人位的洗手盆,灰色的墙面空间,结合灰色洗手盆柜,两个洗手盆之间的台面下加入开放格架,也带来了一个灵活的卫浴收纳。
▲浴缸、淋浴房与马桶,功能一应俱全,为主人带来一个现代舒适的卫浴生活。
次卧
▲脏灰色的墙布墙布,结合色彩丰富的衣柜门与拉手设计,布置暗粉色的床铺,床头柜上粉色花瓶布置,后方一盏金属壁灯,也让卧室空间显得情趣优雅而温馨。
儿童房
▲儿童房在粉色的床头墙基础,布置一张白色的床铺,床头两侧分别加入床头柜与书桌组合,也带来了一个梦幻优雅而实用舒适的儿童房空间。
▲床头也是加入了粉色的搭配,让空间显得更加浪漫可爱。
▲书桌上放一个小闹钟,杜绝睡懒觉哟~。
父母房
▲灰咖色的墙面空间与窗帘,在床头柜摆一张暖色调的台灯,让父母房满屋都是朴素的温馨感。
▲实木床的稳定与厚重,搭配蓝色床单的安静与惬意,使得空间环境更加适合睡眠。
卫生间
▲卫生间以哑光灰色地面+雅白墙面砖的组合,装上一个绿色的浴室柜,上方镜柜加入黑色收纳格,也提供了灵活方便的卫浴收纳与空间设计。
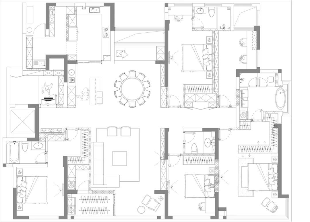
平面布置图






















