在这套70平米的小户型中,整个房子的面积较为紧凑,在二房格局下,通过开放式的厨房、餐厅与书房设计,也是实现了一个“麻雀虽小五脏俱全”的小户型利用,为主人的生活提供了舒适惬意的体验。
客厅

▲现代风的客厅,在电视墙与沙发墙都加入了灰色的护墙板,整个空间显得简洁而自然,没有主灯的天花装上筒灯+射灯组合,窗户上方装着壁挂空间,整个空间也显得简洁而实用大方。
▲沙发墙在灰色的定制墙板,墙体上还带有小圆孔洞,把房间门隐藏在墙板上,实现一个简洁美观的沙发墙效果,搭配上灰色的布艺沙发,一张圆形的长绒毛地毯,也让空间显得简约舒适而惬意。
▲灰色沙发墙上,装一盏黑色灯杆的壁灯,也使得空间更加文艺小资,搭配素色的抱枕,也让空间显得更加淡雅大气。
▲电视墙旁边是大门,整个电视墙的面积不大,在灰色墙板的基础,装上一个悬空的电视柜,加入黑色的电视柜台面,壁挂上电视机,也为空间带来一种现代简雅的高级感。
餐厅
▲客厅的墙板延伸到餐厅区域的墙面,餐厅天花上装一个木饰面材质,让房梁遮挡起来,装上一排的吊灯,又起到了很好的装饰效果。
▲餐厅天花的木饰面延伸到侧边的墙面,让空间感显得更加和谐连贯,木质餐桌椅组合+一张中岛台的设计,而让用餐氛围更加简约情趣。
▲简洁的空间,加入暗藏的灯带光源,整体素净黑白灰的空间,为主人的生活营造出一种从简的高级居住体验。
▲侧边侧边的墙面以木质感的洞洞板装饰,为空间带来了一个实用有趣的收纳设计。
办公区
▲办公区设在餐厅中岛台后方的小过道上,与厨房操作台做成对应的格局。双人位的工作台,布置一张长长的大书桌,上方定制黑色的书架,也为主人工作加班提供了一个舒适的位置。
厨房
▲厨房在书桌的另一端,一字型的操作台,整体白色的墙面、橱柜与台面,加入嵌入柜体的电器,也为主人提供了一个简约优雅而实用的做饭烹饪空间。
卫生间
▲卫生间整体深灰色的空间,搭配上灰色哑光墙面砖,简约现代的卫浴设计,小空间也显得实用优雅而现代大气。
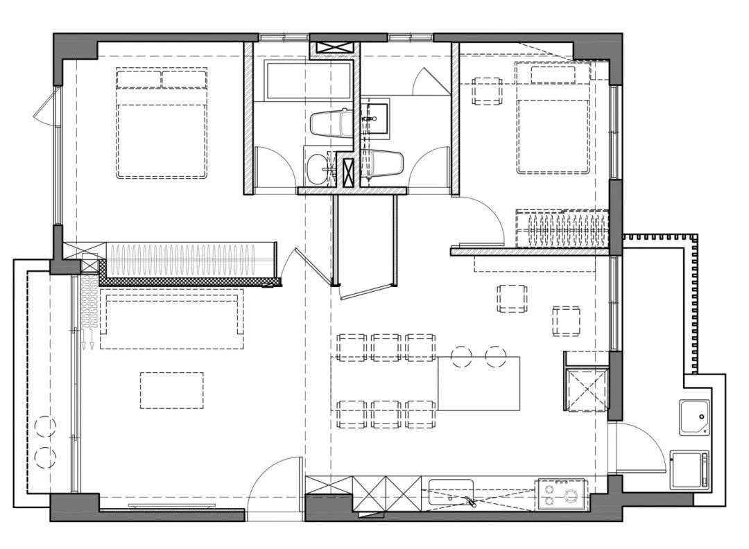
平面布置图













