在这套900平米的大豪宅中,整体空间以现代欧式的硬装,大面积的蓝绿色墙面,布置稳重端庄的家具软装,打造出一种奢华精致的居住空间。
客厅

▲整个客厅现代欧式范的设计,设计元素较为稳重高级,电视墙加入雅白的壁炉造型,天花加入井字格的造型,显得华丽优雅而高级。
▲电视墙在雅白大理石质感的壁炉造型基础,上方放置一幅暗色系的装饰画,两侧淡绿色的墙面加入边框造型与壁灯,右侧布置一张红色休闲沙发椅、左侧一盆落地盆栽,营造出一种清新而时尚的高级客厅氛围。
▲沙发墙也是淡绿色的护墙板为墙面,中间布置矮柜+上方红色的的装饰画,两侧加入壁灯,显得安静中有着热情与活力感。灰色布艺沙发,茶几上粉色的摆饰、沙发上粉色、灰色与黑色的抱枕,沙发边上红色的边几,整个空间的配色时尚而又不失高档质感。
▲灰色沙发、板凳与餐椅,布置在灰色地面砖之上,在稳重优雅的空间配色下,带来一种华丽诗意的居住空间。
▲深木色的茶几,布置摆饰品与小盆栽,窗外院子的植物与光线映入,让整个空间都充满自然舒适的清新气息。
餐厅
▲挑空的餐厅布置一张圆餐桌椅组合,上方一盏挂满飞鱼装饰的水晶大吊灯,让空间充满精致的高级感。
▲大大的圆餐桌,以白色石材的餐台,搭配灰色的餐椅,在明亮舒适的自然采光之下,呈现出一种轻松舒适而精致的用餐空间。
▲餐桌上精致的餐具与花瓶布置,在整体高级端庄的空间下,也让用餐空间更加端庄有仪式感。
厨房
▲厨房加入吧台隔断,结合金属质感的吧椅,呈现出一种华贵的精致气质。开放式的厨房操作台设计,也让做饭空间显得从容优雅而舒适。
楼梯
▲楼梯侧边的墙面加入蓝绿色的护墙板,整体楼梯雅白的大理石质感,楼梯扶手加入金属框线,带来一种高级精致的档次与层次感。
卧室
▲卧室床头墙以淡蓝色的墙面,中间区域的墙上还带着杏叶图案,布置素雅的床头柜、床头灯与床单,整个卧室都充满了安静华丽而禅意与高级感。
▲卧室深色木地板的基础铺着墨色的地毯,浅灰色床头柜上布置金属架的床头灯,让空间充满精致华丽的舒适感。
衣帽间
▲独立的衣帽间设置了开放的衣柜、梳妆台,中间位置摆一张雀蓝色的布艺凳,简雅端庄的衣柜里整齐布置衣物,带来一个实用优雅的衣帽间。
休闲厅
▲休闲厅布置休闲沙发与沙发椅,布置一张木质简洁的茶几,布置电视柜,为主人提供了一个休闲舒适的小厅。
书房
▲书房布置实木书桌与斗柜,为主人提供了一个稳重端庄工作阅读空间。
卧室②
▲卧室②也是以统一的蓝绿色护墙板背景墙,布置卡其色的皮艺床,米白色的床铺加入蓝色枕头与床尾凳,床头一侧床头柜+台灯的布置,营造出一种安静优雅的空间感。
儿童房
▲儿童房整体蓝红配色的超级英雄主题设计,让空间充满童趣与梦幻气息。
女孩房
▲女孩房的墙面以绿色边框造型+格纹墙布组合,布置上卡其色的皮艺床、粉色调的床单、床头柜与小玩偶,也让空间显得更加优雅舒适而浪漫。
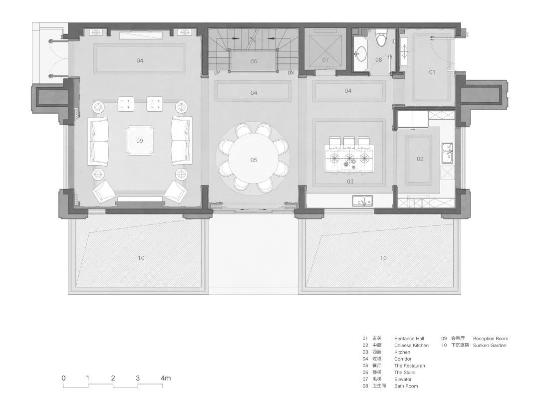
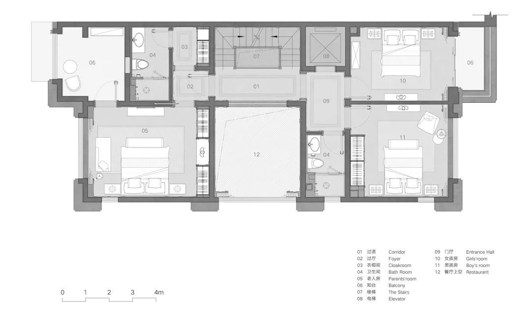
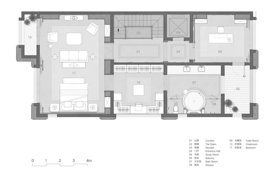
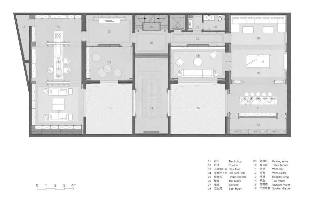
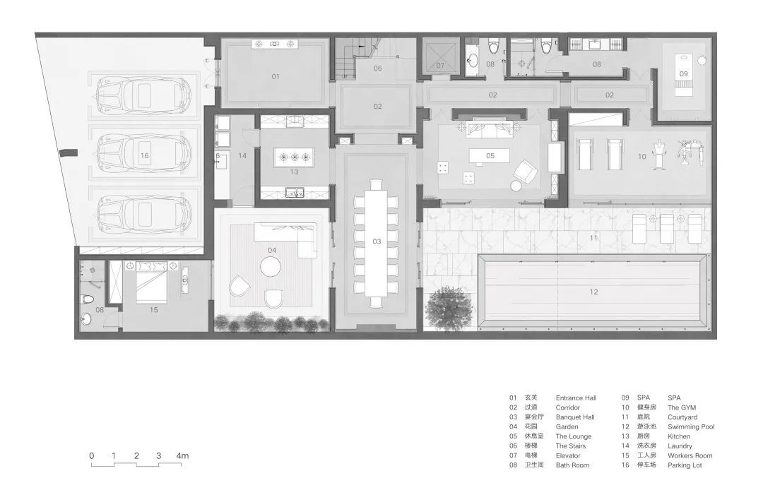
平面布置图




























