在这套400平米的大宅中,整体空间以现代简约风格的基调,在空间内加入大范围的灰色元素,同时加入红色与橙色这样鲜艳的家具点缀,使得简约高级的空间里,透露出一种时尚优雅的气质。
客厅

▲整个客厅的装修以现代简约风格为主,在硬装与家具方面都加入了灰色调的设计,让空间充满舒适简约的高级气息。电视墙黑色的凹凸木饰面板材质,加入空格展示架的设计,也让客厅空间散发出一种端庄的高级感。
▲灰色地面砖与地毯,布置黑色茶几设计,搭配上灰色的布艺沙发,后方墙面挂上时尚造型的装饰画,也增添了客厅空间的时尚与高端氛围。
▲高级灰的空间下,布置上时尚的红色休闲椅,也使得空间更加时尚有趣。
▲电视墙右边是楼梯空间,布置一张金属架的皮艺休闲椅,在舒适自然的光源烘托下,让角落位置显得简洁大方、质感高档。
▲沙发后挂一幅大尺寸的黑白装饰画,旁边摆一辆单车的装饰,与休闲区红色的懒人沙发椅相呼应,增添了空间的小资与时尚气息。
休闲区
▲休闲区布置红色布艺懒人沙发椅,加入布艺凳子、小地毯与茶几,天花以木质感的吊顶,两侧灰色的墙面空间,在自然舒适的采光下,为主人提供了一个简约舒适的休闲区域。
餐厅
▲餐厅从左侧客厅、楼梯引入了深灰色的设计,而在天花与右侧墙面,则是加入了木质感的设计,中间布置餐桌椅+中岛台设计,让用餐空间更加情趣舒适。
▲餐厅旁边的飘窗以木质感设计,在高级灰的空间下,显得简约自然。
▲中岛台以灰色岩板的台面材质,加入水槽方便洗水果、工具与西餐料理,后方装了一个深灰色的西厨操作台,也使得生活充满自然舒适与朴素的体验。
厨房
▲厨房门外两侧深灰色的墙体,厨房内部以灰色地面砖+墙面砖的设计,加入白色橱柜与灰色操作台,也为主人带来了一个现代简雅的烹饪环境。
楼梯
▲楼梯侧边灰色墙面,深木色的楼梯踏步,在楼梯踏步里加入金属线条的设计,也提升了空间的高级与精致感。
卧室
▲卧室床头墙整体以火柴黑的护墙板为背景,左侧拐角到书桌区域还加入了书架设计,床尾布置灰蓝色地毯、粉色懒人布艺椅,宽松的卧室为主人营造出一种端庄优雅的安静与舒适。
▲火柴黑的床头墙,布置深灰色的皮艺床,布置白色床单、枕头,加入素黄的布艺点缀,带来一个干净优雅的卧室。
▲床头墙侧边布置小床头柜与粉色懒人沙发椅,加入粉色兔子图案的装饰画,还有细节处的粉色小摆饰,在黑色的端庄空间下,营造出一种稳重的浪漫与舒适。
衣帽间
▲主卧配套的衣帽间,加入玻璃柜门,柜体内部暗藏灯带,也带来了一个方便实用衣物储藏空间。
卫生间
▲主人卫生间在灰色的空间基调,也为主人提供了一个干净舒适的卫浴体验。
客卧
▲次卫角落位置布置一张橙色休闲椅,后方整体蓝色墙面基础挂一幅人身花头的装饰画,旁边挨着玻璃门的衣柜,让空间显得更加有时尚优雅的气息。
▲蓝色床头墙的基础,布置一张金属架的床铺,摆上朴素洁白的床单,也让次卧空间充满舒适从容而自然的精致感。
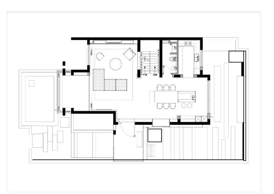
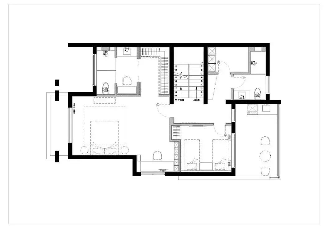
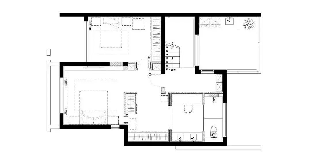
平面布置图
▲地下室平面图
▲一层平面图
▲二层平面图
▲三层平面图



























