春作夏长,秋收冬藏虽然季节凛冽但亲密拥抱四季的日子,总是充满温度是鲜活的、温馨的

在本案家宅设计中,多引用大面积落地窗和玻璃隔断,加入一株高大的绿植,瞬间让空间仿佛有了生命的力量。线性光带游走于空间,烘托光影微妙共存的氛围,利用光带加强区分场域分界,使刚柔并济,调和了独家气氛。调动视觉感官,在沉稳大气的现代基调下给予个性与时尚的气息。
擅长搜集美好,落实想象的设计师,以设计续写生活故事。将穿透明亮当做主体设计,深沉木色,豪放石材纹理,通透玻璃调节轻重冷暖感受,映出辽远意象。
客 厅LIVING ROOM
客厅以大理石瓷砖铺陈素雅,参杂的流动纹路,展现质朴视觉,电视墙以自然的木格栅元素呈现,一线光自沟缝中散透而出,藏入表层凹凸肌理,连接着电视墙的左侧巧妙地制造出一个收纳空间,未虚耗任何空间。将壁挂电视与背景合而为一,外观利落有致,增添空间线条及生活功能。天花板保持素净,让视觉无负担,一路延伸到厨房,拉高的空间让视野变得舒服。
餐 厅DINNING ROOM
餐厅有如一方忘却世俗烦嚣的澄净之地,沐着暖阳、望着蓊郁,细品慢嚼这份美味时光,无论二人世界、儿女归来亦或至亲好友共聚,均能自顾自地沉浸于无忧之中。餐桌上所流动的情感,如同空间色调的温暖与真诚。用线条简练的家具来装扮空间,既迎合了内敛、沉稳的设计风格,也让家居空间显得更加简洁干练,具有现代时尚的气息。
厨 房KITCHEN
餐厨设计以纤细笔法分配藏放比例,开收之间,整齐了水平轴线,妥帖了实质机能,协调了日常节奏,一切的设计均恰到好处。选用浅白厨具凸显沉稳底色,恰如聚光灯手法,锁定了目光焦点。
儿 童 房KID‘S BEDROOM
女孩房使用清新,淡雅的粉色作为主基调,给孩子无限的想象空间,梦都会变得纯净美好。床头背景墙上的飞鸟在灯光映衬下,似幻似真。可爱的家具设计,柔软的云朵灯,充满了小女孩甜美的气息。方寸天地间,豆蔻少女内敛又华丽的美好跃然眼前。
为了使还在成长的孩子,有足够的活动空间自在玩耍,除了基本的收纳柜之外,没有摆放过多的家具。以镂空壁龛作为隔墙,明确划分出睡眠与活动区。在房间里加入计算架,玩具,沙发的装饰元素,满足孩子探索、自在活动、尽情玩耍的欲望。
主 卧MASTER ROOM
有温度且舒适的生活环境,使我们一直以来坚持的目标,所以延用象征温暖生命力的木格栅,使空间无需矫揉造作,呈现纯粹本质,给人一种与生俱来的归属感。与此同时,以玻璃,丝绒等材质调配,无主灯设计中和冷暖色温,围塑暖心休眠的情境。
依靠隔断设立梳妆台,理顺动线走向,温润木地板为底,衬上灰色墙面,调佐轻柔惬意。妆台前方规划小抽屉,让女主人的化妆小物有了摆放空间,玻璃结合铁件筑起衣柜,展示般陈列包包物品,虚实隐现之间,消弭分量感,淡化衣饰繁复色感。
书 房STUDY ROOM
书房的设计则充分贴现了男主人的风格,一派阔绰气度乍然展现,沿着壁柜切分出诸多格柜藏放物品,从中划开一道开放陈列架,经由深沉墨黑与灯光相接,灯带如深邃夜空的星轨脉络散落立面,映照在如梦似幻的木质纹理,沁出高贵却宁静的气息,提增高雅情境,将美好深藏细节,简约奢雅,成为一处登堂雅室。
茶 室
TEAROOM
茶室让有着品茗雅趣的男主人,可以隐远尘嚣的城中幽静,少了无谓的喧嚣杂讯,只有抿茶香与笑谈的自在气息,清冽茶香伴着温煦日光萦绕其中。
深色桌体在宣纸色的衬托下,让空间犹如一幅水墨画卷,给人以宁静致远的感觉,既可以在此处冥想思考,也可以烹煮一壶清茶,与友人畅谈理想与人生。
休 闲 区LEAISURE AREA
空间以米白与原木色组合,赋予休闲室以素雅、豁达的空间属性。同时用黑色进行点缀,让空间更显层次感和灵动感。赋以轻柔的窗帘,使得空间给人以舒适的感觉。
独栋的别墅很适合一家人在一起享受,空间相对宽敞,房子的公共空间也会因为集中在同一个楼层而完整,一些绿意装点室外,将一幕幕的生活感画面实现于空间设计上,由内而外形成一个整体的感受。
关于项目平面图
负一层平面局部图
负一层平面局部图
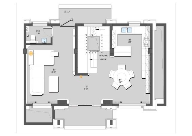
一层平面局部图
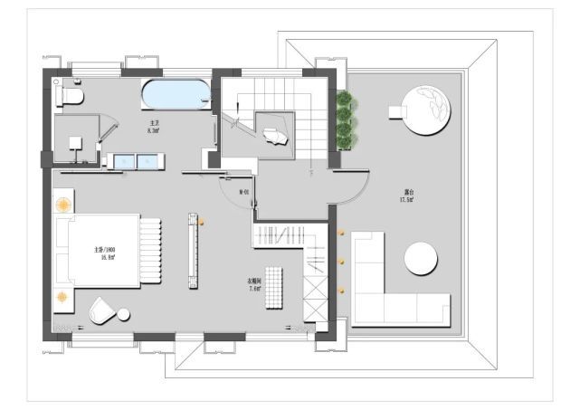
二层平面局部图
三层平面局部图
























