户型解析
今天我们要走进的家,是一位非常可爱温柔的女士的新家,房子为精装房,由名雕佰恩邦整装服务团队负责房子全屋软装的设计及落地。

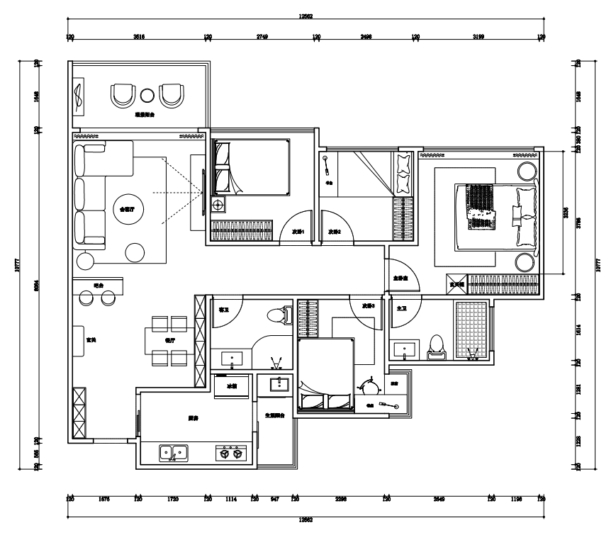
▲龙光玖龙台原始户型图
▲龙光玖龙台平面设计图
前后对比
设计说明:本案是精装房,在原有基础上添加软装定制柜以及护墙板,去修饰户型的不足及缺点,整体色调以温暖的暖色调为主,再添加一些精致的装饰
玄关
项目设计亮点:
1.沙发旁边定制一个吧台,既能规避风水当隔断又能偶尔小资浪漫品红酒。
2.主卧床头边上有个小窗户,采用软装的修饰手法让这个有缺点的背景墙更加别致。
客厅
袁小姐新家的这个户型入户就见到客厅,在风水学上比较忌讳,因此在名雕佰恩邦设计师在设计的时候就综合考虑到了这一点,在入户这个地方做了一个小型的吧台设计,美观实用,既规避了风水学上的避讳,又为这个新家增添了一丝小资情调。
软装颜色我们选用了时下非常流行的爱马仕橙搭配高级灰,沙发为玉色的半环抱型真皮沙发,符合人体工程学设计的线条为拥有者停供高舒适度的坐仰体验。
餐厅
新家餐厅是袁小姐很喜欢的一个地方,尤其是做的这个餐边柜,与餐厅整个空间很好地融合,摆上自己喜欢的小摆件、绿植,怎么搭都好看。回访时,袁小姐特别满意地说:“很温馨,一进家看到这里,就很有家的感觉,特别温馨。”
时尚简约的大理石餐桌,耐用易清洗,污渍一抹即净,减轻业主家务负担。
主卧
主卧设计师选用的是高贵的孔雀蓝色,粉刷靠床背景墙,点缀以几何图片的装饰画,与原为缺点的小窗户相互映衬,很好地修饰了墙面,摆上摆件让小窗户成为锦上添花的存在。全包软靠大床舒适指数up!
卧室窗帘运用银灰色与深海蓝的撞色拼接,高贵典雅。梳妆台这样贴心的设计,保护女主人的每一次举手投足。
次卧
这个房间的配色以暖色调为主,突出质感与舒适度。
儿童房
给儿童房多点色彩,有助于孩子的身心健康成长,还益于宝宝智力开发。儿童房的定制柜全部做圆角处理,防磕碰。
书房
书房是男业主比较喜欢的一个地方,简洁大方,利用软装打造出静谧的工作/阅读氛围。
旁边布置单人沙发及桌几,悠闲的午后,拉开窗帘,泡一杯咖啡,抑或是一杯清茶,将窗外的美景尽收眼底。













