
华润置地大连瑞府社区中心
CR Land Dalian Ruifu Community Center
中国,大连
Dalian, China
美之所以不是一般的形式,而是所谓“有意义的形式”,正在于它是积淀了社会内容的自然形式。
——李泽厚《美的历程》
项目背景
_
星海同湾,繁华一桥间。
项目坐落于大连市甘井子区高新区,毗邻星海湾,倚山为城,拥有得天独厚的自然资源。
设计初衷
_
在优质的景观资源条件下,建筑与自然如何共生,传统的空间与秩序如何在现代语境下融入到当代建筑中,成为本案欲探讨解决的主要课题。
形式由来
_
本案采用经典的轴线布局,大门,社区中心及下沉会所,形成层层递进式的两进院空间布局。大门与社区中心通过廊架围合,传统的空间秩序为观者创造仪式感与归属感。斜面元素一以贯之,以多种形式在不同空间中呈现与重构,成为本案独特的精神符号。
◎入口院落
◎概念生成
下沉庭院将山景地势延伸至建筑空间中,建筑与自然,人与景,观者与被观者,共存于亦动亦静的空间中。
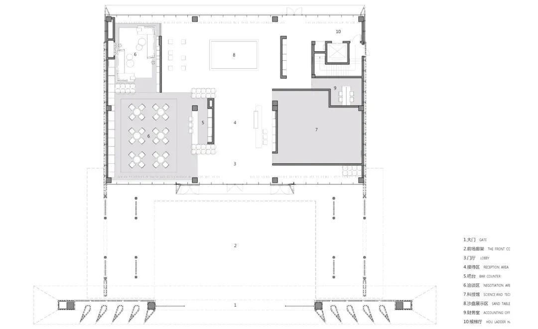
平面布局
_
社区中心地上部分为中轴布局,轴线上是开敞空间,功能空间分布在两侧。步入门厅,视线焦点落在展示空间上,东侧为半开敞科技馆,为展示空间起过渡作用,谱写了空间由开放到围合再到开放的节奏。西侧为休息区,南北通透,室外景色尽收眼底。
通过北侧电梯到达地下,平面分为三部分,正对电梯的开敞型咖啡吧、东侧私宴聚会区和西侧文娱区。在咖啡吧,观者视线直通下沉庭院,如白居易诗中所言“偶得幽闲境,遂忘尘俗心。”私宴区为私密空间,另设可出入于下沉庭院的门,以突破室内外空间限定,人与自然和谐互动,聚会氛围更加惬意自由。西侧娱乐区面向下沉庭院,在私人专享的休闲空间中增加了自然化的场景,以景观之“静”衬托空间之“动”,建筑与自然融汇交互。
◎轴测图
三个功能区围绕下沉庭院形成围合空间,为居民创造私享化的生活空间与自由化的自然空间,营造归属感。纵观本案,住宅围合社区中心的下沉景观空间,居民们在星海湾旁享受私“屿”的宁静。
功能流线
_
大门,是整个轴线的起始。斜面石材造型支撑起金属挑檐,延展界面的同时给予一定的导向性,赋予大门气势与韵律。层叠的玻璃砖,掩映于开敞入口的两侧,半虚半实,以光影模糊城市的喧嚣。
步入大门,两侧连廊向外延展,纤细的竖向立柱划分空间,金属格栅渗透外部风景,建筑和自然的界限于此淡化,两侧超薄的挑檐在横向延展的空间里为建筑营造向上的动势。
迈步向前,大门形成的框景中,社区中心的主立面如画卷般徐徐展开。纯粹通透的玻璃盒托起二层的铝板体量,营造出悬浮的空间感。
斜面框自传统佛龛造型演化而来,取其形制,去其繁杂,斜向大面铝板密拼,内嵌磨砂亚克力板,引申现代东方韵味。极致简约的斜面拼接模块沿整面浅香槟铝板重复排列,呈现随光影变化的韵律效果。5m高的无缝铝板,上部型材压边,对体量形成了自然的竖向划分,工整雅致又不失细节品质。
移步换景,步出社区中心,即置身于下沉景观庭院。层叠的景观延续山体形势,景观平台为观者提供驻足空间。《说文解字》曰:“休,息止也,从人依木”。草木树石,人们漫步其中,恬静自由,休憩安然。
建筑表达
_
大门竖向造型斜向布置,哑光面白玫瑰石材沉稳厚重,端部采用整石工艺,与石材主体密拼,大面厚重,端部轻巧。斜面石材呈现向上趋势,上部承接香槟金蜂窝铝板挑檐,界面延展,平衡静穆又不失灵动。内侧玻璃砖内置拉通钢筋结构,玲珑剔透。方案的细节刻画体现着对精工品质的极致追求。
廊架与建筑主体一体设计,顺势而下的斜屋面雅致工整,结合超薄型材檐口做法,实践了东方建筑元素在现代语境中的再演绎。
入口一层采用超白玻材料,强化内外的流动感。超白玻璃由玻璃肋支撑,外嵌香槟金金属线条,材料与工艺的精雕细琢。
造型框的香槟金蜂窝铝板大面拼接,无胶缝的处理,让立面更加简约工整。内置的铝格栅,与超白玻璃交相辉映。
庭院下沉,隐于山水,台阶层层叠砌,错落有致;空间含而不露,意韵悠长。透过玻璃,庭院景观尽收眼底,人与自然,流动和谐。
材料细部
_
大门立柱为大面干挂石材,单块石材尺寸约610x1100mm,主体石材开缝处理,分缝为错缝手法,5mm缝宽,保证了沿街视角上细节的可视性。
◎大门立柱节点
大门顶部蜂窝铝板竖向分缝与石材立柱、玻璃砖对应拉齐。斜面两段尺寸约540mm和1290mm,以保证斜面分缝与石材立柱分缝相交,规整有序。
◎大门分缝及顶部挑檐节点
玻璃砖墙外侧为铝合金型材压边,中间通过竖向金属立挺将整面划分为2:1,比例更加优美精致。玻璃砖采用240x50x50mm模数,为保证其稳定性,每块玻璃砖内置两根加强钢筋,安装时从下部穿过,悬挂式安装。
◎玻璃砖墙节点
铝板造型框为密拼做法无胶缝,每个造型框独立安装,内侧土建做防水层,保证外立面的简约纯粹。四块整面蜂窝铝板拼接而成的造型框,比例约为1:4,修长有力。造型框内嵌亚克力板,每两个造型框之间保留70x70mm凹槽,丰富立面细节,增加其韵律感。
◎造型框节点
社区中心两侧连廊挑檐为型材,保证端部位置线脚的挺拔。立柱顶部作收分,主体平面一分为四,中间预置凹槽,内嵌亚克力板,通过比例划分使立柱更显纤细。金属立柱既起到结构支撑作用,亦是连廊空间的重要划分。立柱中间设置金属格栅,每根格栅尽量纤薄,尺寸仅为15x150mm,格栅上下增设横向加强铝方通,在保证结构稳定的同时,也为通长格栅作一定的比例切割。
◎廊架立柱节点
◎局部细节
◎立面材质
结 语
_
“中国艺术意境的创成,既须得屈原的缠绵悱恻,又须得庄子的超旷空灵......超旷空灵,才能如镜中花、水中月,羚羊挂角,无迹可寻,所谓‘超以象外’。”
建筑,自然,人,三者之间的关系,一直是建筑学与社会学探索的课题,亦有许多哲学上的思考和再译。历时近一年,本案于山水海天之间,人文为骨,自然为魂,院落为引,通过石材铝板玻璃等元素的碰撞,用建筑语汇书写当代语境下人们的生活状态与未来向往。希望这个带有东方意蕴的现代社区中心,在日后实践中,给使用者与观者一些新的体验和启迪。
技术图纸
_
◎一层平面图
◎+8.500m标高平面图
◎屋顶层平面图
◎地下会所平面图
◎大门南立面图
◎社区中心及前场廊架南立面图
◎社区中心北立面图
◎东立面图






































