在这套85平米的极简风格装修案例中,整体空间的墙面加入了大范围的水泥灰质感,但是通过合理的整体空间设计搭配,并以开放式的格局户型,为我们营造出了一个独特的高级感。
玄关

▲玄关灰色地面与墙面的空间,地面上加入树枝图案的装饰,也让玄关显得更加灵活有趣,让人一进门就感受到了一种极简朴素的氛围感。
▲玄关与客厅之间相互贯通的空间,落地窗外的景色进门右转就能看到,简洁的电视墙装上一些列的隔板架,也让空间显得更加极简优雅。
客厅
▲空调电视墙是水泥灰色的背景墙基础,装上白色的饰面板,比加入悬空电视柜、展示架的设计,中间壁挂电视机,在大落地窗的明亮采光条件下,也让空间显得简雅高级。
▲电视墙左侧加入猫爬架,与搁板连贯一体,在水泥灰的背景下,带来一个功能灵活多样的电视墙设计。
▲沙发墙是一堵木饰面装饰的矮墙,摆上一张灰色布艺沙发、加入黑色与木质的小茶几,天花以明装筒灯+外露线管的设计,也带来了一种粗犷高级的设计效果。
▲在这个有趣的猫爬架里上下活动,猫咪其乐融融,为主人养宠物猫提供了极大的乐趣感。
餐厅+厨房
▲餐厨区与客厅打通成开放式的,餐桌挨着厨房中岛台布置,中间还立着一根柱子,保留原始建筑结构的基础,让空间设计与建筑结构融为一体,让空间显得简洁大方而高级。
▲厨房区域的墙面以深色与禾香板的墙面材质,结合黑色餐椅与餐桌脚架,也让空间显得简约稳重而优雅。
▲厨房操作台定制白色橱柜,墙面是以小格砖的设计,上方这是深灰色的墙面与油烟机、吊柜一体,冰箱嵌入到操作台的左侧,也让厨房空间显得实用而端庄优雅。
卧室
▲卧室与客厅中间就隔着一堵矮墙+玻璃墙,一边是洁白与木质感的客厅,一边是高级灰的卧室空间,整个空间开放打通的设计,让小面积的空间也显得明亮通透而宽敞大方。
▲卧室侧边墙面加入洞洞板收纳架,空调壁挂在凹陷位置的墙里,整体高级灰的墙面基础,搭配灰白配的床单,也让卧室空间显得更加极简大方而优雅。
卫生间
▲卫生间在卧室床尾后,灰色墙与卫生间门有着极佳的隐形门效果,结合木地板的空间,也让这个空间显得更加简约高级而自然。
▲卫生间以灰色六边花砖的地面,加入一个水泥砖砌的洗手盆,墙面也是水泥灰质感的设计,靠墙位置布置一个浴缸,原始朴素的空间设计,也带来了一个自然优雅卫浴体验。
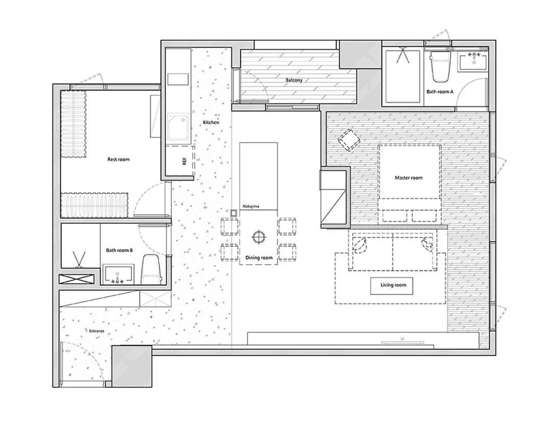
平面布置图





















