在这套125平米的房子中,整体空间采取现代简雅的空间氛围,采取时尚简洁的设计元素,让房子看起来简单低调、却又透露出一种时尚优雅的档次氛围感。
客厅

▲客厅整体现代风的空间,地面是高级灰的材质,电视墙加入雅白色的岩板背景墙,布置灰色电视柜,靠窗边布置一盆琴叶榕,窗外的自然风光引入室内,也让空间显得更加清新明亮而自然。
▲灰色电视柜与水泥花盆,与雅白的电视墙搭配出一种现代时尚的高级质感。
▲沙发墙是蓝色的护墙板,边框造型让空间显得层次更加丰富,布置灰白色的布艺沙发,地面铺上浅灰色的地毯,加入岩板双拼茶几,也显得更加时尚高级。
▲无主灯的天花,结合现代简雅的沙发布置,带来了一种简约轻松的现代舒适感。
餐厅
▲餐厅的灰色岩板餐桌,搭配灰色皮艺餐椅,旁边定制上质感的餐边柜,整个餐厅空间简洁实用而大方。
▲灰色地面在明亮的采光下,也是别有一番风味的感觉,左侧灰色定制餐边柜,右侧是银灰色入墙式的冰箱摆放,而餐厅背景墙则是雅白的岩板背景+开放格设计,使得用餐空间时尚优雅而精致。
▲金属脚架+岩板台面的餐桌,餐桌上布置别致的花瓶与玻璃器皿,与餐桌的金属脚架相互衬托,也使得空间更加高级时尚。
厨房
▲厨房以哑光灰色的墙面地面砖,定制上白色的橱柜吊柜,并做厨房门口旁边加入的嵌入式的电器柜,在L字形的操作台空间下,带来一个现代时尚而实用的烹饪空间。
卧室
▲卧室床头墙是蓝色的护墙板,护墙板上的线条延伸到天花板上,布置卡其色的皮艺床、灰色的床单,也让卧室显得舒适而又时尚,左侧布置一张梳妆台,也为主人提供了方便实用的梳妆打扮空间。
▲布置黑色床头柜,上方一盏金属杆的球形吊灯,也增添了卧室的时尚端庄感。
儿童房
▲儿童房采取定制式的书桌与衣柜,在靠窗位置设置书桌让空间显得更加明亮宽敞,铁艺床上布置灰色的床单,也让空间显得更加实用紧凑。
卫生间
▲卫生间设置浴缸与淋浴房,闲暇之时可以泡浴、赶时间则是淋浴,满足主人多样化的卫浴功能。
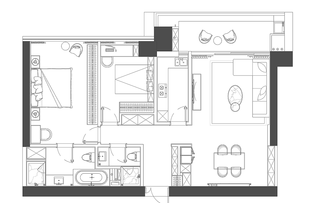
平面布置图















