近日,国家文物局发布重要考古发现,位于陕西省西安市东郊白鹿原,被当地人称为的“江村大墓”,实为西汉文帝刘桓的陵墓——霸陵。这也是陕西考古人员自上世纪90年代以来,又一次在西汉帝陵的考古发掘中的重大考古收获。

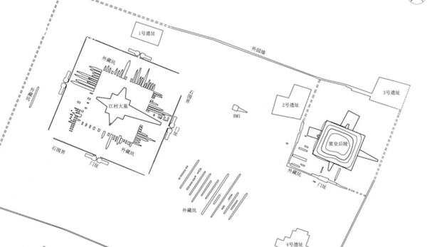
此次确定的汉文帝霸陵位于灞桥区的江村东侧,是带4条墓道的“亞”字形最高等级的竖穴土坑墓,墓室边长75米。和西汉其它帝陵分布在西安以北的咸阳塬上,且有巨大的覆斗形的地面封土不同,霸陵则修建在西安以东的白鹿原上。根据汉文帝遗诏,他为减轻百姓劳役之苦,节省人力,在修建帝陵时,不筑地面的封土。史料记载为“因其山,不起坟”。由于缺少封土做主要帝陵标志以及后人对史料的误读,自元代以来,离此两公里外的凤凰嘴被误认为是霸陵。上世纪九十年代,考古工作者的对江村附近开展详细勘探发掘,近年来,随着考古不断深入和陪葬坑的陆续发现,考古人员最终找到了汉文帝灞陵的正确位置,并确定了帝陵形制。
陕西省考古研究院汉陵考古队队长马永嬴说:“它的整个陵区结构分为三大部分,首先有陵园,陵园是核心区,有皇帝皇后的陵墓,然后还有陵邑,陵邑象征着守陵的县城,另外还有大型陪葬墓,从外藏坑的情况看,汉文帝霸陵首次出现了象征众多官署的外藏坑围绕皇帝陵墓,都是以帝陵为中心,向星式的来分布,除了有一个大陵园之外,帝后陵各自还有一个小陵园,就是双重陵园,也是在霸陵首次出现。”
正在发掘的15号外藏坑,考古人员在这里发掘出编磬,鎏金青铜编钟残片,刻有皇中字样的滤管以及只有帝王陪葬,才使用的着衣陶俑,而这些文物则表明,这里是汉文帝灞陵陪葬坑中的乐府坑。在乐府坑,考古人员发掘出上千件的随葬裸体陶俑,这是西汉帝陵陪葬中最常见,也是规格最高的陶俑。陶俑具有典型的汉代风格,高度大约在50到70公分,为真人大小的三分之一,做工精细,由于年代久远,陶俑的木质胳膊以及身上所穿戴的丝麻皮革衣服已经腐朽,虽然大多已经残破和倒伏,但在许多的陶俑面部和身体还残留有红色的彩绘。除此之外,考古人员还发掘出罕见的刑徒佣。
“我们在西南角27号坑里面,发现有带有刑具的陶俑,我们以前在汉阳陵包括茂陵发现有刑徒墓地,刑徒骨骼上带有刑具,陶俑上面带有刑具,这还是首次发现,从这一方面我们也能反证出帝陵的发展演变”陕西省考古研究院汉陵考古队副队长曹龙说
在帝王陵附近分布着超过115座的外藏坑,这些外藏坑里陪葬不同的器物,象征着地上世界的各个官僚机构,是帝王地下世界的另一种生活场景的模拟。


