高压腔涡旋压缩机与低压腔涡旋压缩机特点:
高压腔与低压腔涡旋压缩机的划分,主要是对全封闭涡旋压缩机中,电机所处在的工作环境温度进行区分。
电机处于排气侧(壳体内为排气压力),称为高压腔(一般以HITACHI为代表);
电机处于回气侧(壳体内为回气压力),称为低压腔(一般以COPELAND为代表)。
两种结构的涡旋压缩机,与其结构对应具有相应的特点,且各具优缺点。

压缩机型号:(举例)
型号举例:503DH-80C2
3高效涡旋压缩机;
匹数:50/10 = 5匹;
排气量:80cm3/rev;
C:三相电源 380V/50Hz 内置保护;
2:吸排气口焊接连接。
高效涡旋压缩机高效原理:
更高的机械效率:对零部件进行优化设计,提高零、部件的组装配合效果,减少相互间的摩擦损失。设置中间压力自动调节机构,使中间压力稳定维持在一定的范围,并在压缩机吸、排气压力发生变化时迅速进行伺服响应,保证轴向气体力能够得到可靠有效的平衡,同时保证动、定涡旋盘间的摩擦损失降到最低。
更高的容积效率
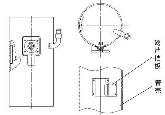
通过对压缩机的生产制造装配工艺进行优化,提升零件的制造加工精度,提高零部件的装配精度,优化各运动副的配合,从而达到降低压缩机的泄漏损失,提升压缩机容积效率的目的。同时为了降低冷媒的含油率,防止吸入过多的油雾,提高系统的换热效果,在压缩机的高压侧设置翅片档板分油装置,并对压缩机的内部油路进行优化设计,提高压缩机的排气由分离效果,减少冷冻机油随排气排出压缩机,进而减少进入压缩腔内的油量。
高效电机:对电机绕组、磁路进行优化设计,提升电机的效率;同时对压缩机的冷媒流路进行重新设计,使电机能得到最佳的冷却,从而工作温度降低,进一步提升电机效率。
中间压力自动调节机构:
翅片档板分油装置:
曲轴箱加热器:当系统热泵设计时,需要加曲轴箱加热器,曲轴箱加热器的功率40W,初次开机前,曲轴箱加热器应通电12~24小时,防止油被稀释和轴承应力过大。
排气管温度保护器:
排气温度要求小于120℃;
-排气管温度保护器的设定值不高于120℃,如果超过需要增加液旁通措施;
-排气管感温包的位置距压缩机排气管接口小于15cm,将感温包紧贴管壁,并保温绝热;
-排气管温度保护器动作后应为人工复位;
-如果是自动复位应对一段时间内的保护次数进行限定;
-排气管温度保护器动作后至少应有30分钟的延时。
低压保护器:
高压保护-需要:压力设定值应小于30Kg/cm2,推荐28±1 Kg/cm2;高压保护动作后应为人工复位。
低压保护:低压保护动作后应为人工复位;压力设定值应不高于0.2Kg/cm2,推荐0.15±0.05Kg/cm2。
四通换向阀动作或制热启动时,低压保护有可能误动作,可采取暂时屏蔽的方法,建议时间设置为5分钟。
内置电机保护器:
可同时感应温度和电流
单相:对运行绕组和启动绕组均起保护。有故障时,保护器切断公共端
三相:连在Y型电机中心,对三相均起保护。只要其中一相有故障,保护器同时切断三相,包括缺相情况;
希望另加过流保护器且在压缩机内置保护器之前动作,设定值为1.2~1.4Ie。
压缩机电流值定义:
LRA:堵转电流,可从规格书中查到
RLA :额定运转电流
Ip:外置电流保护器动作的电流,Ip=1.2~1.4RLA。
相序保护:
涡旋压缩机电机和机械结构部分,无限制压缩机反向运转的设计;
有反转时保护机构部的安全阀设计;
压缩机反转时,内置保护器约20分钟保护;
建议压缩机反转不能超过5分钟,需要系统设置相序保护。
抽空运行保护:
不允许作为系统抽真空用;
长时间低压运行会造成涡旋盘和轴承的损坏(压差没有建立,无法供油润滑)。
吸气气液分离器功能:
在低负荷时提供储液功能;
除霜前后提供暂时储液功能;
回油孔大小将影响回液多少;
回油孔滤网过小易堵塞回油孔,建议为30目。
吸气气液分离器使用:
热泵系统一般都需要;
回油孔的孔径一般在1.5mm左右;
低温制热试验以确定气分的大小及回油孔是否合适
压缩机参数测量:
压缩机吸气温度和压力:位于四通阀至压缩机吸气管之间的管路上;
压缩机排气温度和压力:位于四通阀至压缩机排气管之间的管路上;
压缩机底部温度:位于压缩机侧面底部;
压缩机电流。
最佳过热和过冷度:
最佳过热和过冷度:SH=0~5K;SC=6~11K;
最佳吸气压力降:P11-P1<0.03MPa;
由以下因素决定:
制冷剂充注量;毛细管长度和直径;风量(indoor & outdoor);盘管换热面积(indoor& outdoor)。
现象举例:
高过热度且过冷度低–充注量偏少
过热度低且过冷度高–充注量偏多
过热度高且过冷度高–毛细管太长
过热度低且过冷度低–毛细管太短
过热度低且过冷度低且蒸发温度低–室内盘管面积偏小或风量不够。
液击控制:
短时间的回液是安全的,例:除霜循环;
连续回液必须有限制;
吸气气液分离器,1.0~1.5mm回油孔;
加制热辅助毛细管。
并联压缩机的安装:
压缩机安装:要求尽量安装在同一水平面上;压缩机中心距,以方便装卸压缩机为宜。
管路布置尽量对称。
采用总进管、多出口气液分离器。
油分离器:可以每台压缩机配一个,也可以在排气总管上设置。
并联压缩机的使用注意事项:
系统匹配参数要求,基本性能要求与单机系统相同。(P/T)
在并联系统中,尤其应注意系统回油的可靠性检查,多联机时更应关注。
应设置温度、压力保护开关,且应单独设置过流保护开关。
内部供油并联压缩机油平衡原理:
压缩机安装:要求尽量安装在同一水平面上;压缩机中心距,以方便装卸压缩机为宜。
管路布置尽量对称。
采用总进管、多出口气液分离器。
油分离器:可以每台压缩机配一个,也可以在排气总管上设置。
系统匹配参数要求,基本性能要求与单机系统相同。(P/T)
在并联系统中,尤其应注意系统回油的可靠性检查,多联机时更应关注。
应设置温度、压力保护开关,且应单独设置过流保护开关。
验证各种工况(长配管、高落差、低温制热、最大制冷等)各压缩机的油位平衡。
内部供油机多联机系统示例:
变频多联机系统设计关注要点:
1.系统杂质的维护
杂质来源:
1)两器及管路制造中残余铜屑、氧化物等;
2)配管焊接时焊料侵入、氧化物残余等;
3)系统组装工艺过程异物(螺钉、橡胶塞等)侵入;
4)压缩机工作中异常(缺油、异物)磨损。
可能造成危害:
1)堵塞回油毛细管,导致油平衡实现困难;
2)杂质进入压缩机内,使压缩机磨损加剧、轴承烧结、电机短路等故障。
解决或预防办法:
1)加强工艺控制(如两器及管路配件制造时清洗彻底);
2)氮气保护焊接;
3)设置过滤器(吸气过滤器100目以上、回油毛细管过滤器150目以上)
2.回油毛细管的位置
验证回油及油平衡的试验项目:
对于多联机系统,验证并联压缩机回油的可靠性和并联压缩机之间的油平衡,应验证各种运行工况下的压缩机内油的可靠性。包括:标冷、标热、最大制冷、低温(-10 ℃ )制热等工况,以及上述工况下,最长冷媒配管和最大室内/室外机落差时,回油和油平衡的可靠性。
无论在何种情况时,压缩机内油位不能低于400ml(用带油面镜压缩机进行确认)。
喷液冷却温度采样位置:
当系统设计需要进行喷液冷却控制时,温度传感器应设置在压缩机顶部,并做好保温措施,能及时感知压缩机的排气温度值。
分液的均匀设计(包括模块内和模块间):
判断回气管路分流的均匀性,可通过并联压缩机间的排气温度差值来确认,要求:各并联压缩机(包括模块内和模块间压缩机)排气温度相差应小于5度。
油平衡和气平衡控制(油回收、均油):
当定速压缩机连续运行时间超过120min,进行均油运行,时间3min;见下表:
制冷模式:
1.油回收控制为固定程序,系统制冷模式连续运行60min启动一次,回收控制动作时间为运转3min。
2.进行油回收控制时,运行的室内机的PMV开度、内风机转速保持原有值不变;不开的室内机和处于送风模式的内机PMV开度为xxxP,不开的室内机室内风扇以微风运转,处于送风模式的内机风速不变,室外机以满负荷运行。
3.回油结束后,不开的内机处于送风模式的内机电子膨胀阀复位,计数器清零。
制热模式:
4.油回收控制为固定程序,系统制热模式连续运行240min启动一次,有除霜运转则需重新计时,回收控制动作时间为3min;
5.进行油回收控制时,制热运行的室内机的PMV开度、内风机转速保持原有值不变;不开的室内机和处于模式冲突的内机PMV开度为xxxP,室内风扇以微风运转;室外机能力输出:86Hz(变频压缩机)+ON(定速压缩机)
6.回油结束后,不开的内机和处于模式冲突的内机电子膨胀阀复位,计数器清零。
低频运行时能力补偿或旁通:
根据室内的需求,常常要对能力输出表进行修正,特别在变频压缩机在低频段工作时(如30Hz),为避免定速压缩机开停频繁,可适当提升变频压缩机的运行频率,来维持室内能力需求。
当室内需求最小时,外机能力过剩时,为避免压缩机频繁开停控制,可适当采取旁通卸载的方法。
最低运行频率、及电压、电流修正:
多联机系统设计时,往往因为兼顾更宽能力范围的要求,室外换热器容量设计并不能同时兼顾极限大和极限小的要求,一般存在,变频压缩机低频运行时,会造成系统内冷媒流程长,流速小,沿程阻力大,导致压力损失大,回油困难等,严重时会影响压缩机的可靠性,通常地可以将室外换热器分段设计、风机无级调节,当压力损失大时,采取补气技术或限制压缩机的最小工作频率,以保证压缩机工作的可靠性。
对于日立401DHV-64D2压缩机U/F曲线的符合性,考虑到目前国内变频驱动模块的现实状况,经过慎重试验验证,认为通过限制压缩机工作电流和压缩机工作温度的办法,可以弥补不足。
即无论在上述任何情况下,优先保证压缩机工作时:
1). I run< Imax
2). Td < Tdmax(120℃)
能力组合输出表:
根据实际的室内配置,制定合适的能力组合输出表。
并联压缩机启动控制:
低温启动低压开关延时保护:
低温(或超低温,如-15 ℃ )启动压缩机时,为避免低压保护开关误动作,通常在环境温度低于0 ℃时,开机前12小时以上,应通电油加热器对压缩机进行预热,部位如图。
同时,启动时,将低压保护开关屏蔽5~10min(视系统状况确定时间)。
排气过热度的控制:
并联系统中,各压缩机排气温度(一般取压缩机顶部温度)与冷凝温度的差值,称为排气过热度。其值要求如图。
本文来源于互联网。暖通南社整理编辑。















