



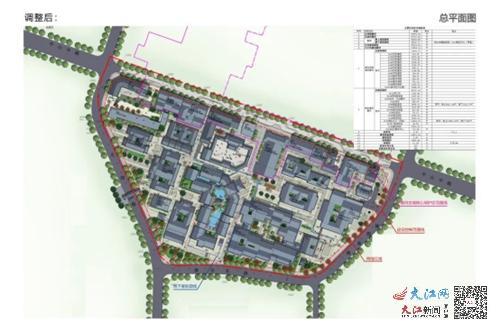
大江网/宜春头条客户端讯 记者曾志翔报道:近日,宜春市城市建设投资开发有限公司(宜春城投)发布袁州古城文化复兴项目最新概况。据了解,袁州古城文化复兴项目,是2017年12月底宜春市委、市政府立足建设赣西区域性中心城市、提升中心城区首位度和影响力的重大部署,也是落实省委、省政府部署的城市功能与品质提升行动的核心内容,是承两千年历史、破老城区困局、求差异性商业发展,实现“本地人喜欢,外地人向往”的重点民生工程。项目位于老城核心区,整体规划范围约1平方公里,由市城投公司负责投资、建设和运营。古城大大小小的子项目有20多个,主要包括:一文庙、两街区、三公园、四广场、六停车场、七条路等等。

一文庙、两街区、三公园、四广场、六停车场、七条路
一庙即文庙,在秀江北岸有一处始建于宋淳熙年间(1174-1189)的省级文物保护单位——大成殿,是宜春市现存规模最大的古代学府建筑,项目按文庙规制对其周边进行复建,以重现袁州历史、弘扬国学文化。
两街区:即王子巷历史文化街区和沙子巷历史文化展示区。街区遗存省保单位1处(王家大屋)、市保单位4处(张积厚堂、六一会馆、胡家祠、黄家祠)、历史建筑10处(紫气临、隆升行等)、中山路沿街骑楼和多栋传统风貌建筑。项目严格遵循相关法律法规和《王子巷历史文化街区保护规划》要求,对两街区以保护为主,保护与修缮相结合。
三个公园:即灵泉池公园、春台公园、李渠公园。每个公园的文化主题都不一样,比如灵泉池公园主要是以“灵泉池”的泉井文化和“古城墙”的城墙文化为重点,春台公园是以“昌黎书院、韩文公祠、考棚”的书院文化、“袁州会议纪念馆、天成药号”的红色文化和“桃李园”的农耕文化为重点,李渠公园则是围绕“李渠”这一造福宜春人民1200余年、兼具排水灌溉救灾等功能、充分证明当时宜春水利技术处于全国领先地位的杰出文化为重点。
四个广场:即箭道广场,考棚广场,高士广场,重光广场。箭道广场和考棚广场分别位于春台公园的南北两侧,高士广场位于文庙东侧,重光广场位于王子巷东地块城隍阁前。广场沿用了历史上曾经有的、占据宜春市民记忆或充满宜春方言特色的名称,复立高士坊、重光坊等,纪念袁京、陶渊明、陈重、彭构云、韩愈等先贤和状元易重等,兼具游客引流和空间开放等功能,为老城区创造更多的公共空间。
六个停车场:即王子巷片区、沙子巷片区、灵泉池公园和高士广场各一个地下停车场,春台公园南北两侧各一个地下停车场。项目充分利用城市更新中不可逆的地下空间资源,共设有机动车位2566个,以缓解中心城区停车难的压力,完善静态交通配置,满足现代人出游习惯。
七条路:五横两纵,五横指的是沿河路、中山路、春台一路,春台二路、考棚路,两纵指的是文饶路、城隍庙路,缓解老城区交通拥堵困境。

王子巷片区
王子巷—大坪巷历史文化街区位于袁河以南、东风路以东、中山中路以北、明月南路以西,占地约188亩,容积率0.93、建筑密度47%、绿地率19%,机动车位870个。以修缮和复建历史建筑为主,其中省级文保单位一处“王家宅院”,市级文保单位五处“六一会馆、张积厚堂、余家会馆、胡家祠、黄家祠”等,该片区已列为历史保护街区。项目遵循“以保护为主,保护与修缮相结合”的原则,保持原有肌理,重点展示赣西民居文化、商业会馆文化、宗祠文化、市井文化、传统饮食文化等,复建秀江浮桥、北门城墙、城楼、城隍阁等历史建筑。

沙子巷片区
沙子巷—五眼井历史文化展示区位于中山中路以南、文饶路以东、春台东路一路以北、城隍庙路以西,占地约83亩,容积率0.99,建筑密度50%,绿化率11.28%,机动车位220个。以修缮和复建历史建筑为主,其中历史建筑有“汉春祥、东方红影刷院、袁州区文化馆”等,新建百工坊,重点展示非物质文化遗产、琴棋书画、诗酒花茶等民俗文化。打造一处具有典型袁州特色的文化展示区。

春台公园
春台公园改扩建项目位于中山中路以南、东风路以东、考棚路以北、文饶路以西,宜春台是宜春的八景之一,占地由原公园52.2亩扩建至180亩,容积率0.17,建筑密度9%,绿地率46%,机动车位730个。主要建设内容:修扩建昌黎书院、袁州会议纪念馆、天成药号、韩文公祠、都官祠、考棚等,新建两个大型地下停车场。该项目主要以书院文化、科举文化和红色文化等历史文化为主题打造的城市公园。

灵泉池公园
灵泉池公园位于袁河以南、宜春大道以东、中山中路以北、重桂路以西,占地约130亩,容积率0.04,建筑密度3.9%,绿地率73.24%,机动车位221个。古人有诗云:“城侧有泉,莹媚如春,饮之宜人”,即“宜春”因“泉”而得名。项目保护“灵泉池”及古城墙遗址,复建重桂堂,拓宽沿河路及中山路等,形成以保护和展示宜春历史文化遗产为基底的滨江休闲公园,重点展示泉井文化、城墙遗址、状元文化等。

大成殿周边复建及高士广场
大成殿周边复建及高士广场位于宜春三中以南、秀江中路以北,占地约57.2亩,容积率0.05,建筑密度5.6%,绿地率37%,机动车位525个。项目现有省级文物保护单位“大成殿”,始建于宋淳熙年间(1174-1189),是江西省保存较为完整的孔庙之一。为重现袁州历史、弘扬国学文化,对大成殿周边进行复建,主要包括儒学亭、大成门楼、乡贤祠、名宦祠、文昌阁、庑廊、孔子亭、袁高士祠、崇圣祠、明伦堂、卢肇故居、魁星阁等,并在东侧规划建设高士广场,通过国学景墙、儒学长廊和活字印刷雕塑等文化景观小品展示国学文化,同时建设大型地下停车场解决项目周边停车难的问题。

古城路网
袁州古城项目配套路网工程,可概括为五横两纵,“五横”指的是袁河中路、中山中路、春台东路一路、春台东路二路、考棚路,“两纵”指的是文饶路、城隍庙路。建成通车后可缓解老城区路网整体密度不足、内外部交通交织严重等问题。
(1)袁河中路:东起明月南路、西至宜春南路,长约1595米,宽9-20米。
(2)中山中路:东段起于明月南路至东风路,长约798米,宽18-30米,骑楼段为步行;西段起于重桂路至宜春南路,长约703米,宽28米。
(3)春台东路一路:位于宜春实验小学北侧,东起城隍庙路、西至文饶路,长约191米,宽20米。
(4)春台东路二路:位于宜春实验小学南侧,东起城隍庙路、西至文饶路,长约193米,宽14米。
(5)考棚路:东起明月路、西至东风路,长约559米,宽42米。
(6)文饶路:北起袁河路、南至考棚路,长约703米,宽20米。
(7)城隍庙路:北起袁河路、南至考棚路,长约614米,宽12-20米。