今天齐家小编给大家分享一套LOFT公寓案例,虽说面积不大,一共也才只有40多平方,但不管是设计,还是实用性,都可以说是非常完美的。尤其是在色彩搭配上,一进门就感觉很高级。如果是一个人来居住的话,那么实在是太爽了。
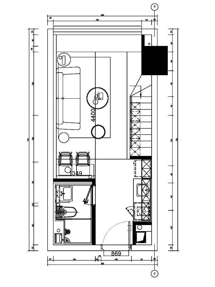
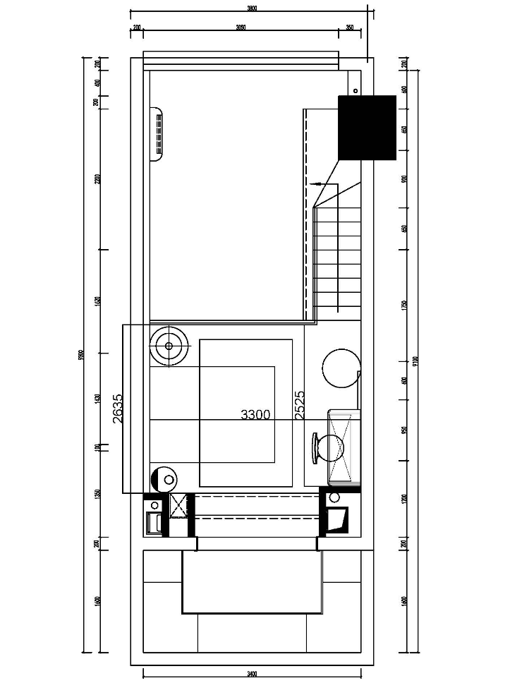
平面方案图

其实在方案布局上,这套户型和我们常见的LOFT户型布局大体上也差不多。比如进门左边是卫生间,右边是一个迷你的小厨房,最内部则是客餐厅区域。
不过在整个结构及细节上,却又有一点不同。比如在二层的设计上,只保留了一半空间作为卧室,而另一半空间则与客餐厅做成了挑空结构,从而增加整个新房的空间感。而在收纳空间的利用上,其实也并没有我们想象的那么多,毕竟在一个人居住的情况下,更多的还是以舒适性为主。
屋内实景
整个新房的风格是以现代风为主,色调搭配上,则是以高级粉为主。从客餐厅实景可以看到,无论是软装的搭配,还是硬装的处理,都透露出一种精致感。尤其是在搭配上金属色后,更显现出一种高级感。比如黄铜色的吧台椅腿、茶几边框、楼梯扶手、装饰画边框等等。
而在楼梯间的处理上,则是放弃了电视机,并选择用柜子来处理。搭配上白色的暗藏灯光后,看起来既有强烈的氛围感,也提亮了一些装饰品,看起来非常漂亮。
餐桌功能是采用吧台来代替的,这样不仅更加节省空间,实用性也比较强。在窗台处做一组矮柜,不仅增加一点收纳空间,也使整个空间多了一份休闲之处。试想一下,坐在窗台上,不管是看望远方,还是晒太阳,都是很慵懒的。
俯瞰整个客餐厅,白色的沙发,在其它软装的衬托下,看起来极其奢华。而将客厅做成挑空结构,或许在很多人看来有些浪费,但事实上,像这种LOFT户型,层高都是很有限的,如果将其分成两层,根本就达不到正常户型的层高,反而还会有一种压抑感。所以若不是有需求的话,一般都不建议分成两层来做。
来到二层卧室,在色调的处理上,同样延续了楼下的方式,看起来既高级又奢华。而收纳空间这块,则是借着最内部凹角做了一个迷你的衣帽间。空间虽然不大,但收纳一个人的衣物,也完全够用了。同时,为了表现出休闲感,还做了二层台阶。
在床头背景的处理上,除了一圈镶嵌了黄色的线条,中间位置还用白色的KT板装饰了一下,搭配白色的羽毛落地灯,以及粉色的装饰品后,看起来还是挺精致的。
而在层高这块,虽然有一点低了,但影响也并不大,毕竟楼下有足够多的活动区,所以楼上只是一块睡觉的区域,并不会长时间待在这里。因此,并没有明显的压抑感。
案例就分享到这里,这套LOFT案例,在我看来,应该是把LOFT应有的效果给完美表现了出来。如果只是一个人住的话,那么还是比较适合的。所以若有需求的话,大家也可以来参考一下。
但不管怎样,个人是不建议装修时,将LOFT户型给做满的。因为这样一来,居住起来既不舒适,也失去了LOFT应有的优势。









