
地址 | 杭州 白马湖
户型 | 别墅
面积 | 450㎡
预算 | 180万
本期分享的案例在湘湖旁边,设计师根据业主的气质与喜欢的风格,还有工作属性,定制了独属于她的房子设计方案——《湘湖上的云》。设计师希望在房子里呈现自然,禅意,同时像云一般纯净柔软。用设计的手法,连接这个房子和主人之间的羁绊。
业主是一位瑜伽老师兼演员,也是这套案例的入镜模特。经过多轮方案的沟通后,设计师也逐渐帮她明确了设计方向:
略不同于其他设计,屋主希望可以在室内满足一部分商业功能,希望可以在这边做瑜伽课程、举办沙龙活动。
屋主需求:
1、风格上,屋主希望这套别墅能打破传统意义上的“奢华感”,在确保功能的前提下,可以充分表达跟自身职业相关的“艺术性”
2、功能上,屋主希望能确保满足“商务沙龙、授课瑜伽、偶尔自住、偶尔民宿“四种功能场景,如何平衡好商业与自用的功能是这次的设计平衡的重点。
最终设计格局:
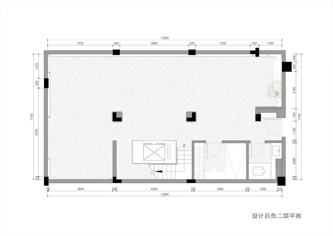
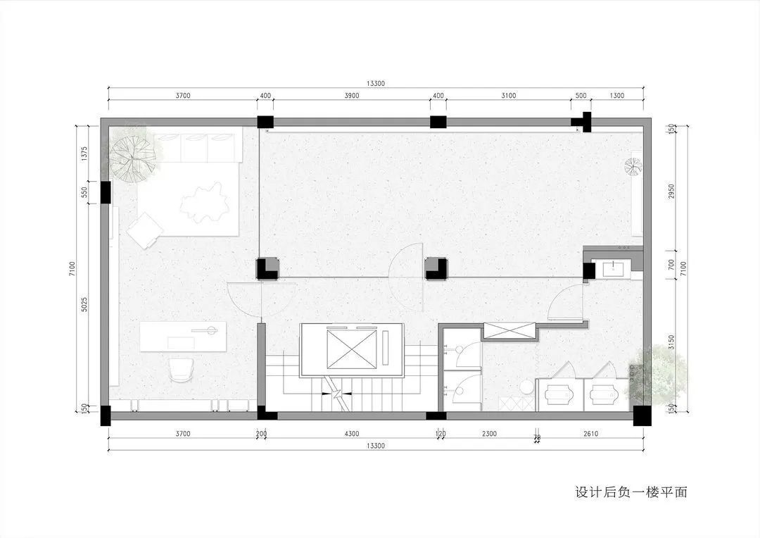
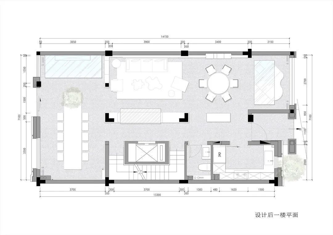
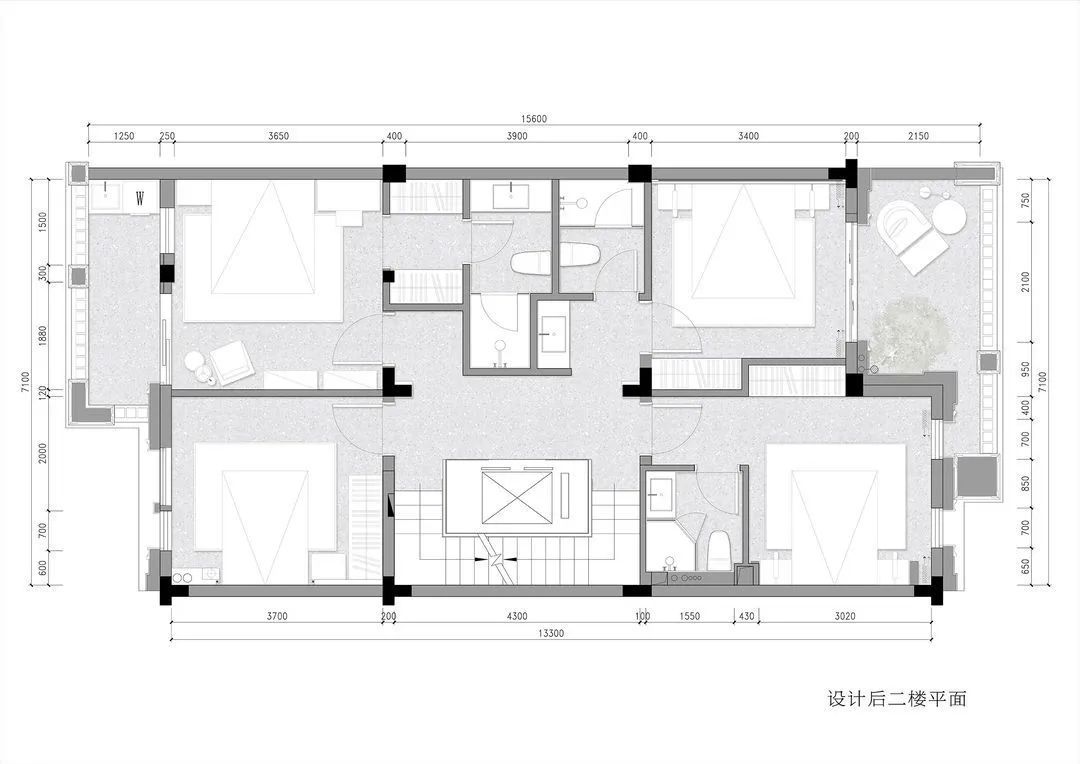
1、房子一共五层,地下一楼和二楼为瑜伽室;一楼为客餐厅+沙龙区;
2、二楼为卧室休息区域,4卧室3卫生间,保证了每个房间的最大舒适度。
3、三楼的整个区域做成了有浴室,书房,梳妆台还有卧室跟阳台的套房,三楼的主题就是舒适度假风,把在外玩乐才能时常体验的套间搬到家里,给家全新的生活体验。
4、风格定为东方极简。
# 客厅
沉稳自然的开阔空间
业主十分喜欢深一些的木色,喜爱自然。
大宅至简,设计师把沉稳、自然,揉碎在这个开阔的空间
传统家庭的客餐厅区域划分明确,每个空间都较为闭塞,这里是一个不太需要私密性的地方,我们打破了传统家庭观念,把整个一楼各区域串联,让空间流动起来。
设计师把承重柱藏在电视背景墙的的建筑体里,形成了家的中央景观。建筑体分离通透,同时这是一个水循环装置,模仿自然界中的水循环系统,让家更贴近自然。
家是生活的容器,为屋主定制的这个装置有“滴水成渊”的寓意,人生意义就藏在生活点滴之中。
● 灯:FLOS,Parentesi吊灯
在木饰面上设计了分割线,增加整个背景墙的层次感,灯具安装正好处于整个分割区的中心点,不偏不倚,除了照明以为,也承担的一份简约的装置艺术。
# 厨房
延续极简的设计
全屋是现代极简的设计方向,所以橱柜也均选择的是隐藏式拉手;全屋的净水系统也被安排在了这里。
# 餐厅
满满仪式感
这里有设计与地下的连接,一楼南北两面的窗户旁的地面,根据光线直射原理,设计了玻璃地面,让地下室原本无自然光源的地方,也能感受到一天中日夜的变迁。
屋主在家吃饭的频率很低,根据家庭一般是3人左右,所以在餐桌的选择4人小型圆餐桌,家具的选择是中古风的,让在家中就餐这个低频的事情也能仪式感满满。
# 卧室
原木风格的舒适氛围
选择自然原木风格,多为弧线造型,床品的选择也为亚麻材质,颜色也尽量选择是浅色。进入卧室就要好好休息,包容的空间可以更快的放松。
每个房间的灯具多为间接光线,通过二次反射的光很有效的防止了炫光问题,营造睡觉休息的舒适氛围。
因为二楼日常的使用频率不高,更多的也是商务、民宿的接待使命,所以我们在二楼更倾向于选择环保自然,且具备性价比的软装家具,未来即使更换起来也会比较方便,不至于很难取舍。
卧室斜顶,设计灵感是东南亚的茅草屋的围合空间,把异域风巧妙的融合在极简造型里。
顶面造型里内嵌的灯光,则是一种傍晚时分日光的造景作用。
卧室休息的区域空间有限,所以梳妆台放在了朝北的书房,缺少自然光的条件下,我们设计了从上至下的内嵌式暖光(3000K色温),尽量避免光线的直射,通过二次反射的光源尽量的仿造出接近自然的光源。
# 书房
沉稳的品质
整个三楼,软装使用的则是更加沉稳的黑胡桃木材质的家具,房主的空间,需要多一份沉稳与品质。
# 地下室
简单、自然、纯净
地面选用乳白色的水磨石,可以让瑜伽室更加简单、自然、纯净。
如果说每个房子都有自己最独特的地方,那这套房子就是地下的瑜伽室了,我们打通了地下所有空间,可以在家中获得一个视野开阔的超大空间。
为了解决负1层采光,一楼地面设计了一部分厚玻璃的地面,在地下室的南北两侧都能感受到自然光线。
在承重柱上设计了嵌入式灯光,除了增加空间感以外,也可以使承重柱不再只会一个柱子,也可以是一个装置品,在空间内毫无违和。
● 单人沙发:ligne roset,Togo沙发
● 多人沙发:ligne roset,Ploum沙发
针对采光井,设计上通过建筑排列分割,白天坐在地下仍然会看到阳光洒下。每天太阳东升西落,阳光在-1楼的倾斜角度也会有所变化,我们把时间留在了家里。在现在快节奏的生活下,可以静下来来感受一天的时间,心境也会变得平和。
选择亚克力的茶几,可以让空间多了一份纯粹。
● 椅子:Phantom Hands,Kangaroo chair
地下室的实用功能为瑜伽室,瑜伽是一种放松身心的运动,所以我们用大面积的白色降低建筑结构的重要性,让整个地下空间更有温和自然的气质。
1.层高低这个地下室普遍存在的痛点,我们的解决方案是不做吊顶,把照明安排在立柱和镜子上——让光不是直接被看到的,更多的是通过感受去体验光,瑜伽也是强调感受类的运动。
2.同时大面积的白色也会有视觉疲劳的问题,粗糙的材料刚好可以中和感官。所以浇筑原始的水泥来做吊顶,完美地解决了这两个问题。
地下室一二层因为层高问题,设计师选择直接裸露出楼板,再用桐油涂刷,不仅可以处理楼板的落灰问题,表面的肌理还可以使空间更加自然。
至于空调问题,设计师只选择在走廊处做。
# 沙龙区
极具新鲜感的视觉体验
交流区也就是沙龙区,景观台运用了对景关系,客厅的每个角落都是取景框,可以看到绿植的不同样貌,视觉体验更有新鲜感。
在这里定制了长3.7m宽1m的长桌,可以容纳8-12人。举办沙龙的时候,大家面对面聚在一起,聊天,办活动也很方便。
沙龙区桌子是亚克力桌角,放一张特写,给人悬浮的感觉,轻盈像云一般,呼应主题,湘湖上的云。
































