本案是老房改造,原来的装修已经很老旧,屋主需要重新装修,解决老房子的采光、通风问题,增多收纳,喜欢黑白灰简约风格。
设计师更多站在屋主的角度,把想要的生活方式呈现出来,通过空间改造,让室内光线、通风都得到改善,运用简而不减的设计手法,在满足屋主需要很多储物空间的同时,尽可能的保持空间简单整齐,黑白灰的简约空间里,呈现更多的理性情感。

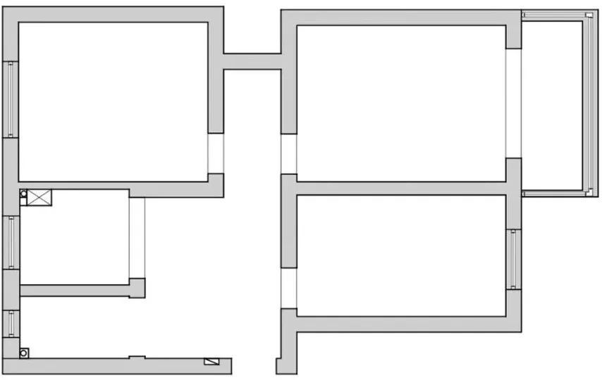
▲ 原始户型图
户型分析:
1、原始结构有着老房子常遇到的问题,没有明确的客厅,餐厅、厨房、卫生间都很小;
2、入户玄关和餐厅采光都不好,整体光线也不通透;
3、有3间卧室,正常2位年轻人居住,其实用不到3间卧室,屋主也希望能做一些个性化的改造。
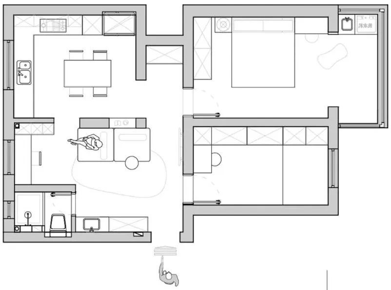
▲ 平面布局图
设计策略:
1、将北卧室改造成厨餐区,原来的厨房改成开放式书房,并与客厅相连,入户视角变开阔,相当于把原来狭小的餐厨房变成开放式客厅书房;
2、把卫生间干区外移,放在鞋柜与墙体之间,充分利用每一个空间;
3、主卧取消移门,阳台与卧室合并,增强采光扩大视野,同时也不影响洗衣与晾晒;
4、次卧床铺下做成抽屉式收纳,整面衣柜,增多家里储物空间;
5、全屋收纳丰富,让家里的物品可以有序收纳,小户型也可以简约整齐。
入户顶天立体的鞋柜,尽可能去增多小户型储物空间,家里的鞋子可以有序的摆放在柜子里,拿取也方便。
端景柜藏灯带,营造空间氛围,表达出空间对我们的友好。底部悬空,方便打扫,功能与美并存。
客厅为了美化顶部梁体,书房沿着梁体做了平吊顶,与外口落差,做了一个斜吊顶,线性灯带收口,流露层次感。
客厅电视机挂在过道墙壁上,不暂用其他空间,平时可以坐躺沙发看电视。
简约方块形沙发,亲肤舒适,让人放松。客厅与餐厅之间隔而不断,方便家人互动。
我们从客厅看向餐厅的视角,在客厅的人也可以和在厨房的人互动,猫猫在家里自由遛弯,浓浓的生活气息自然流露。
空间美感不止体现在布局造型,局部的小饰品点缀也很重要,在精不在多,简约艺术壁挂时钟,也让我们多了一份生活仪式感。
客厅可以看向餐厅,端景柜,家在简洁的线条里,既各自独立,也是串联的一个整体。
从客厅看向厨房的视角,白色墙体,深色橱柜,黑白灰静中有动,简约却不单一。
开放式厨餐厅,L型橱柜,岩板台面,细腻的收口,宽敞的操作台面,让人身处其中心情愉悦。
黑白灰厨房配色,岩板餐桌,冰箱嵌入柜体,让所有的物品都在一个合适的位置,空间得到充分的利用。
餐厅看向入户客厅,经过改造后的空间,很流畅,到哪个区域都不饶。
主卧室床头背景墙做了隐藏灯光设计,并运用材质之间的碰撞,围绕着简而不减的设计理念,丰富空间层次。
床头简约吊灯,满足局部照明需要,简约梳妆台也可以作为床头柜,还能摆放一些小摆件,增加空间艺术感。
小房间改造后,做了一整面的衣柜,床铺下面也可以收纳。小房间兼书房、客房,储物的地方比较多,小空间也可以大妙用。
干湿分离卫生间,岩板一体台盆,简洁好看,台盆下柜子可以摆放一下零散的生活用品。
干区简约吊灯打开的时候,营造出氛围感,距离门口很近,也方便到家后洗手。
远距离看向卫生间,压花玻璃门透光还可以保护隐私。
阳台是家里猫咪玩耍的居心地,之前是两只猫咪,现在又多了两只小奶猫,让这个家更热闹啦。























