
点评:旅顺新城板块低密品质住区,园林景观丰富。
【项目亮点】
1、新区板块可塑性强
旅顺新城板块为旅顺口区重点发展板块,近些年来吸引了多家品牌房企入驻,发展前景好。
2、全龄生活场域 提升舒适性
适合全年龄层休闲活动的公共区域和主题设施,包括景观草坪、休闲廊架、私密室外会客厅、活力训练场等。
3、户型分布规律 飘窗赠送
所有户型皆方正、通透,附带飘窗,增加空间可能性。
【适合人群】
95-125万元/套,三居室户型,适合刚改和改善置业人群。
【价格分析】评分:8.0分
星光宸阅项目现阶段参考均价约10800元/㎡。参考总价:95-125万元/套。该项目位于旅顺口区,从2021年上半年大连市内商品住宅市场成交来看,量价齐升,成交均价重归万元以上,成交量突破二十万方。供应方面,随着众多新项目的相继入市,区域市场升温,拉动区域热度,部分市内客户受市内房价压制外溢至旅顺。
上半年,旅顺口区区域成交均价为10070元/㎡,各项目以顺销为主,星光宸阅均价10800元/㎡的价格,符合区域房产单价。
旅顺的新城板块是几大通往主城快速路合围区域,加上12号线穿过,交通相对立体,而较新的城市界面和区域路网,四四方方很规整,道路规划指出即采用高标准规格,路面宽阔,规划合理。
12号线的郭水路站发布新的工程进展,旅顺将建4处地铁公交接驳站 提升周边土地价值,而其中一个就在郭水路这一站对于整个板块的价值和意义重大。
点评:目前旅顺口区整体价格偏低,星光宸阅作为融创在旅顺口区品质项目,有一定的性价比。
【楼盘规划】评分:8.5
星光宸阅,是融创品牌进驻大连旅顺的首个项目,项目规划总用地9万m²,总建筑面积约15万m²,综合容积率1.67,绿化率35%。车位配比为1:0.74,即一户对应0.74个车位,车位配比相对不足。当前在售95-125㎡三居室和77㎡两居室,均价约95-125万元/套。
星光宸阅项目规划有适合各个年龄层置业者,休闲娱乐的公共活动区域,其中包括景观草坪、休闲廊架、私密室外会客厅、活力训练场以及海底动员IP全龄儿童活动。
点评:15万方规划,体量适宜,景观丰富,密度较低,户型纯粹。
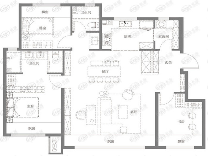
【户型分析】评分:8.5
D户型建筑面积约116㎡,3室2厅2卫户型。居室比例方正,全明格局,面积大小适宜,属舒适型户型定位。
客厅整体面宽约6米,保证充分的采光及通风的同时,视野也更加开阔。另外客厅飘窗设计,增加了储物收纳空间。
独立衣帽间、卫生间与南向卧室形成主卧套间,在满足居住者基本生活需求下,也保证生活上的私密性。
卫生间为明卫设计,有效保证采光及通风。干湿分离,避免潮气及细菌滋生。
L型厨房设计,操作动线合理流畅,预留冰箱空间,可有效规划储物功能。餐客一体设计,烹饪、上菜一气呵成,合理分配生活空间。
玄关旁设家政间,可用来存放日常衣物、鞋包等物品,增加家庭收纳储物空间。
不足方面,次卧为北向设计,日常采光略逊于南向卧室。
点评:空间开阔,布局合理,宽厅设计,采光通风好。
户型描述:
建筑面积约99㎡,3室2厅2卫,南北通透、全明空间、阳光充足,面积大小适宜,属舒适型户型定位。
餐客一体,动线流畅,视觉上空间更加开阔。厨房明窗设计,可有效排出油烟,保持室内空气清新。
独立衣帽间、卫生间与南向卧室形成主卧套间,在满足居住者基本生活需求下,也保证生活上的私密性。
卧室、客厅、书房都有飘窗设计,增加家庭收纳存储空间。
儿童房与公共卫生间有厨房相隔,夜间使用或有不便。
点评:户型方正,南向三面宽,皆附赠飘窗,增加空间功能性。
【交通出行】评分:8.0
轨道交通:
星光宸阅距离地铁12号线旅顺站约2公里,1站轻轨可达旅顺区府,4站轻轨可达高新园区。
日常通勤可通过轻轨12号线与地铁1号线相连站内换乘,途径沙河口区、高新区、甘井子区,1号线贯穿西安路、甘南、沙河口、甘北等区域,规划中的11号线与12号线相连站内换乘,4号线等将全城贯通。
公共交通:
周边1公里范围内设有:第一郡一站、文体中心、行政服务中心、第一郡二战等公交车站,途径站点的公交路线有2002路、旅顺31路、旅顺205路等公交线路,日常出行乘公交可直达市区多大商圈。
自驾:
紧邻旅顺南路,自驾出行交通便利。项目位于旅顺口区新城大街与玉玺路交汇处,距离大连北站约44公里,距离大连火车站约48公里,距离大连周水子国际机场约40公里。
点评:距离地铁站略远,但公交和自驾出行比较方便。
【周边配套】评分:8.5
教育配套:
周边一公里内,现有旅顺中学、新城实验小学等学校 ,教育资源丰富。
其中,大连旅顺中学距离项目约0.6公里。旅顺中学是整个旅大地区(现称大连市)在旅大解放后建立的第一所普通中学,历史悠久。学校占地面积32000余平方米,绿化面积3041平方米,建筑面积14423平方米,教学楼4720平方米,综合楼4272平方米,图书馆楼1830平方米,四百米国际标准塑胶跑道操场,体育馆1364平方米,多媒体、语音室、计算机教室、音乐教室、美术教室、琴房等专用教室20多个。
医疗配套:
距离大连市旅顺口区人民医院约3.7公里,据大连旅顺老年病医院约3.8公里,距大连市第七人民医院约21.7公里。
其中,旅顺口区人民医院始建于1945年12月,是一所能为本区26万人口提供医疗、预防、保健、康复等服务并能承担一定教学、科研任务的三级综合性医院,是旅顺口区的急救中心。医院现占地面积27872.96平方米,建筑面积24819.41平方米。住院部设有九个病区,配有先进的中央空调、中心供氧、中心负压及计算机网络系统。
商业配套:
距离项目约6公里是旅顺最大的新玛特购物商圈,4公里可达正在建设的万达广场,1公里内还有旅顺文体中心,游泳馆、乒乓球室、瑜伽室、台球室和各种的健身器材一应俱全。
其中,大商新玛特是大商集团开创的全新商业模式,具有浓厚的SHOPPING MALL色彩,面积一般在10万平方米以上,集流行百货、超市大卖场、餐饮娱乐为一体,业态丰富、功能齐全,为消费者提供一站式购物休闲服务。
公园配套:
周边6公里范围内,现有龙引泉森林公园、连心园、雁谷岚山公园、迎春公园等多处公园配套,适合居民假期游玩以及日常健身休闲。
其中,龙引泉公园的龙引泉,是我国第一个现代城市给水工程,有一百多年的历史,500余亩森林公园里绿树葱郁、风景秀美,古树达上万棵,其中有20多棵百年树龄参天大树,可以说是见证了整个城市的历史。公园里还有多个人工湖泊,湖水清澈、荡漾涟漪,湖岸两侧观景木栈道上,游人如织,流连徜徉。项目西北侧还有旅顺文体中心,游泳馆、乒乓球室、瑜伽室、台球室和各种的健身器材一应俱全。
点评:周边配套较为完善,半小时生活圈完整,基本能满足日常生活所需。





