紧接着上一篇,讲讲橱柜、餐边柜、电视柜和台盆柜的设计尺寸。
一、橱柜
橱柜一般分为地柜、台面和吊柜,相关尺寸如下:
1、地柜尺寸
①深度

地柜通用的深度为60cm,如果不考虑水槽和嵌入电器,可以做到350-450mm,可以增加台面的使用面积。
②高度
地柜高度一般由调整脚、柜体和台面三部分组成,高度分别为100mm、700mm和50mm,一总高在850mm左右。具体身高要根据使用者身高确定,一般地柜总高度=使用者身高/2+50mm。
③高低台面
燃气灶区一般要低于普通台面100mm,这样的高度差可以避免架着胳膊炒菜。
2、台面尺寸
台面长度需要分区,备餐区≥600mm,盛放区≥300mm,沥水区≥300mm,这些都是最小尺寸,台面越长,使用舒适度越高。
3、吊柜尺寸
吊柜距离台面高度650~750mm,高度700~800mm,深度350-400mm。
4、水槽及龙头相关尺寸
水槽长度760-900mm,深度210-220mm,宽度400mm左右。
5、烟机安装尺寸
顶吸式烟机距离台面高度650-700mm,侧吸式烟机距离台面高度300-400mm。
丨几种洗衣柜设计布局参考
五、餐边柜
餐边柜位于餐厅的侧边,一般用于餐具、酒水、零食和囤货的收纳,台面的部分也能放置饮水机和一些小型电器,柜子深度一般为400mm。
餐边柜一般分为地柜、操作台和吊柜
1、地柜尺寸
地柜的高度在900mm左右,内部一般设置一层隔板将空间高度分为两层,每层大约400mm的内空净高度,可以满足绝大多数小物品的收纳。
2、操作台尺寸
由于会放置一些小型电器和净水机等,操作台留空的高度一般为400-500mm,同时需要预留2-3组插座。
1、吊柜尺寸
吊柜高度一般在800-1000mm,内部分2-3层,可以放置一些展示收纳品。
丨几种餐边柜设计布局参考
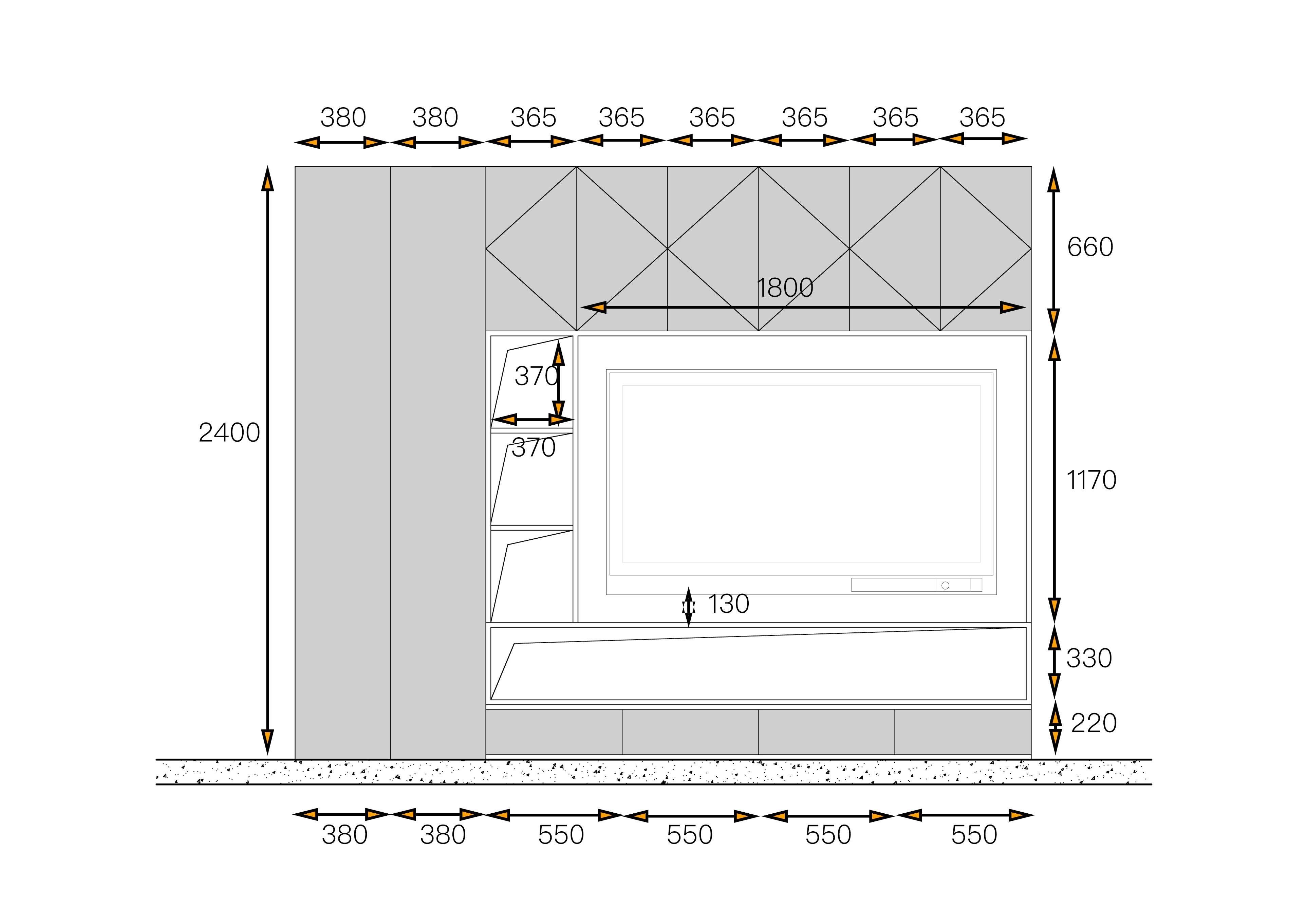
六、电视柜
如果客厅开间在4000mm以上,那么可以考虑在电视墙定制整面的柜子,柜子厚度一般在400mm左右。
1、电视及其预留尺寸
目前电视的尺寸普遍越来越大,所以在预留电视尺寸时,要在电视尺寸的基础上柜子四周预留≥50mm的空隙。
2、柜内分隔尺寸
根据所收纳的物品,选择合适的高度,一般小件物品300mm分隔即可,大中物品400-600mm灵活设置。
丨几种餐边柜设计布局参考
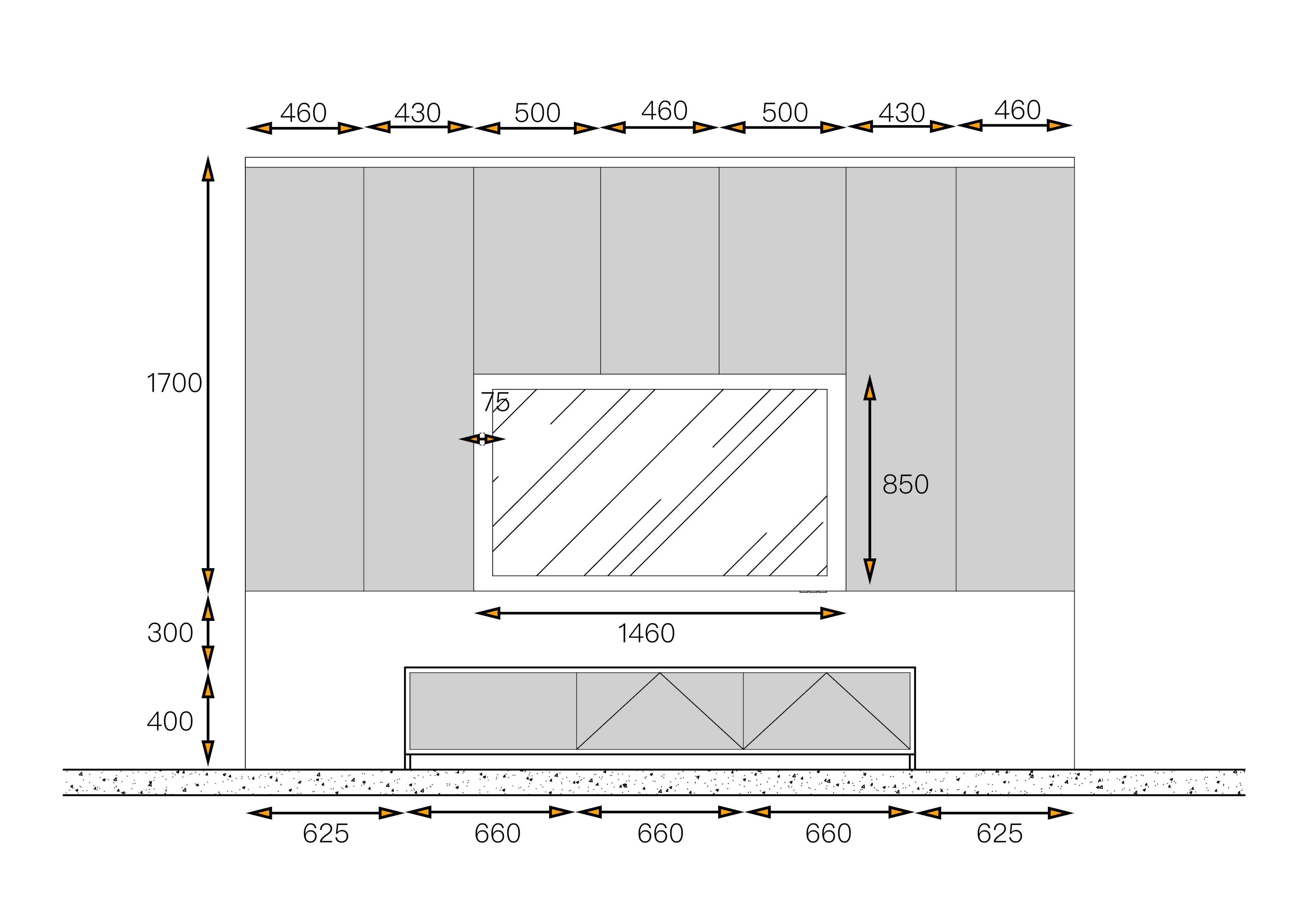
七、台盆柜
台盆柜最重要的一个尺寸就是洗脸盆的高度,合适的高度可以避免伤到腰部。
1、洗手台高度公式
如果洗脸台的高度为750mm,那么人洗脸的弯腰度数约为66°,负重为25kg;当洗脸台高度为850mm,弯腰度数为47°,负重会减少22%。
如果洗脸台的高度为750mm,那么人洗手的弯腰度数约为39°,负重为19kg;当洗脸台高度为850mm,弯腰度数为7°,负重会减少22%。
根据经验最佳洗手台高度=身高/2+5(单位cm)
2、不同身高对应的洗手盆高度























