建筑剖面图的形成:
建筑剖面图是用一个假想的垂直剖切面,将房屋剖开得到的剖面形式投影图。

假想用一个或一个以上的铅垂剖切平面剖切建筑物,得到的剖面图称为建筑剖面图,简称剖面图。
假想用一个或一个以上的铅垂剖切平面剖切建筑物,得到的剖面图称为建筑剖面图,简称剖面图。
建筑剖面图的用途:
建筑剖面图用以表示建筑内部的结构构造、垂直方向的分层情况、各层楼地面、屋顶的构造及相关尺寸、标高等。
剖切的位置常取楼梯间、门窗洞口及构造比较复杂的典型部位。
剖面图的数量,则根据房屋的复杂程度和施工的实际需要而定。
剖面图的名称必须与底层平面图上所标的剖切位置和剖视方向一致。
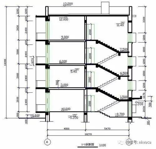
建筑剖面图的剖切位置
建筑剖面图的剖切位置来源于建筑平面图,选在较为复杂不易表达清楚的部位,画出剖切位置和朝向。
剖面图的图示内容及规定画法:
1、定位轴线
应注出被剖切到的各承重墙的定位轴线及与平面图一致的轴线编号和尺寸。
2、图线
室内外地坪线用加粗实线表示
地面以下部分,从基础墙处断开,另由结构施工图表示
剖面图的比例应与平面图、立面图的比例一致
①比例小于1:50的剖面图 ,可不画出抹灰层,但宜画出楼地面、屋面的面层线;
②比例大于1:50的剖面图,应画出抹灰层、楼地面、屋面的面层线,并宜画出材料图例;
③比例等于1:50的剖面图,宜画出楼地面、屋面的面层线,抹灰层的面层线应根据需要而定;
在剖面图中一般不画材料图例符号,被剖切平面剖切到的墙、梁、板等轮廓线用粗实线表示,没有被剖切到但可见的部分用细实线表示,被剖切断的钢筋混凝土梁、板涂黑。但宜画出楼地面、屋面的面层线。
3、尺寸注法
在剖面图中,应注出垂直方向上的分段尺寸和标高。
(1)垂直分段尺寸:一般分三道
①最外一道是总高尺寸:它表示室外地坪到楼顶部女儿墙的压顶抹灰完成后的顶面的总高度。
②中间一道是层高尺寸:主要表示各层的高度
③最里一道是门窗洞、窗间墙及勒脚等的高度尺寸
(2)标高:应标注被剖切到的外墙门窗口的标高,室外地面的标高,檐口、女儿墙顶的标高,以及各层楼地面的标高。
剖面图的识读:
1.先了解剖面图的剖切位置与编号
2.了解被剖切到的墙体、楼板和屋顶
3.了解可见的部分
4.了解剖面图上的尺寸标注
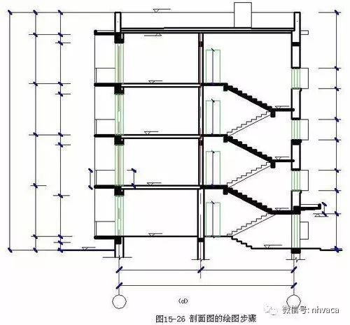
剖面图的绘图方法和步骤:
1、根据进深尺寸,画出墙身的定位轴线;根据标高尺寸定出室内外地坪线、各楼面、屋面及女儿墙的高度位置。
2、画出墙身、楼面、屋面轮廓
3、定门窗和楼梯位置,画出梯段、台阶、阳台、雨篷、烟道等
4、检查无误后,擦去多余作图线,按图线层次描深。画材料图例,注写标高、尺寸、图名、比例及文字说明。
剖面图与立面图的区别:
立面图:是从正对着方向看到的形状,房屋长、高,层数、门、窗、各种装饰线并示出外墙面材料、色彩,注出各层标高等,只绘出看得见的轮廓线。
剖面图:房屋用垂直面在恰当地方切开,留左边部分,自右向左能看见的屋内各层的情况,示出各个构件的位置、尺寸及相互关系及各层标高。只绘出看得见的轮廓用细线示出。剖面图上只标出房屋的宽和高。平、立、剖面在制图上叫H面、V面、W面。
命名方式:用朝向命名:建筑物的某个立面面向那个方向,就称为那个方向的立面图。
举一个例子来说:
你拿一个西瓜,拍一张普通照片,这就是立面图。你把西瓜切开,再拍一张普通照片,这就是剖面图。
总结来说:立面图是将建筑物立面向平行的投影面上投射,得到的图形就是立面图。他主要表达房屋的外部开头、房屋的层次和高度、门窗的开头和外墙面的材料及装修做法等。
剖面图就是假想用一个或两个铅垂面的剖切平面把房屋切开后所得到的剖视图。他主要用于反映房屋内部在高度方面的情况,同时也可以表示出房屋所采用的结构形式。
来源:互联网,暖通南社整理编辑。











