乐居买房苏州讯 节前,位于吴中区太湖新城橘林街东侧、君益路南侧的天鸿伟业60号地块规划出炉。

根据项目规划信息可知,项目产品为小高层和高层产品,据了解,天鸿伟业60号地块将由仁恒操盘,且户型面积段是约160-230㎡的大平层。
苏地2021-WG-60号地块是2021年11月24日由天鸿伟业置地有限公司以总价23.99亿元竞得,成交楼面价为17013元/㎡,溢价率为0%。
该地块分为A、B两宗小地块,根据规划要求,地块住宅单套户型面积不得低于120㎡,全装修交付,装修成本不低于2000元/㎡。
从规划平面图来看,项目共规划17栋住宅,包括小高层和高层产品,层高在14-24F之间。另外,项目还公示了6#、14#、19#楼的平面图。
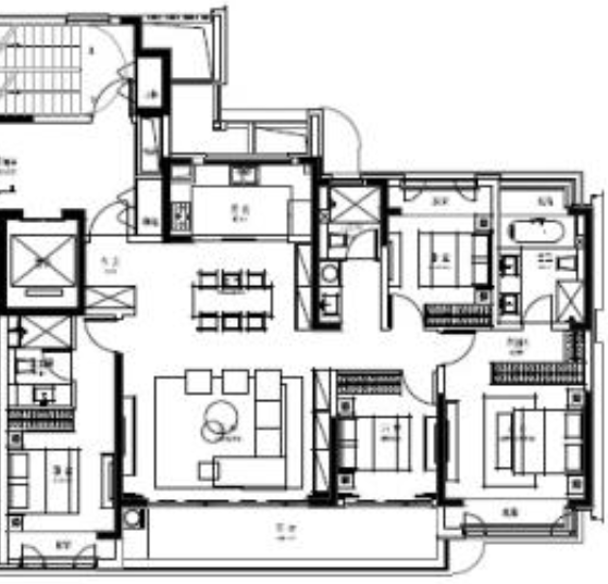
14#楼为14F小高层,1梯2户设计。
室内设计为4房2厅3卫:
室内布局方正,动静分离,三开间朝南;主、次卧均为套房设计,带独立卫浴和飘窗,空间私密性和功能性都不错;北向卧室和书房均带飘窗。
6#楼为24F小高层,2梯2户设计。
室内设计为4房2厅3卫:
室内布局方正,四开间朝南,采光和通风效果不错;主次卧均为独立套房设计,主卫双台盆设计,品质感得到提升;另外客卫干湿分离,入户玄关以及大方厅设计,都在细节之处体现了改善属性。
19#为22F高层,2梯2户设计。
室内设计为4房2厅3卫:
此户型在原有基础上又做了进一步改善,全屋飘窗,主次卧均为独立套房,带衣帽间和卫浴,主卧衣帽间空间宽敞,设有梳妆台,主卫依然是双台盆设计;南向宽景大阳台,采光效果较好;厨房餐厅自成一体,同时厨房间旁边还设有家政间,空间功能性得到提升。
从项目的三个户型来看,纯纯改善无疑,吴中太湖新城目前在售楼盘和未来即将入市的产品均以改善为主,定调颇高,作为吴中重点发展的太湖新城板块,板块拥有比较优越的苏州湾湖岸线,同时也有比较高端的规划,目前湾东区域已经比较成熟。
地块近距轨交4号线苏州湾北、天鹅荡路两个站点,一路之隔为科沃斯机器人公司以及品汇左岸商务广场。区域内距离较近楼盘有中信泰富玖著云庭、天鹅港华庭、金融街融悦时光、中建太泽之星、大家银城东望等等,单价多在3W+。











