成华区三倍熔断热盘华侨城滨江壹号盘一改善项目案名公布——中交鹭鸣九章。项目位于成华区万年场板块,是中交在今年3月于成都集中供地中抽签竞得,当时的成交楼面价18900元/㎡。根据土地出让条件,该地块住宅清水限价28000元/㎡,成品住宅销售比例100%。

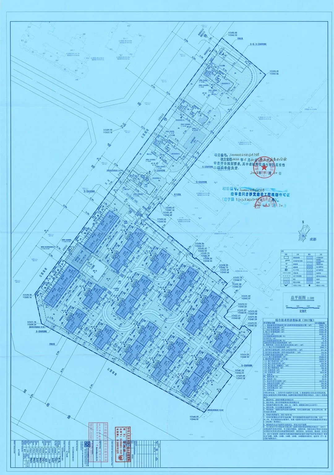
该地块已于5月30日取得了建设工程规划许可证,由成都卓璞置业有限公司负责开发,是中交地产的全资子公司。项目位于成华区,占地约44亩,建设规模为75856.18平方米。其中住宅计容建面为44241.67平方米,地下住宅(储藏室)为5169.84平方米。
项目容积率为1.5,绿地率30.01%,建筑密度30%。从总平图来看,项目地块呈“L”型,形状方正,上面的“一”字型都是17F、20F、24F的住宅楼栋,下面“一”字型是4F、6F的住宅楼栋,产品疑似为双叠拼、三叠拼和高层住宅,整体容积率1.5,改善属性明显。
项目位于成华区万年场板块,区域内有华侨城滨江壹号、雪松雅居乐in天府、德商迎晖天玺等新房项目在售,且都获得了不错的去化,足以见得购房者对于该板块的认可度还是有的。
交通方面:
周边有地铁2号线、4号线、7号线经过,但是距离都不算太近,到万年场、迎晖路、塔子山公园地铁口直线距离都有1公里左右,步行还是要点时间。
项目挨着蜀都大道延线迎晖路,这条路可以直接到太古里,周边还有二环路、中环路、建材路等城市主道路,可以快速到达市中心和周边地区。
教育方面:
2公里范围内有成都双林小学(御风分校)、成都市锦汇东城小学、成都市双庆中学(万年校区)、成都市双庆小学校、成都石室小学、渥太华国际公立学校(在建)等丰富的教育资源。
生态方面:
紧邻400亩的塔子山公园和沙河生态带,过个街就能去逛公园、赏河景,生态资源比较有优势。
商业方面:
邻近攀成钢、万象城两大商圈,旁边的华侨城滨江壹号还配建有建面约5万㎡的商业,引进了沃尔玛超市等商家,另外距离1公里左右,是已经动工的成华和悦广场(在建)。





