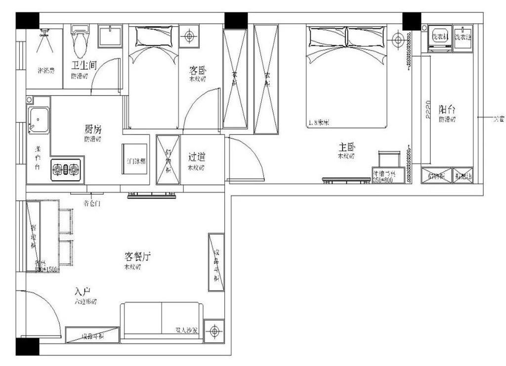
今天分享的是一套建筑面积69平米的北欧风小户型2居室案例,房子整体的搭配以白色和木色为主,通过简洁的硬装和温馨的木质家具,来营造出这种舒适、轻松的居住氛围,房子虽然并不算很大,但整个家的布置却紧凑又实用。入户没有玄关走廊的户型,屋主在沙发的边上摆放了一个换鞋凳。

迷你的灰色双人位布艺沙发,搭配彩色的几何图形地毯,客厅的墙面直接留白,点缀一幅简单的挂画,侧方边几上摆放绿植,都让这个客厅看起来更舒适
卧室的面积并不算很大,原木风的床、床头柜和衣柜搭配白色的墙面,床品上带有一些绿植图案,整个卧室给人一种简约、自然的感觉
卫生间内做了干湿分离的设计,浴室柜和镜柜结合让卫生间拥有更多储物空间。
原木风的餐桌椅摆放在了靠窗的位置,这样吃饭的心情也会好一些
厨房内部做了L形的橱柜搭配窄边柜,这样厨房也能够多出一些储物空间。
一套建筑面积69平米的北欧风小户型二居室案例,房子整体的搭配以白色和木色为主,通过简洁的硬装和温馨的木质家具,来营造出这种舒适、轻松的居住氛围






