这是一个位于拉脱维亚度假小镇Ogre的社区图书馆建设项目。

为了能够更好的了解项目的需求,参与整个项目的不同小组在早期就参与了头脑风暴和计划过程,设计师们前往附近的学校、青年组织和当地文化中心,甚至在当地的脸书群组找那个为社区的居民组织了一项调查。许多不同的想法被引入,如特殊的婴儿玩耍区、育婴室和儿童游戏室等。
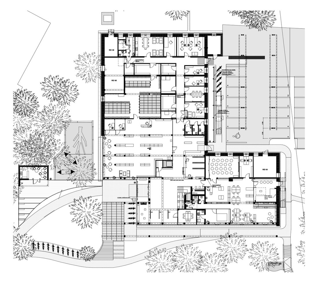
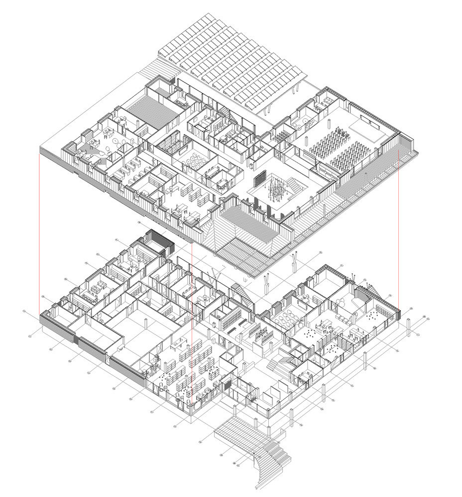
因此,这个新的社区图书馆本身的设计不太像一个机构,而是更像一个开放的公共场所,不仅可以供社区和游客社交,还可以提供教育和放松功能。新的中心是有不同的阅读和工作空间的图书馆,一个巨大的儿童图书馆,一个独立的成人图书馆,一个宽敞的带露台和儿童房的会议大厅,一个舒适的夏季咖啡图书馆户外活动,甚至一个民事登记处与结婚典礼大厅,带有攀岩墙的儿童活动室,育婴室等等。
启发了新的社区图书馆设计是森林和河流的原始之美,结合具有历史意义的小木屋和坡屋顶的温暖和舒适,也是度假小镇Ogre的主要特色。新建筑被小心地放置在丘陵地带,以尽可能多地不破坏自然森林。
新建筑的设计理念是躲在树后面,透过树向外看,这就像拉脱维亚人有点害羞和内向的天性。
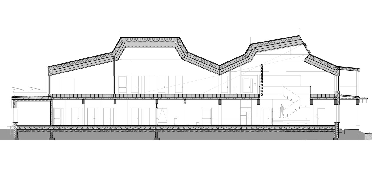
建筑承重墙由CLT面板制成,但柱、梁和楼板均采用GLT,以确保更大的跨度,屋顶则是金属框架结构,立面一层覆盖着浅色落叶松,二层和屋顶覆盖着深色的泰坦锌,漂白的木质结构暴露在室内,二楼悬挂了松木天花板,木材的可以让建筑更好地融入周边的环境。
在建筑的供热和制冷方面,在城市中央污水系统蓄水池中有外部轮廓的水-空气热泵。用于热泵的电力是由停车场上方庭院中的太阳能电池板产生的。从屋顶收集的具有生物活性的雨水,通过中庭的空气生物过滤功能用于浇灌绿色墙壁。
建筑中庭安装了一个仪表板,上面有实时数据和解释动画,结合建筑介绍创新的建筑系统,这对于社区之中的孩子们而言,将会是一个特别的教育机会。
图纸

























