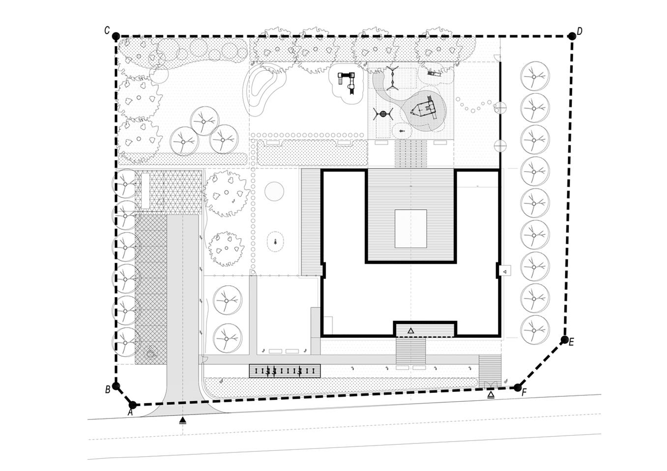
这是一个位于波兰的Adamów的托儿所设计项目,可容纳50个幼儿。

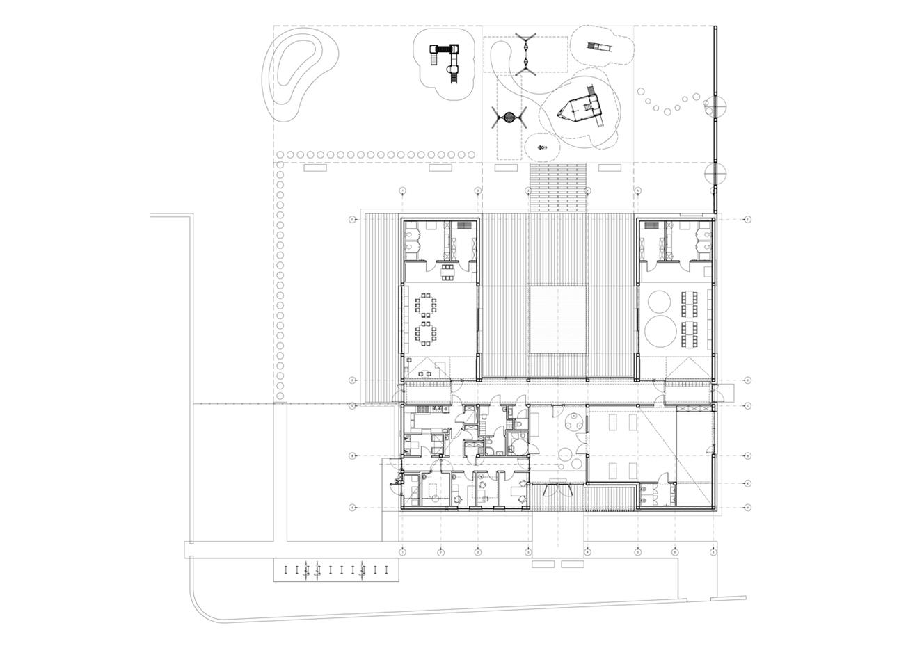
整个建筑由两个小组房间和一个游戏室组成,游戏室有一个一个单独的入口和厕所,不仅可以用于幼儿感官整合和体育活动,当地社区还可以使用它来组织小型活动或市政会议,游戏室的功能会根据需求进行动态调整。
建筑呈马蹄形,中央有一个大露台,虽然朝南但在建筑的阴影下,孩子们也可以安全地玩耍。操场是露台的延伸,所有的区域都种植了果树和灌木,未来这些区域会长满绿色的植物。
建筑的入口位于北面,主大厅通过游戏室、行政空间和衣帽间,从衣帽间,孩子们可以进入教室,每个教室都有一个宽敞的卫生间和小储藏室,每组教室分别使用了粉色和黄色,色彩的区别加强了孩子们对于房间的认识。
每个教室中都可以进入中央露台,且都有大窗户,可以打开形成一个6米宽的通道,当天气好的时候,外部可以成为内部的无缝延伸,所有的空间都成为一个巨大的游乐场。
立面选择了像砖、木材、金属片等更自然的材料,为了更安全露台使用了复合板。
出于儿童尺度的考虑,在露台处设计师将建筑的房檐压低,这样的设计对于幼儿更有亲和力。
图纸


















































