乐居买房苏州讯 12月5日,象屿地产斜塘苏地2022-WG-44号地块规划批前公示出炉。

根据规划公示,项目建设地点位于松涛街东、淞江路北、斜塘河南,总建筑面积113627.71㎡,其中计容建筑面积76654.88㎡,不计容建筑面积36972.83㎡。
项目建设单位为苏州象拓房地产开发有限公司,经查,该公司由江苏象屿房地产开发有限公司和苏州商用置业有限公司共同持股,持股比例分别为81%、19%。
根据规划,项目拟建14栋6-24F住宅,仅2栋为高层,其余12栋均为洋房。从分布上看,项目沿斜塘老街河道一侧为较为低密的6F洋房,仅有的两栋高层沿西侧道路分布,直面斜塘邻里中心。
总平面图
具体来看,16、17、18#为6F洋房,6#楼为7F洋房,1、2、3、10、11#楼为8F洋房,7、8、12#楼为9F洋房,5、9#分别为23F、24F高层。
小区设两个出入口,分别位于西侧规划道路和南侧淞江路,小区主出入口设有水景景观。
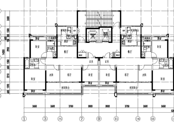
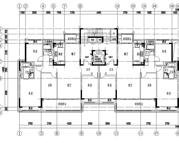
与此同时,项目还公示了9、10#户型示意图。
9#楼高层户型,为两梯两户设计,四房两厅两卫,四开间朝南。南北双阳台,均为封闭式阳台,且南向为双连阳台,长约6.35米。客餐厅一体,U型厨房,客厅开间3.75米。三卧室朝南,卧室均带飘窗,主卧为套房设计。
10#楼洋房户型,为一梯两户设计,双开门电梯,入户玄关设计。南向四开间朝南,餐客厅为竖厅,南北双阳台均为封闭式设计,南向阳台为双连阳台,长约6.9米。3卧室朝南、1卧室朝北分布,卧室均带飘窗。主卧开间3.75米,卫生间带双台盆。
此外,项目还分别公示了9、10#楼立面设计图。
9月28日,象屿地产竞得苏地2022-WG-44号地块,成交总价202891万元,成交楼面价约26456元/㎡,溢价率1.76%。
交通上,地块紧邻轨交5号线斜塘站,西面还有在建的轨交8号线(预计2024年运营),届时可实现双地铁环绕;教育上,地块一公里左右有西交大附中、斜塘学校、仁爱学校等;医疗上,地块周边有星塘医院、苏大儿童医院、九龙医院等资源;商业上,地块近距斜塘老街、斜塘邻里中心、联丰广场、奥体中心广场等配套,去往湖东、欧尚等也十分方便。
目前该片区除了象屿44号地块项目,苏高新及地块项目也即将面市。









