景观是开发该项目以及场地地形的基本要素。该设计的主要概念是在探索视觉幅度和自然联系的同时保持隐私。底层投影意向为U型,环绕水池,与景观相映生辉。

在这一层,主要空间和用途是一体的,它们之间有生活区、餐饮区和美食区。围绕那些之前相关的用途,在这一层,有厨房、洗衣房、电影院和办公室,它们一起有助于保证隐私。
将扩展的玻璃开口同时与可以保证隐私的解决方案结合起来是一个挑战。在这个游泳池所在的中央庭院,极简主义的开口使内部空间和外部空间之间的联系成为可能。侧立面主要是实心和封闭的。总之,建筑的结果是在使用天然材料的舒适房屋中与自然完美融合的形状。
在选择的材料中,有混凝土、木材和天然石材。这些是主要的组成元素。但是,作为一个很好的特定场地项目,植被成为所选材料的附加元素。它出现在花箱中,还描绘了房屋入口,当不同的色调与建筑材料相匹配时,有助于全年形成动态的调色板。
在房子内部,天然木刀片用于照明饰面,营造出精致的外观,并与实木天花板形成鲜明对比。空间幅度丰富了家具陈设,装饰与其他建筑元素相连。
作为一家建筑工作室,Studio Colnaghi Arquitetura寻求真实、永恒和舒适的结果。成品材料和一些工业材料之间的平衡是该项目的一个有趣点,因为可以在出现不锈钢的美食空间中识别它。
在二楼,建筑形状遵循一条线性,容纳所有向山谷景观开放的卧室,而这个体量的前立面主要是封闭的,只有一个水平的玻璃表面。回到底层,不同的用途展示了场地区域的整合潜力。
与美食区一起,酒窖创造了一个可以看到景观的背景。木天花板最大限度地扩大了空间幅度,只要它遍布整个社交区域,就会给空间带来舒适感。
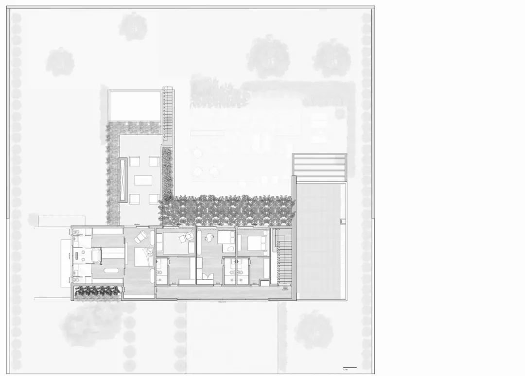
∇ 一层平面图
∇ 二层平面图




























