这是一套200平米的复式户型,整体空间采取现代风的设计基调,在细节软装加入鲜艳而又有艺术感的装饰,在自然明亮的采光条件下,营造出一个时尚高级的独特装修效果。
客厅

▲挑高的客厅中间上方装一盏艺术造型的环形吊灯,电视墙装一个大理石材质的壁炉造型,上方装一幅大尺寸颜色鲜艳的装饰画,使得空间充满活泼优雅的时尚气质。
▲木地板的地面,布置一席米白色地毯,摆上一张浅灰色的布艺沙发,配上红色带花纹的茶几,还有一张蓝色的单人沙发,布置出一个简约时尚的客厅氛围感。
▲电视墙的壁炉造型上方摆上小手办与绘本,还有两条蜡烛装饰,色调与后方墙面装饰画相呼应,让空间有着独特童趣与优雅的气质。
▲电视墙右边角落的落地灯,独特的立柱造型,也有着别致优雅的设计感。
餐厅
▲餐厅摆上实木餐桌,左侧墙面装上一面镜子,让空间视觉感得以放大;右侧墙面则是挂一幅粉红色调的装饰画,让用餐空间更有文艺优雅的气质。
▲胡桃木的餐桌,餐桌上方装两盏盘状吊灯,靠窗两侧的角落布置花瓶与斗柜,窗帘采取百叶帘的设计,让用餐空间显得明亮端庄而又文雅精致。
▲自然光照透过百叶帘入室,采光效果自然明亮而舒适。
厨房
▲厨房是开放式的空间,设在客厅旁边,这样做饭的时候也能与客厅的家人聊天,居家时光温馨感大大提升;中间装着一个中岛台,侧边是电器柜,也让做饭操作更加方便舒适。
▲客厅与厨房之间,没有什么遮挡,采光共享、空间交流极强。
过道
▲客厅与厨房之间的过道,连着玄关、楼梯与走廊,空间纵深感强烈。
▲过道侧边木饰面的墙面装入隐形门,尽头墙面布置一个彩色球连成的摆饰,让空间显得更加鲜艳活泼而有趣。
▲在客厅靠窗边的一侧,也有一条过道,让一层空间做成环形的格局,使得家里有着无限宽阔的设计效果。
▲窗户装上百叶帘,日光透过百叶帘的缝隙进入室内,呈现出一种光影斑驳的独特采光效果。
楼梯
▲落体设在沙发后方,以玻璃扶手设计,玻璃扶手连通着二楼过道,整体设计质感时尚高级。
▲楼梯踏步采取原木质感的设计,装上玻璃扶手,在明亮的空间采光下,使得楼梯成为一个简约时尚而舒适的过渡空间。
二楼过道&休闲区
▲二楼过道里设置了一个休闲区,摆上碎花花纹的地毯,摆上小茶几,旁边定制一个收纳展示柜,让这个休闲区有了更多利用的可能性。
▲卧室门与墙面的木饰面形成了巧妙的隐形门设计,角落布置玻璃小茶几,摆上粉色花瓶插上鲜花,墙面挂一幅花田的装饰画,让空间充满清新浪漫的优雅气息。
卧室
▲卧室床头墙是灰色护墙板材质,木质地板与侧边木饰面的墙面保持一致的色调,摆上一张皮艺床,铺设净白的床单,床尾摆了一张大花纹图案的床尾凳,为主人布置出一个简约舒适而又时尚简洁的卧室环境。
▲床头旁边的灰色床头柜,摆上一张陶艺灯体的台灯,也让床头角落布置出明亮舒适的温馨感。
▲床尾定制一整面墙的衣柜,中间还加入了空位,方便放置电脑或作为梳妆台使用。
▲窗边摆一张休闲沙发椅,周末的午后,坐在这里晒晒太阳,生活也满是惬意从容的气息。
▲卧室大面积的落地窗,窗外高楼林立,充满着现代都市风的感觉。
主卫
▲主人卫生间的墙面刷着防水漆,摆一个大浴缸,搭配大理石材质的洗手盆,为主人布置出一个简雅时尚的卫浴空间。
▲椭圆形状的浴缸,旁边墙面装上壁龛,上方一盏吊灯,使得卫浴时光实用而又情调。
女孩房
▲女孩房的床头墙贴着粉色主题的花鸟图案墙纸,布置一张粉色的皮艺床,搭配灰色的床单,营造出一个浪漫梦幻而舒适的卧室环境。
▲床尾摆一个淡紫色斗柜,窗户旁边连着过道,让这个卧室有了安静而又明亮的环境。
▲玻璃瓶插上鲜花,生活简单平凡而舒适。
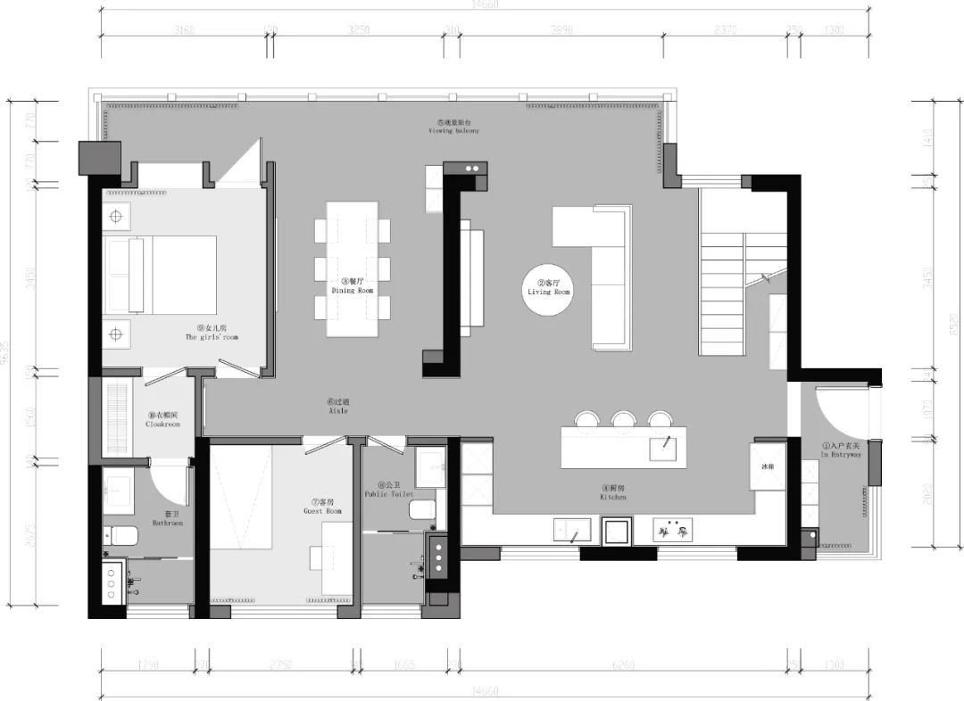
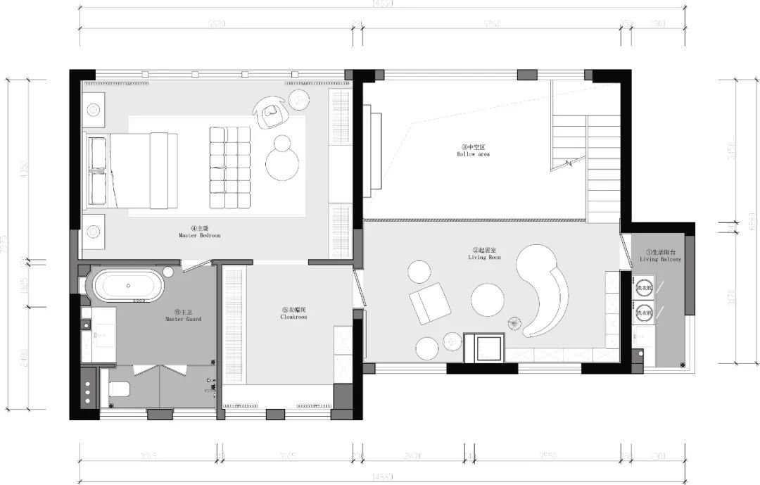
平面布置图





































