热泵运行原理:
四大部件:蒸发器、压缩机、冷凝器和节流装置。

运行原理:通过让冷媒不断完成蒸发(吸取热量、低温低压液态变成低温低压气态)→压缩(低温低压气态变成高温高压气态)→冷凝(放出热量、高温高压气态变成高温高压液态)→节流(高温高压液态变成低温低压液态)→再蒸发的热力循环过程,从而将环境中不可利用的低品位热量转移成可使用的高品位热量。
压缩机:
功能:将气态的制冷剂由低压变成高压,低温变成高温。
节流装置:
功能:将高温高压的液态制冷剂变成低温低压的液态。
蒸发器:
功能:将低温低压的液态制冷剂变成低温低压的气体。
冷凝器:
功能:将高温高压的气态制冷剂变成高温高压的液体。
四通阀:
功能:除霜,制冷双化霜系统。
气液分离器、储液器:
气液分离器:将低温低压的液态与低温低压的气态制冷剂分开。
储液器:储存制冷剂,维持热泵在春、冬季制冷量充足。
热泵能效比COP:
热泵工作时,蒸发器吸收环境介质中的热量Qa;
消耗电能(W)做功消耗的能量,部分转化为热量Qb;
通过工质循环在冷凝器中释放的热量Qc;
三者的关系:Qc=QA+Qb。
COP=热泵机组的制热量Qc/输入能量W=(Qb+Qa)/W
由此可见:COP值反应了热泵的效率,且热泵的COP值恒大于1,体现了其节能的特性。
由图可见,随着温度的升高,cop值下降,即热泵效率下降。这是因为随着水箱温度的升高,冷凝器侧换热温差变小,热水吸热量将少,降低了系统的性能。
氟循环工作原理:
加热时水静止不动,换热铜管在内胆内部。
水循环工作原理:
冷媒循环与水循环产品的比较:
工程设计选型:
1、热负荷量计算:
可根据《民用建筑太阳能热水系统工程技术手册》热水用水定额计算:
Q = C·M·△T
Q-所需制热量,kJ;
C-水的比热容,4.18KJ/kg·℃;
M-水的质量,kg;
△T-自来水温度与用水温度温差,℃。
2、主机选择:
根据热负荷计算的结果,充分考虑机组抗疲劳,冬季最不利气温条件下;主机运行时间不超15小时/日,所以本工程实需主机产热功率:按照每天运行x小时计算,则热水需要主机的制热功率为:
Qw = Q/(X*3600)/n
Q-热泵主机制热功率,kW;
X-机组加热时间(单位小时),一般取8-15小时;
n-为制热量修正系数,一般取0.8—1。
3、循环泵的选择:
1)循环泵的流量的选择:G=Q×3600/(Cρ△t)
G-泵的流量,m³/h;
Q-热泵制热功率,kW;
C-水的比热容,4.18KJ/kg·℃;
ρ-水的密度,一般取1000kg/m³
△t-每小时水温升,一般取4.5-5.0 ℃
经验数值:循环泵的流量G可根据机组循环水流量*1.1~1.2来选择。
2)循环泵的扬程选择
一般情况下,每个热泵机组的压降为5m左右,沿程阻力与局部阻力可以用经验公式0.005*L来代替。
循环泵配型推荐表:
4、主管管径的选择:
G = π·r²·v
G-每小时水的循环流量,m³;
π-圆周率,3.14;
r-主管的管径,m;
v-经济流速,一般取1.5-2m/s;
可以将以上数据代入公式,取r值,选择合适的主管管径。
管径选择推荐表:
以上为经验值,仅供参考。
选型计算的经验推荐方法:
根据各个地方的全年气温情况,可以按以下经验数据进行配套制热水量。
选型及配套的注意事项:
优先选用两台机组;优先选用双压缩机的机组。
太阳能热泵热水器是利用太阳能作为蒸发器热源的热泵系统,将太阳能集热器与热泵蒸发器合二为一,即制冷工质直接在太阳能集热器中吸收太阳辐射能而蒸发;然后通过热泵循环加热热水。除太阳能集热/蒸发器外,其余部件(压缩机、冷凝器和膨胀阀)与常规空气源热泵热水器相同。
空气源与太阳能结合原理:
主机安装示意图:
单机组安装基础:
多机组模块化同程连接:
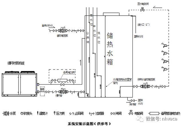
水管路系统安装示意图:
1.单机系统:
2.模块组合系统:
调试注意事项:
机组使用前应会同安装人员到现场确认下列事项后,再启动机组:
1、供电电源是否为机组所指定规格的电源,电源线的容量是否满足要求;
2、供电线路中应配置用于漏电保护和短路保护的低压断路器,并且接地端子是否可靠接地;
3、检查电控柜内外特别是各点接线口上是否清洁无杂物;
4、管道系统是否进行了水压试验,并满足密封要求;
5、风机扇叶是否与风扇固定板和风扇护网有摩擦;
6、机组周围是否按规定留出适当的服务空间;
7、机组安装时是否采出了必要的防振措施;
8、机组周围影响风量的物品是否移开;
9、系统中应该开启的阀门是否已全部开启并处于正常状态,应该关闭的阀门是否已全部关闭;
10、保温水箱在使用前是否进行清洗,确保水箱中无脏物,以免影响机组运行;
11、对于模块组合系统,需检查主、从模块地址开关拨码位置是否正确。
机组使用过程中其他注意事项:
1、一旦运转停止后,若再启动,须至少等待3分钟后再启动,起停次数过多会损坏压缩机;
2、机组长期运转后热交换器会附着污垢和杂质,从而导致制热能力下降,能耗增加,请联系专业的人员进行清洗;
3、控制器中的设定值,有调试人员依照机组的运行状况进行设定,一旦设定请勿私自更改;
4、冬季制热运行状态下如需短时停机,必须用机组线控器上的“开/关”键停机,不能关闭机组电源,否则机组水管道温度过低,机组不会自动进入防冻运行而导致损坏;
5、在使用或非使用季节,长期停机,应将机组内冷却水放净,并关闭全部电源;
6、冬季制热时运行期间(特别环境温度低于0℃),在晚上不得切断机组和水泵电源,水泵与主机不联动的,应让水泵不间断运行,以防冻结;
7、机组内的安全保护装置均在出厂前设定完毕,切勿自行调整;
8、常检查机组的电源和电气系统的接线是否牢固,电气元件是否异常,若有异常应及时维修和更换;
9、经常检查机组各部件的工作情况,检查机组的管路是否有油污,确保机组制冷系统无泄漏;
10、下雪天,对于露天安装的机组应进行遮盖保护,机组若已积雪,则不可直接启动机组,应在清除积雪后,再开机。
使用及维护保养:
机组运行:
接通电源,启动水泵,此时倾听水泵有无异常噪音,并观察水压情况是否在正常范围。如出现流量开关保护,则说明水泵水流量过小,需查找原因并解决。
对于三相电源机组,首先检查风扇、水泵转向是否正确,如转向不对立即关闭电源,调整相序。测量压缩机运转电流是否正常,有无异常声音。
经延时后,压缩机启动,机组处于正常工作状态,此时应检查机组有无异常振动及异常噪音,观察压缩机吸、排气温度变化情况,并检查机组电流是否正常,同时做好相关记录。
调整水流量至名义值后运行30分钟,再根据用户要求设定出水温度,保证机组运行过程正常。
注:由于水泵由机组主模块控制器控制,在进行水系统运行时,可启动“单独运行水泵”模式,以使水泵运转。
机组运行情况检查与记录:
所有机组在出厂前均已通过严格的测试和检验,为了确保机组能够长久良好地运行,用户应按排好机组的维护与保养工作,并定期进行检查修理。
机组运行期间,建议用户在日常检查工作中做到每天一次检查空调系统的运行状况,并作表格式的记录。
机组的检查与清洁:
机组周围请勿堆放杂物以免堵塞进出风口,应经常对室内末端装置回风口过滤网进行清理,机组四周应保持清洁干燥,通风良好,以维持良好的换热效果,节省电能。
为确保冷凝器有效的工作和进行最大限度的热量交换,其外部必须保证定期清洁,没有任何如落叶、棉绒、昆虫、塑料袋等易堵塞蒸发器翅片的污染物且要定期清洗翅片上灰尘。
水系统的检查与清洁:
循环水不应使用地下水、硬水或其它污水。应使用经过处理的自来水软水作循环水(PH值应在6.8-8之间)。确保水质清洁,水系统压力正常,对于硬度比较高的水应该采用相应的软化措施,以降低硬度,以免机组的产生污垢,影响机组换热效果。
通常水中的杂质可以通过安装在回水管的过滤器清除,过滤器目数的大小能将大小不同的杂质过滤掉,推荐采用60目水过滤器。过滤器目数越大,过滤杂质能力和范围越大,但其阻力将会增大很多,必须要注意定期对水过滤器进行清洗或更换过滤网。请务必在补水管上安装一个水处理器和水过滤器。通常杂质是由机组初次加水或安装管道时带来的,因此清洗管道时应用清洁的水源,并且将初步清洗管道的水排尽,在机器启动之前一定要清洗过滤器。
电气配线说明:
机组电源线选择:
(1)单个模块机组电源线规格电源线选择(见接线示意图)
(2)长度一般指主机和专用电源之间的电缆长度。在商用中央空调器中,选择配线时,必须考虑配线长度,保证电机启动时的电压降在额定电压的2%以内。
(3)采购的电缆线,组件和材料必需符合国家标准规定且只允许使用铜导线。
(4)电缆线必须是具备不低于75摄氏度的耐温铜芯导线。
(5)电源缆线应为氯丁橡胶铠装线,即GB5013.2表18中YZ,YZW型。
电气检查及维护:
1、检验并确保所有电源线的规格是符合要求的,如电线的截面积足够大、地线与零线符合设计要求等。
2、检验并确保电路控制元器件的大小规格是符合设计和使用要求并在正常工作,如空气开关的、保险丝的规格以及接触器保护器等。
3、检验并确保所有连接处均接触良好、稳固,各螺钉接线处应不定期地检查,加固。
4、检验并确保所有指示灯在正常工作。
【特别警告】 电源线容量过小或线路有接触不良都有可能引起故障甚至火灾。
故障分析与排除:
本文来源于互联网,暖通南社整理编辑。



























