这是一套50平米的老破小户型,房子面积不大,改造以简约风格为基调,布置上现代舒适的家具,以简约自然的开放式客餐厨空间设计,为主人布置了一个从容惬意的生活环境。
玄关

▲玄关区域以木饰面材质的墙面空间,靠放餐桌部分的柜体做成矮柜,使得玄关与大厅互通,采光有了更充分的保障。
客厅
▲由于面积关系,所以把客厅与餐厅做成同一个空间下,电视墙在木饰面墙面的基础,中间加入一个白色的背景+壁挂电视机,右侧加入开放式的书架摆上书籍,让客厅空间充满简约文艺的舒适感。
▲灰色地砖+灰色布艺沙发,搭配白色与木质感,给人一种简约舒适的温馨;还有一个灰色圆形的布艺小凳充当茶几功能,让小客厅的功能更加灵活实用。
▲灰色布艺沙发,沙发后方书办公区,摆着一张书桌,后方定制一排收纳柜,天花也是无主灯的吊平顶设计,整个客厅都充满简洁自然的大气设计感。
▲简简单单的布艺沙发、布艺凳子、还有极简的边几,搭配灰色窗帘+纱帘的组合,让小客厅也充满实用温馨自然气息感。
▲小凳子平时作为靠脚凳,方书籍的小茶几功能,有客人来了也能作为坐人的位置,简单实用。
餐厅
▲餐厅就在客厅与玄关之间,摆上一张简易的白色餐桌,搭配白色铁艺架的餐椅,在简洁的空间下,为主人打造了简便实用的用餐氛围。
▲餐桌椅后方开放式的书架,摆上书籍、装饰品,餐桌上方还有两盏银色的球形吊灯,为主人布置了一个简约精致的用餐仪式感。
开放式厨房
▲厨房是开放式的格局,与餐厅之间还加入了一个中岛台+吧椅的组合,布置了一个情调优雅的小区域;厨房整体白色橱柜+墙面,加深灰色地面,整个空间显得更加干净时尚;虽与简约的玄关、客厅区域有着明显的风格差异,但在吧台的过渡下,整个空间也给人一种现代舒适的气息。
▲开放式厨房的面积不大,却也满足了家人日常生活的需要。
▲厨房里面是卫生间、卧室区域,卧室门是隐形门的设计,简洁白色的方面与墙面、定制柜保持统一的质感,空间风格和谐自然。
办公区
▲沙发后方就是办公区,一张书桌靠着沙发布置,窗户是纱帘设计,简约的空间没有什么多余的布置,实用舒适为主。
▲白色平板门与墙面、隐形门、天花一致的统一,简单却又实用舒适;书桌是多功能书桌,桌面下带了小小的收纳,为台面无物提供了收纳保障。
卧室
▲卧室以紫蓝色的床头墙+黄色皮艺靠背的床铺,搭配净白干净的床单,浅灰色的窗帘+纱帘,让卧室显得简约舒适,同时黄色的床靠背也使得卧室有了一种活力的俏皮感。
▲床侧边一个简易的床头柜,床头柜的柜门,上方一张金色的吊灯,布置出一个简约而独具高级感的卧室空间。
卫生间
▲卫生间的洗手盆外置与厨房操作台连为一体,加宽了空间的使用与视觉感;洗手台与厨房操作台之间加入茶色玻璃隔断,也让两边空间互相独立。
▲卫生间内部面积不大,以浴帘作为干湿分离的隔断,增设暗色的的卫浴空间,加上拉槽处理的地面,让卫浴空间简单而实用方便。
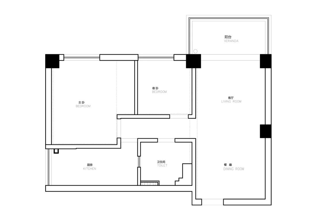
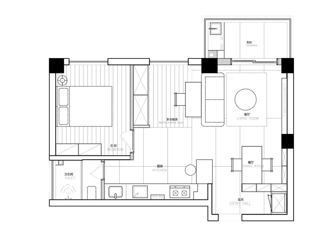
户型图+平面布置图





















