点击上方“阳台设计精选 ” → 点击上角“...” → 点选“设为星标 ★ ”

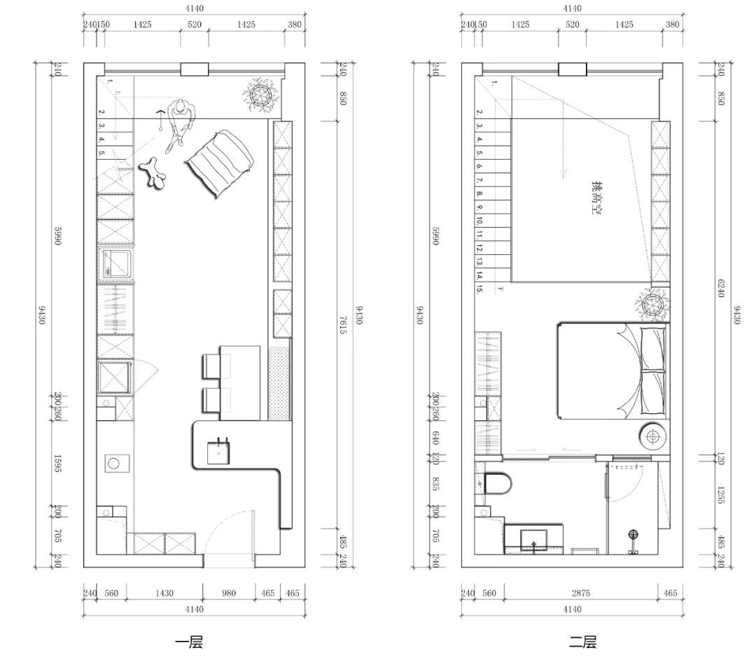
今天齐家安安要分享的是一套35㎡小公寓装修案例,设计师利用层高打造loft结构,超高墙面全部设计成图书馆,带来超大气效果,空间又大又美。
客厅空间挑空设计,加上超强的采光,整体看上去通透明亮。客厅不单单是客厅,它可以是书房,可以是放松自己的好去处,也是可以接待三五好友的空间。
客厅最惊艳的是定制一整面高5m的全敞开式书柜,白色背景+各色书封,更有立体感。轨道滑梯的设计方便拿取书籍。
利用楼梯下方做了一些收纳柜体,关闭柜门,是一面整洁的楼梯。
打开柜门,可以看到其中的收纳,暗藏着洗衣机、烘干机和冰箱,甚至过季的衣物和家政工具,收纳力赶上一个小型储物间了。
整个空间非常干净清爽,地台不仅仅起到楼梯踏步的作用,也可以替代沙发的作用,躺或者坐,都能悠闲自得。
卡座与书桌的连接,让空间拥有一体性和延伸感。将每一块区域自然连接起来,同时增加更多收纳空间。
黑色柜体直接下穿卡座区域,让卡座具有延伸性的同时也不显笨重,看上去设计感十足。
餐厅,岛台连接餐桌,仿佛悬浮在半空中,空间更显轻盈通透。餐桌不仅是吃饭,也是日常办公学习的地方。
厨房,选用黑色柜体搭配铜色不锈钢,打造一个mini下厨空间。一侧设计了岛台,搭配黑色石英石大单水槽,平时洗菜、切菜、备餐都在这里进行,分担厨房压力。
卧室设计尽量简单化,部分墙面装饰留给未来生活,尽可能放空,给自己多一点呼吸空间。
一张床+舒服的床垫,搭配一盆绿植,清新舒适。自然材质的运用增加了放松感,营造更简单舒适的休憩空间。

















