这一套184平米的复式户型房子,整体装修以现代美式风格的基调,在软装细节加入金属质感的元素,让空间有了轻奢范的优雅与华丽感,以美式+轻奢的混搭,呈现出一个舒适优雅的高档空间感。
客厅

▲客厅以美式+轻奢风的混搭格调搭配,茶几是雅白的金属架+岩板台面组合,搭配黑色皮沙发、蓝色沙发椅,让客厅空间布置出一种优雅华丽的高级设计效果。
▲电视墙中间雅白岩板背景墙,两侧是灰色的护墙板+壁灯组合,左侧是金属花盆,布置金属质感的电视柜,让空间显得更加华丽精致而大气。
▲沙发不靠墙,后方是餐厅空间,在客厅餐厅之间加入一个拱形门的造型,天花做成多级吊顶的造型,实现了一个典雅端庄的高级氛围感。
▲沙发上的黑白格纹抱枕,也让客厅有了一种复古范的时尚质感。
▲电视墙的灰色护墙板上还装了金属质感的壁灯,一旁过道的灰色墙面上挂上黑色底与绿色底的游轮俯视照片,客厅地砖加入波打线的装饰,让空间显得档次更加高级。
▲客厅与阳台打通,阳台上摆设黄色小鹿造型的凳子,让整个空间都格外的童趣活泼。
餐厅
▲餐厅的餐桌是金属脚架+岩板台面的设计,餐桌还带有转盘,搭配灰色坐垫+蓝色靠背的皮艺餐椅,为主人布置了一个实用优雅的用餐空间。
▲餐厅背景墙是深浅灰色的边框造型,挂上一组方形的装饰画,也让餐厅空间更加精致优雅。
▲餐桌上摆上花盆、餐具与玻璃器皿,也让用餐空间显得格外的华丽精致有仪式感。
楼梯
▲旋转楼梯是实木打造,白色主体+黑色扶手与踏步搭配,浅灰色墙面加上黑白调的装饰画,上方装一盏白色球形吊灯,让楼梯空间显得现代低调而时尚。
过道
▲二楼上了楼梯后的过道,木地板铺上地面,结合侧边楼梯墙面的装饰画与吊灯呼应,让走道显得文雅高级。
卧室
▲卧室床头墙以护墙板为背景,靠床区域加入硬包,布置一张灰色皮艺床,搭配白色+香槟色的床单,让卧室空间显得优雅舒适而华丽大气。
▲轻奢格调的床头柜上,摆上台灯、杂志与杯具,精致优雅的质感搭配卧室环境更加雅致气质。
▲衣柜区域做一个二字型的入墙式衣柜,并在中间靠窗装一个梳妆台,为主人打造了一个轻松优雅的衣帽间功能区域;白色衣柜+灰粉色墙面,让空间显得浪漫优雅。
儿童房
▲儿童房的床头墙贴着格纹墙布,摆上实木床、布置蓝色床单,侧边一个小狗造型的木马凳,简简单单的布置让空间显得实用舒适而童趣。
▲床头柜白色柜体+木色台面,摆上小人偶装饰,床头墙挂上汽车主题的装饰画组合,让空间显得童趣感十足。
榻榻米书房
▲书房里装着榻榻米+衣柜+书桌组合的设计,充当了一个多功能的空间;榻榻米床上布置灰色床单,加上蓝色抱枕与黄色毯子,结合蓝色窗帘,显得实用而又活泼。书桌上的墙面装上悬空开放层板,摆上书籍与装饰品,也显得更加文艺精致。
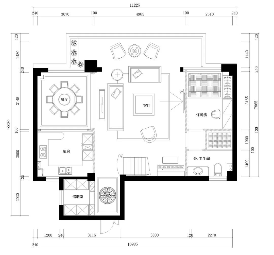
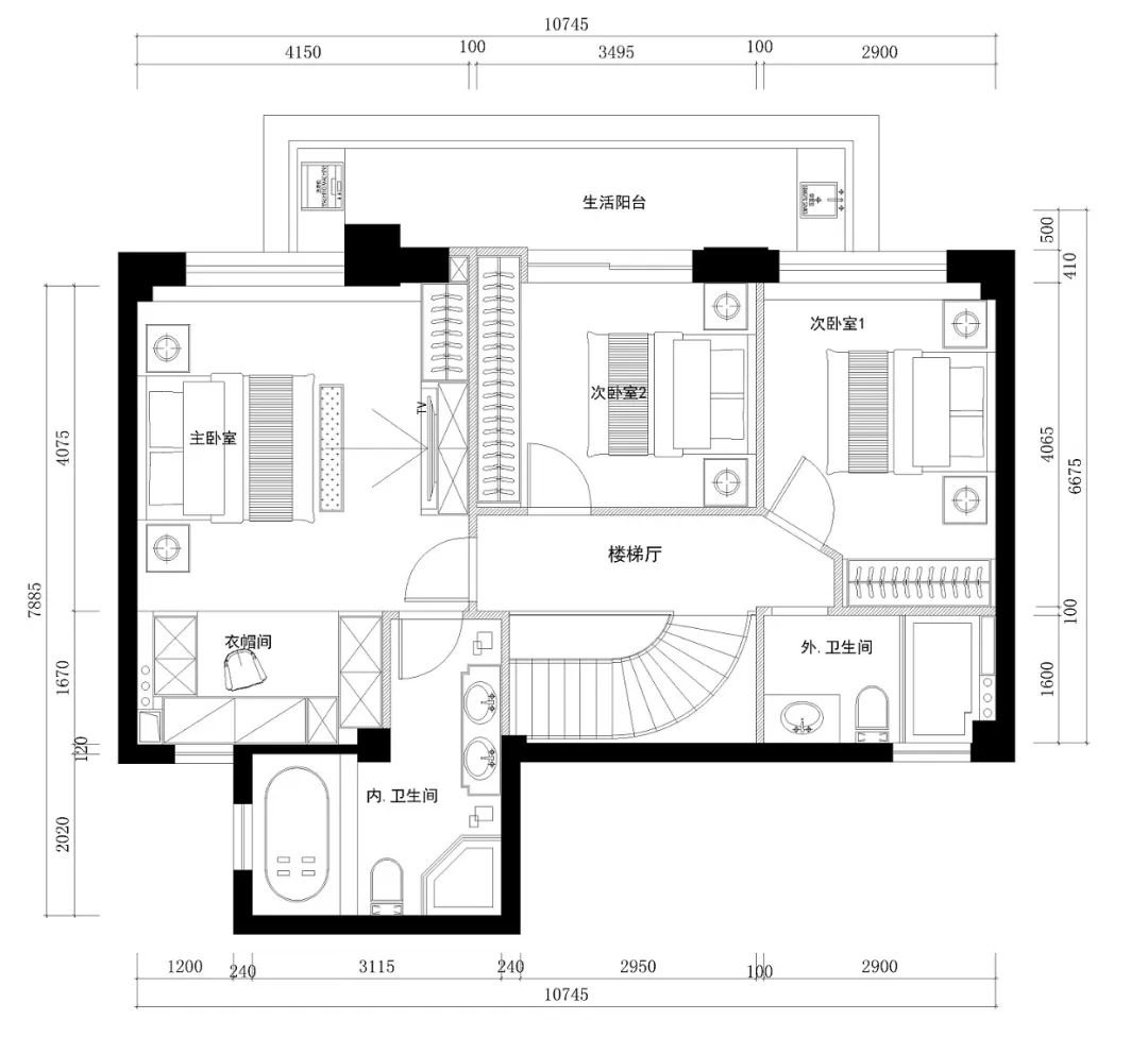
平面布置图






















