这是一套在惠州的房子,户型为典型的三房两厅两卫,居住的两位业主都是海归人士,所以对于户型的格局有自己独到的见解,他们希望可以打破束缚,让空间之间的互动性更强。
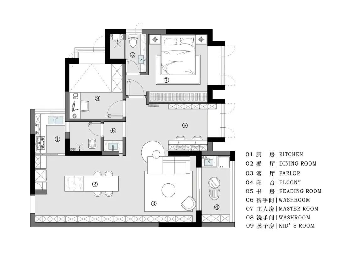
平面布置图

▲①鞋柜+餐边柜+电视柜一整排定制,保证其整体性;②岛台+餐桌结合,满足多种生活场景需求;③把生活阳台改造成中厨,扩大了餐厅的区域;④书房做成一个弹性空间,暗藏推拉移门结合玻璃折叠门可实现开放及封闭式两种形式的书房。
客厅
▲设计就是根据屋主的需求及喜好来定制的,两位屋主都是留学归来的人士,所以对于空间的规划都有自己的见解,空间与空间之间尽可以的“打破束缚”,实现一个全通透的大空间,所以我们看到的客厅也好,餐厅也好,阳台也好,书房也罢,都是融合在一个大空间里面,但也可根据需要实现空间的独立性。
▲阳台与客厅之间通过梦幻帘来实现分离,帘子一片一片垂直落地,让光线更好的透过帘子洒入室内。
▲客餐厅整体给人的感觉是大气,高级有格调的,也许这就要归功于材料及颜色的搭配,大面积的浅色木饰面,再用黑色木饰面搭配,最后用白色大理石来点缀,自然温馨又高级。
▲因为岛台上方有一根梁,所以做了一个平顶叠级,两个叠级之间用弧形来过渡,不仅美观又弱化了梁的存在感。
▲宁静又高贵的大理石与温馨又自然的木饰面相撞,呈现出一种低调的高级感。
▲木饰面墙与大理石墙面之间加了一块透明的玻璃,既可以增加卫生间干区的采光,又能让空间缓和一些,似乎在提醒人们要给生活做减法。
▲跟一般的客厅不一样,没有把电视固定在客厅,而是把电视机摆放在客厅与餐厅的中间,这样做的好处是无论是在客厅还是在餐厅都能看电视。
书房
▲沙发墙的后面是一扇与柜子同材质的木移门,不封闭的时候,把移门藏起来,空间感也变大了。
▲长条形书桌可以满足双人办公。
▲选用百叶帘,可以让书房的光线更加通透。
▲想让书房变成一个封闭的空间,光有木移门还不够,还要有折叠的长虹玻璃门,这么看玻璃与木质的搭配,出来的效果也可以足够的高级。
主卧
▲主卧的床头做成U形的木制背景墙,仿佛床被这个背景很好的包裹住,让睡在这里的人也更有安全感。
▲浅色的木饰面搭配奶油色的软包,彼此衬托,更能凸显彼此的质感。
▲无主灯吊顶,去掉了多余的造型,显得卧室更加的安静整洁























