这是一套很常规的三房两厅户型,面积为87㎡,屋主有着“给生活做减法,生活才能更轻盈”的理念,所以本案设计也一样舍去了很多不必要的装饰,即减法设计,空间大面积的刷白,包括定制柜子颜色与墙面统一,让彼此更加的融合,当然为了避免过于的乏味,所以设计师还加入了一些其他的颜色如灰色、黑色、木色及绿色,不经意中可让业主感受到了一丝丝的温暖及舒适。
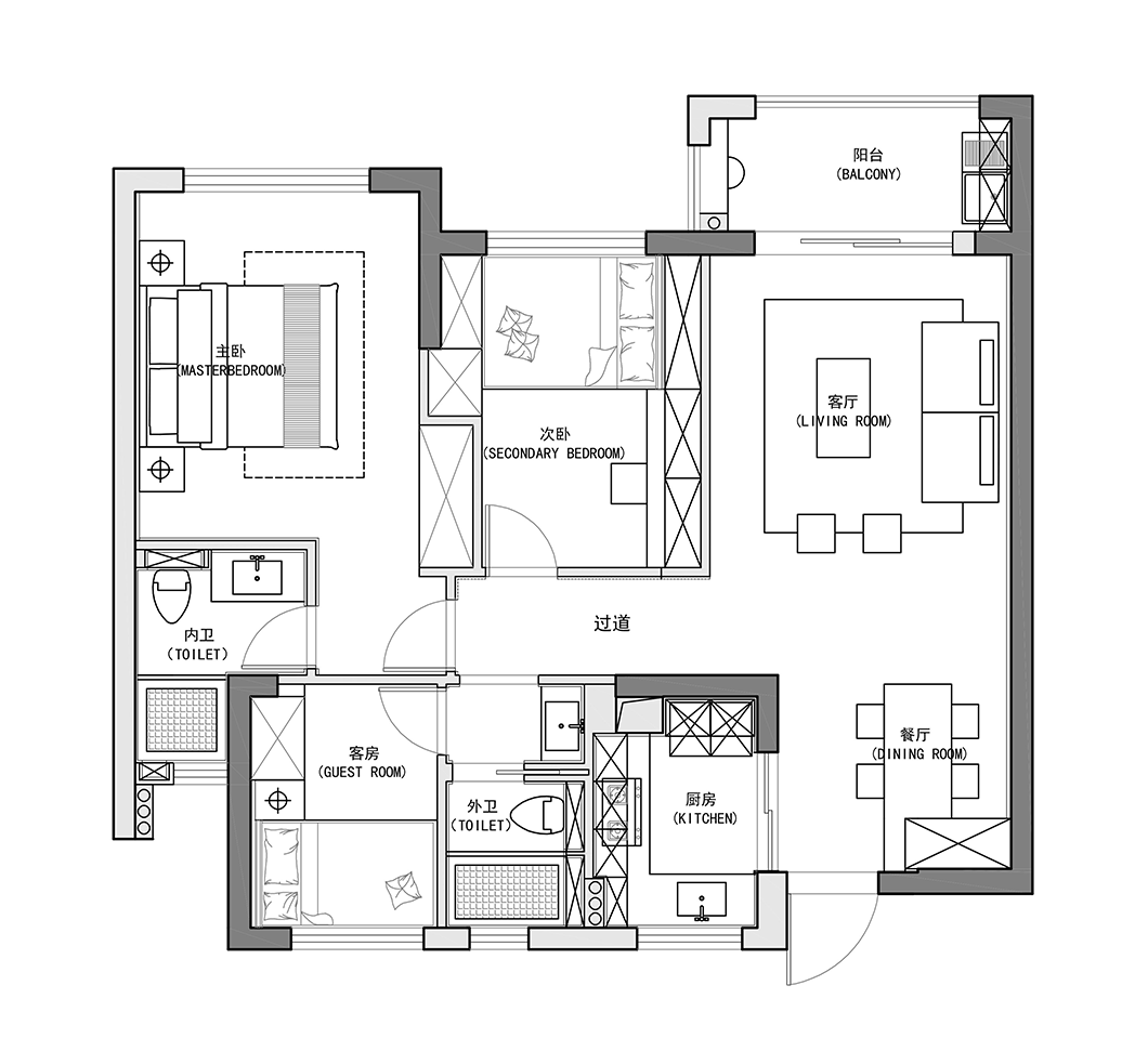
平面布置图

客厅
▲给生活做减法,生活才能更轻盈,这是屋主的生活态度,所以本案去掉多余的装饰,尽可能的让空间看起来更灵活干练简洁。
▲舍掉传统的电视墙,做成一个简白的电视墙,通过投影来打造出一个充满乐趣的观影厅。
▲虽然是一个简白的空间,整屋大面积的做成白色调,但是设计师在材料的运动及色彩的搭配上还是用了很多的小心思,比如不锈钢壁龛,黑色的茶几,黑色的入户大门,以及充满活力的绿植等,不经意间让业主又感受到了一丝丝的温暖及舒适。
餐厅
▲为了更好的保持屋内的整洁,所以在入户区设计了一个储物柜,从而增加了家里的收纳,而且餐桌嵌入到储物柜,做成了一体,美观的同时又增加的趣味性。
▲亚克力的餐桌腿,有种让餐桌悬浮的视觉效果,餐桌面也是直接选的整块实木板,两者的结合高级又耐看,堪称完美。
▲纯白的过道,用黑色不锈钢来点缀,再加上线条灯的效果,让过道有一种很强烈的延伸感。
▲白色的踢脚线与白墙融为一体,黑色的壁龛及门套点缀的空间。
儿童房
▲这是一间未来的儿童房,做成榻榻米的形式,床尾是嵌入式的衣柜,床头是书柜与书桌,而且柜子与墙面颜色做成一致,可以很好地弱化柜子的体积感。
▲木色的书桌及层板,给这个纯白的空间带来一丝丝的温暖,摆上一张网红亚力克透明椅子后空间看起来更加的和谐统一。
次卧
▲这是一间次卧,给父亲预留的房间,卧室面积比较小,所以还是做成了榻榻米的形式,床头一侧是悬空的衣柜,底下是与床齐平的床头柜也好,收纳柜也罢,一体定制,保持了整体性。
主卧
▲主卧延伸了整屋的色调,墙面及天花统一刷成白色,床头做了半高的背景墙,同时还嵌入了灯带,窗帘处做了反灯槽,装上灯带,烘托了氛围。
▲纯白色的白纱,让室外的光线更好的照射到室内,床头一处,摆上绿植,睡醒之后看到这些绿意,心情也变着舒心。
卫生间
▲卫生间洗手盆外置,提高了家里的生活效率,悬空式的台盆,节省了空间。
▲提前预留好水管位置,台盆上方做成壁挂式的龙头,时尚又高级。
主卫
▲墙地面采用大块瓷砖,减少缝隙,马桶做成壁挂,减少了卫生死角。


















