本案面积为112㎡,户型格局为三房两厅两卫,本房最大的亮点是阳台可以看到景区的摩天轮,所以阳台是一个妥妥的观景阳台,设计师为了打造出一个现代简约又惬意的空间,把阳台合并到客厅,扩大整个空间的视野及采光,同时还在阳台搭配了一套休闲桌椅,闲暇之余主人可以在阳台观景、喝茶聊天,给生活尽可能带来了很多的乐趣。
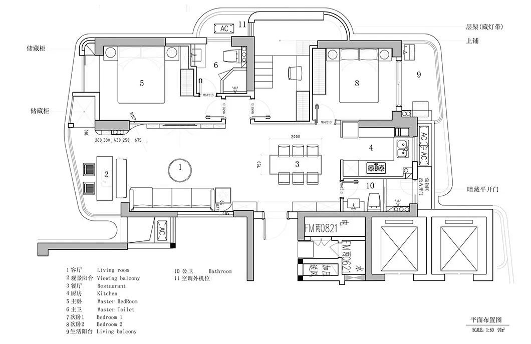
平面布置图

▲由户型图可见,我们这套户型的外观很多都是圆弧形的,为了与室外呼应,设计师在室内也做了很多弧形的造型,比如天花、墙面。
客厅
▲阳台合并到客厅,电视墙连接阳台做弧形墙面设计,延伸性更强,视野更开阔明亮。
▲浅色调的客厅,简约的硬装,搭配时尚柔软的沙发,呈现出一个宁静又惬意的空间环境。
▲沙发墙用护墙板通铺,简约又大气。
▲黑色边框藤椅的加入,中和了客厅的色调,让其看起来不那么的单调乏味。
▲弧形的电视墙,一直延伸到阳台,其实里面包着的是两根下水管道,为了让这个圆弧造型更柔和,设计师加大尺寸,还做了一个壁柜,黑色的格子与黑色的不锈钢相呼应。
▲此户型最大的亮点应该是可以直接从阳台看向外面的摩天轮,所以作为一个观景阳台,怎能少得了休息桌椅,闲暇之余在这里泡泡茶,跟家人聊聊天,再看看外面的风景,日子过得甚是惬意。
餐厅
▲由客厅看向餐厅的角度,整体格调一致,中间过道藏空调内机,沙发边上的钓鱼灯,造型独特个性,似乎代表着主人的性格。
▲入户大门的两侧是入户玄关柜,增加了家里的储物。
▲餐厅采用的是岛台+餐桌的形式,黑金属框架的椅子搭配浅木色的餐桌,时尚又个性。
▲岛台的三面都用黑色大理石包裹,内部则做成三个大抽屉,增加了储物,也多了餐桌台面。
女儿房
▲女儿房的设计比较中性调,没有大家所看到的公主房那般浪漫,这里给人更多的感觉更多的是干净整洁,床头、床头柜及衣柜统一定制,让整体的美观性更好。
▲背景墙刷成浅灰色,然后再挂上一幅潮玩积木挂画来装饰,打造出一个个性独特的空间。
次卧
▲次卧设计师花了一些小心思,把床做成树屋的形式,下面则打造成是主人的私密小空间,放上休息沙发之后,就这么安静地躺在沙发上看书、追剧等实现多种乐趣。
▲通往上铺的既是楼梯也是储物柜,让小小的卧室也能收纳最大化。
▲开放式的书架,让拿取更加方便,给生活提供了便利。
主卧
▲主卧的格调倒是与客厅的一致,床头背景墙采用灰色的护墙板,高级大气。
▲或许整个主卧给人的感觉是比较现代素雅的,为了让主卧的层次感更强,设计师在家具及床品的选择上都是选择一些暖色调,让卧室看起来可以更加的温馨。
























